Farm House Plans - 3 Bed, 2 Bath, 1986 Sq Ft | Plan 7-159 | Monster House Plans

New plans now available on

dreambook-head-logo See all available plans
SHARE ON

All plans are copyrighted by the individual designer.

Photographs may reflect custom changes that were not included in the original design.

3 Bedroom, 2 Bath Farm House Plan #7-159

Plan Purchase Options

Price: $0

Please uncheck first "Purchase MML without any plan package" under MONSTER MATERIAL LIST

Monster Material List
Optional Add-Ons
guaranted-label.png

Best Price Guarantee

*Payment Plans Now
Available Through

img See if you qualify

Floor Plans

What's included?
  • Main Floor

    Reverse

    Clicking the Reverse button does not mean you are ordering your plan reversed. It is for visualization purposes only. You may reverse the plan by ordering under “Optional Add-ons”.

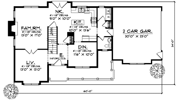
    Main Floor Plan: 7-159
  • Upper/Second Floor

    Reverse

    Clicking the Reverse button does not mean you are ordering your plan reversed. It is for visualization purposes only. You may reverse the plan by ordering under “Optional Add-ons”.

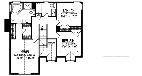
    Upper/Second Floor Plan: 7-159

Rear/Alternate Elevations

  • Rear Elevation

    Reverse

    Clicking the Reverse button does not mean you are ordering your plan reversed. It is for visualization purposes only. You may reverse the plan by ordering under “Optional Add-ons”.

    Rear Elevation Plan: 7-159

House Plan Highlights

This charming cottage home features a large porch thats perfect for enjoying warm evenings. The tiled entry leads to the dining room on the right and the breakfast nook and island kitchen to the back. The family room features a cozy fireplace and rear views while the formal living room enjoys a bumped-out bay and double doors that open onto the family room. Upstairs two family bedrooms share a hall bath--one bedroom features a tray ceiling. The master bedroom boasts a cathedral ceiling walk-in closet dual vanities and separate tub and shower.

This floor plan is found in our Farm house plans section

Full Specs and Features

icon Total Living Area

  • Main floor: 1065
  • Upper floor: 921
  • Total Finished Sq. Ft.: 1986

icon Beds/Baths

  • Bedrooms: 3
  • Full Baths: 2
  • Half Baths: 1

icon Garage

  • Garage: 460
  • Garage Stalls: 2

icon Levels

  • 2 stories

Dimension

  • Width: 60' 0"
  • Depth: 34' 0"
  • Height: 27' 8"

Roof slope

  • 8:12 (primary)
  • 10:12 (secondary)

Walls (exterior)

  • 2"x6"

Ceiling heights

  • 8' (Main)
    8' (Upper)

Foundation Options

  • Basement Standard With Plan
  • Crawlspace $415
  • Slab $415

How Much Will It Cost To Build?

Wondering what it will actually cost to bring this home to life? Get an instant, customized estimate based on your chosen plan and location.

GET MY COST TO BUILD ESTIMATE

Modify This Plan

"Need Content here about modifying your plan"

Customize This Plan

House Plan Features

Suited for a back view
Guest suite Split bedrooms Teen suite/Jack & Jill bath
Island Walk-in pantry Eating bar
Bonus room Great room Open concept floor plan No formal living/dining Den / office / computer Unfinished/future space
Covered front porch Covered rear porch
Oversized garage (3+)

Reviews

How Much Will It Cost To Build?

Wondering what it will actually cost to bring this home to life? Get an instant, customized estimate based on your chosen plan and location.

GET MY COST TO BUILD ESTIMATE

Modify This Plan

Need changes to the layout or features? Our team can modify any plan to match your vision.

Customize This Plan

House Plan Features

Suited for a back view
Guest suite Split bedrooms Teen suite/Jack & Jill bath
Island Walk-in pantry Eating bar
Bonus room Great room Open concept floor plan No formal living/dining Den / office / computer Unfinished/future space
Covered front porch Covered rear porch
Oversized garage (3+)

Need Some Quick Tips Or Advice?

We want to help you design the house of your dreams as best as we can. If you can't find the answers you're looking for here, get in touch with our licensed architect or a designer!