Farm House Plans - 3 Bed, 3 Bath, 2030 Sq Ft | Plan 35-366 | Monster House Plans

New plans now available on

dreambook-head-logo See all available plans
  • MEMORIAL DAY SALE! - 15% OFF Most Plans

    Some exceptions apply. Prices as marked.

House Plans > Farm Style > Plan 35-366

SHARE ON

All plans are copyrighted by the individual designer.

Photographs may reflect custom changes that were not included in the original design.

3 Bedroom, 3 Bath Farm House Plan #35-366

Plan Purchase Options

Price: $0

Please uncheck first "Purchase MML without any plan package" under MONSTER MATERIAL LIST

Monster Material List
Optional Add-Ons
guaranted-label.png

Best Price Guarantee

*Payment Plans Now
Available Through

img See if you qualify

Floor Plans

What's included?
  • Main Floor

    Reverse

    Clicking the Reverse button does not mean you are ordering your plan reversed. It is for visualization purposes only. You may reverse the plan by ordering under “Optional Add-ons”.

    Main Floor Plan: 35-366
  • Upper/Second Floor

    Reverse

    Clicking the Reverse button does not mean you are ordering your plan reversed. It is for visualization purposes only. You may reverse the plan by ordering under “Optional Add-ons”.

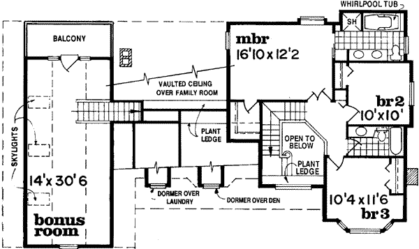
    Upper/Second Floor Plan: 35-366

House Plan Highlights

A covered railed porch, dormer windows and fishscale siding accent this charming country plan. The interior is spacious and offers both formal and informal areas: living and dining rooms with tray ceilings, vaulted family room, bayed breakfast room. Both the living room and family room are warmed by fireplaces. A cozy den sits just to the left of the foyer. Three bedrooms are found on the second floor; the master suite is well appointed. A large skylit bonus room is available for finish-later space. It features a balcony overlooking the rear yard. Choose a basement or crawlspace foundation--plans include details for both.

This floor plan is found in our Farm house plans section

Full Specs and Features

icon Total Living Area

  • Main floor: 1233
  • Upper floor: 797
  • Bonus: 427
  • Total Finished Sq. Ft.: 2030

icon Beds/Baths

  • Bedrooms: 3
  • Full Baths: 3

icon Garage

  • Garage: 683
  • Garage Stalls: 2

icon Levels

  • 2 stories

Dimension

  • Width: 66' 6"
  • Depth: 40' 6"
  • Height: 33' 0"

Roof slope

  • 12:12 (primary)
  • 8:12 (secondary)

Walls (exterior)

  • 2"x6"

Ceiling heights

  • 9' (Main)

Foundation Options

  • Basement Standard With Plan
  • Walk-out basement $425
  • Crawlspace Standard With Plan
  • Slab $295

How Much Will It Cost To Build?

Wondering what it will actually cost to bring this home to life? Get an instant, customized estimate based on your chosen plan and location.

GET MY COST TO BUILD ESTIMATE

Modify This Plan

"Need Content here about modifying your plan"

Customize This Plan

House Plan Features

Suited for a back view
Upstairs Master
Eating bar Nook / breakfast Hearth room
Bonus room Family room Main Floor laundry Loft / balcony Open concept floor plan No formal living/dining Den / office / computer
Covered front porch Covered rear porch
Vaulted/Volume/Dramatic ceilings
Workshop

Reviews

How Much Will It Cost To Build?

Wondering what it will actually cost to bring this home to life? Get an instant, customized estimate based on your chosen plan and location.

GET MY COST TO BUILD ESTIMATE

Modify This Plan

Need changes to the layout or features? Our team can modify any plan to match your vision.

Customize This Plan

House Plan Features

Suited for a back view
Upstairs Master
Eating bar Nook / breakfast Hearth room
Bonus room Family room Main Floor laundry Loft / balcony Open concept floor plan No formal living/dining Den / office / computer
Covered front porch Covered rear porch
Vaulted/Volume/Dramatic ceilings
Workshop

Need Some Quick Tips Or Advice?

We want to help you design the house of your dreams as best as we can. If you can't find the answers you're looking for here, get in touch with our licensed architect or a designer!