Farm House Plans - 4 Bed, 2 Bath, 3154 Sq Ft | Plan 7-485 | Monster House Plans

New plans now available on

dreambook-head-logo See all available plans
SHARE ON

All plans are copyrighted by the individual designer.

Photographs may reflect custom changes that were not included in the original design.

4 Bedroom, 2 Bath Farm House Plan #7-485

Plan Purchase Options

Price: $0

Please uncheck first "Purchase MML without any plan package" under MONSTER MATERIAL LIST

Monster Material List
Optional Add-Ons
guaranted-label.png

Best Price Guarantee

*Payment Plans Now
Available Through

img See if you qualify

Floor Plans

What's included?
  • Main Floor

    Reverse

    Clicking the Reverse button does not mean you are ordering your plan reversed. It is for visualization purposes only. You may reverse the plan by ordering under “Optional Add-ons”.

    Main Floor Plan: 7-485
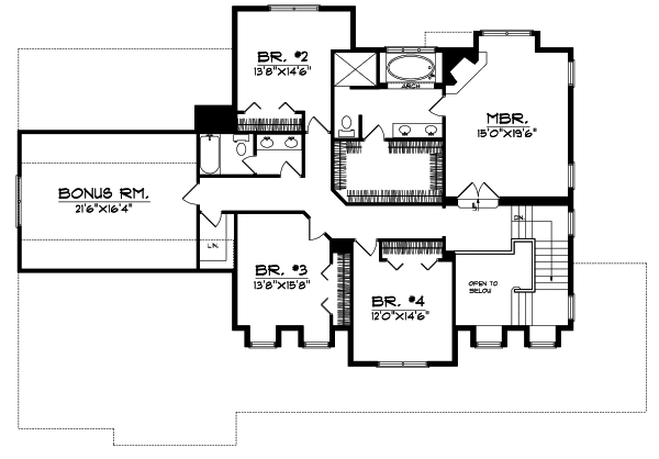
  • Upper/Second Floor

    Reverse

    Clicking the Reverse button does not mean you are ordering your plan reversed. It is for visualization purposes only. You may reverse the plan by ordering under “Optional Add-ons”.

    Upper/Second Floor Plan: 7-485

Rear/Alternate Elevations

  • Rear Elevation

    Reverse

    Clicking the Reverse button does not mean you are ordering your plan reversed. It is for visualization purposes only. You may reverse the plan by ordering under “Optional Add-ons”.

    Rear Elevation Plan: 7-485

House Plan Highlights

You will be amazed by this 2-Story 4-bedroom farmhouse style home. Exterior features that you will love about this home are the large covered front porch and deck overlooking the rear. Upon entering this home you will adore the 2-Story Foyer and which leads you up the stairs to the second floor or through the arched entry to an impressive Great Room with ten-foot ceiling. Other feautures that you will like about the main floor is the large Kitchen with island and eating bar the Den which overlooks the front of the home. You will also appreciate the 3-stall garage with storage the walk-in closet off of the garage and the large Laundry Room. If you took the stairs to the second floor you would find an elaborate Master Bedroom with a fireplace enormous walk-in closet and an arch welcoming you to your whirlpool in your Master Bath. Another fine feature to the second floor is the Bonus Room that you can access at the end of the hallway.

This floor plan is found in our Farm house plans section

Full Specs and Features

icon Total Living Area

  • Main floor: 1700
  • Upper floor: 1454
  • Bonus: 368
  • Total Finished Sq. Ft.: 3154

icon Beds/Baths

  • Bedrooms: 4
  • Full Baths: 2
  • Half Baths: 1

icon Garage

  • Garage: 368
  • Garage Stalls: 3

icon Levels

  • 2 stories

Dimension

  • Width: 67' 0"
  • Depth: 53' 0"
  • Height: 36' 0"

Roof slope

  • 10:12 (primary)
  • 12:12 (secondary)

Walls (exterior)

  • 2"x6"

Ceiling heights

  • 9' (Main)
    9' (Upper)

Foundation Options

  • Basement Standard With Plan
  • Crawlspace $415
  • Slab $415

How Much Will It Cost To Build?

Wondering what it will actually cost to bring this home to life? Get an instant, customized estimate based on your chosen plan and location.

GET MY COST TO BUILD ESTIMATE

Modify This Plan

"Need Content here about modifying your plan"

Customize This Plan

House Plan Features

Suited for corner lots Suited for a down-sloping lot
Island Nook / breakfast
Family room Hobby / rec-room Formal dining room Den / office / computer
Covered front porch
Vaulted/Volume/Dramatic ceilings
Oversized garage (3+) Side-entry garage

Reviews

How Much Will It Cost To Build?

Wondering what it will actually cost to bring this home to life? Get an instant, customized estimate based on your chosen plan and location.

GET MY COST TO BUILD ESTIMATE

Modify This Plan

Need changes to the layout or features? Our team can modify any plan to match your vision.

Customize This Plan

House Plan Features

Suited for corner lots Suited for a down-sloping lot
Island Nook / breakfast
Family room Hobby / rec-room Formal dining room Den / office / computer
Covered front porch
Vaulted/Volume/Dramatic ceilings
Oversized garage (3+) Side-entry garage

Need Some Quick Tips Or Advice?

We want to help you design the house of your dreams as best as we can. If you can't find the answers you're looking for here, get in touch with our licensed architect or a designer!