French Country House Plans - 5 Bed, 4 Bath, 5270 Sq Ft | Plan 7-555 | Monster House Plans

New plans now available on

dreambook-head-logo See all available plans

All plans are copyrighted by the individual designer.

Photographs may reflect custom changes that were not included in the original design.

5 Bedroom, 4 Bath French Country House Plan #7-555

Plan Purchase Options

Price: $0

Please uncheck first "Purchase MML without any plan package" under MONSTER MATERIAL LIST

Monster Material List
Optional Add-Ons
guaranted-label.png

Best Price Guarantee

*Payment Plans Now
Available Through

img See if you qualify

Floor Plans

What's included?
  • Main Floor

    Reverse

    Clicking the Reverse button does not mean you are ordering your plan reversed. It is for visualization purposes only. You may reverse the plan by ordering under “Optional Add-ons”.

    Main Floor Plan: 7-555
  • Lower Floor

    Reverse

    Clicking the Reverse button does not mean you are ordering your plan reversed. It is for visualization purposes only. You may reverse the plan by ordering under “Optional Add-ons”.

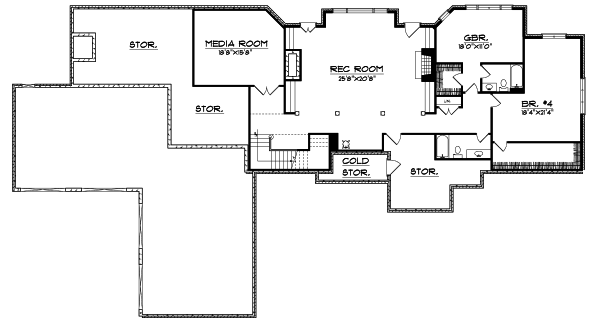
    Lower Floor Plan: 7-555

Rear/Alternate Elevations

  • Rear Elevation

    Reverse

    Clicking the Reverse button does not mean you are ordering your plan reversed. It is for visualization purposes only. You may reverse the plan by ordering under “Optional Add-ons”.

    Rear Elevation Plan: 7-555

House Plan Highlights

This elegant French Country estate boasts a timeless faade that would be a pillar in any neighborhood. The casual area of the home includes the island countertop kitchen the nook accessing the screened porch and cozy hearth room creating a living space large enough for those large holiday gatherings. Twin fireplaces warm the combined living and dining rooms for an elegant atmosphere. Three family bedrooms are located to the right including the master suite which enjoys a private deck master bath and walk-in closet. Two two-car garages hold a sizable collection of family cars. The basement level option perfect for hillside site provides additional rooms including a recreation room media room two additional bedrooms and storage area.

This floor plan is found in our French Country house plans section

Full Specs and Features

icon Total Living Area

  • Main floor: 3120
  • Lower Floor: 2150
  • Total Finished Sq. Ft.: 5270

icon Beds/Baths

  • Bedrooms: 5
  • Full Baths: 4
  • Half Baths: 1

icon Garage

  • Garage: 1336
  • Garage Stalls: 4

icon Levels

  • 1 story

Dimension

  • Width: 118' 4"
  • Depth: 64' 4"
  • Height: 29' 4"

Roof slope

  • 10:12 (primary)

Walls (exterior)

  • 2"x6"

Ceiling heights

  • 9' (Main)

Foundation Options

  • Daylight basement Standard With Plan
  • Crawlspace $415
  • Slab $415

How Much Will It Cost To Build?

Wondering what it will actually cost to bring this home to life? Get an instant, customized estimate based on your chosen plan and location.

GET MY COST TO BUILD ESTIMATE

Modify This Plan

"Need Content here about modifying your plan"

Customize This Plan

House Plan Features

Suited for corner lots Suited for a back view Suited for a side-sloping lot
Teen suite/Jack & Jill bath
Island Walk-in pantry Eating bar Nook / breakfast
Hobby / rec-room Great room Formal dining room Den / office / computer
Covered front porch Screened porch/sunroom
Vaulted/Volume/Dramatic ceilings
Oversized garage (3+) Side-entry garage

Reviews

How Much Will It Cost To Build?

Wondering what it will actually cost to bring this home to life? Get an instant, customized estimate based on your chosen plan and location.

GET MY COST TO BUILD ESTIMATE

Modify This Plan

Need changes to the layout or features? Our team can modify any plan to match your vision.

Customize This Plan

House Plan Features

Suited for corner lots Suited for a back view Suited for a side-sloping lot
Teen suite/Jack & Jill bath
Island Walk-in pantry Eating bar Nook / breakfast
Hobby / rec-room Great room Formal dining room Den / office / computer
Covered front porch Screened porch/sunroom
Vaulted/Volume/Dramatic ceilings
Oversized garage (3+) Side-entry garage

Need Some Quick Tips Or Advice?

We want to help you design the house of your dreams as best as we can. If you can't find the answers you're looking for here, get in touch with our licensed architect or a designer!