Mediterranean House Plans - 4 Bed, 2 Bath, 2521 Sq Ft | Plan 77-177 | Monster House Plans

New plans now available on

dreambook-head-logo See all available plans

All plans are copyrighted by the individual designer.

Photographs may reflect custom changes that were not included in the original design.

4 Bedroom, 2 Bath Mediterranean House Plan #77-177

Plan Purchase Options

Price: $0

Please uncheck first "Purchase MML without any plan package" under MONSTER MATERIAL LIST

Monster Material List
Optional Add-Ons
guaranted-label.png

Best Price Guarantee

*Payment Plans Now
Available Through

img See if you qualify

Floor Plans

What's included?
  • Main Floor

    Reverse

    Clicking the Reverse button does not mean you are ordering your plan reversed. It is for visualization purposes only. You may reverse the plan by ordering under “Optional Add-ons”.

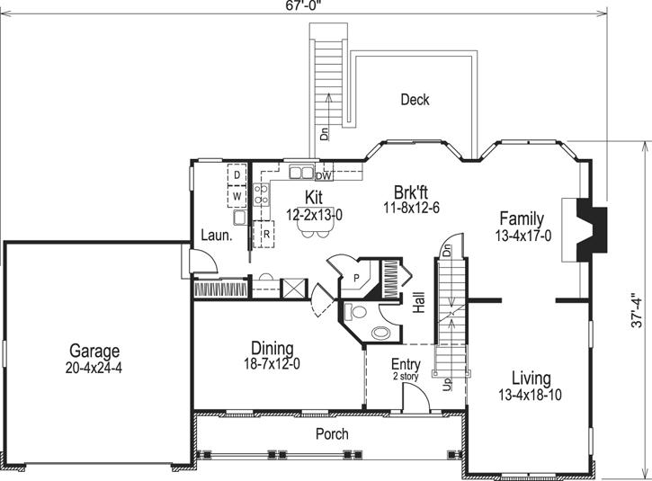
    Main Floor Plan: 77-177
  • Upper/Second Floor

    Reverse

    Clicking the Reverse button does not mean you are ordering your plan reversed. It is for visualization purposes only. You may reverse the plan by ordering under “Optional Add-ons”.

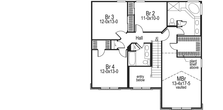
    Upper/Second Floor Plan: 77-177

Rear/Alternate Elevations

  • Rear Elevation

    Reverse

    Clicking the Reverse button does not mean you are ordering your plan reversed. It is for visualization purposes only. You may reverse the plan by ordering under “Optional Add-ons”.

    Rear Elevation Plan: 77-177

House Plan Highlights

Great Looks Accentuated By Elliptical Brick Arches2521 total square feet of living areaSpecial featuresThe informal kitchen breakfast and family rooms feature a 37' vista and double bay windowsThis home enjoys large living and dining rooms perfect for formal entertaining or large family gatheringsA generously sized master bedroom and three secondary bedrooms grace the second floor4 bedrooms 2 12 baths 2-car garageBasement foundation1375 square feet on the first floor and 1146 square feet on the second floor

This floor plan is found in our Mediterranean house plans section

Full Specs and Features

icon Total Living Area

  • Main floor: 1375
  • Upper floor: 1146
  • Basement: 1339
  • Porches: 130
  • Total Finished Sq. Ft.: 2521

icon Beds/Baths

  • Bedrooms: 4
  • Full Baths: 2
  • Half Baths: 1

icon Garage

  • Garage: 498
  • Garage Stalls: 2

icon Levels

  • 2 stories

Dimension

  • Width: 65' 0"
  • Depth: 37' 0"
  • Height: 27' 8"

Roof slope

  • 7:12 (primary)
  • 12:12 (secondary)

Walls (exterior)

  • 2"x4"

Ceiling heights

  • 9' (Main)
    8' (Upper)

Foundation Options

  • Basement Standard With Plan
  • Walk-out basement Standard With Plan

How Much Will It Cost To Build?

Wondering what it will actually cost to bring this home to life? Get an instant, customized estimate based on your chosen plan and location.

GET MY COST TO BUILD ESTIMATE

Modify This Plan

"Need Content here about modifying your plan"

Customize This Plan

House Plan Features

Suited for a back view Suited for a down-sloping lot
Upstairs Master
Island Walk-in pantry Nook / breakfast
Family room Main Floor laundry Open concept floor plan Formal dining room Formal living room Unfinished/future space
Covered front porch
Vaulted/Volume/Dramatic ceilings

Reviews

How Much Will It Cost To Build?

Wondering what it will actually cost to bring this home to life? Get an instant, customized estimate based on your chosen plan and location.

GET MY COST TO BUILD ESTIMATE

Modify This Plan

Need changes to the layout or features? Our team can modify any plan to match your vision.

Customize This Plan

House Plan Features

Suited for a back view Suited for a down-sloping lot
Upstairs Master
Island Walk-in pantry Nook / breakfast
Family room Main Floor laundry Open concept floor plan Formal dining room Formal living room Unfinished/future space
Covered front porch
Vaulted/Volume/Dramatic ceilings

Need Some Quick Tips Or Advice?

We want to help you design the house of your dreams as best as we can. If you can't find the answers you're looking for here, get in touch with our licensed architect or a designer!