Mediterranean House Plans - 3 Bed, 2 Bath, 2808 Sq Ft | Plan 77-182 | Monster House Plans

New plans now available on

dreambook-head-logo See all available plans

All plans are copyrighted by the individual designer.

Photographs may reflect custom changes that were not included in the original design.

3 Bedroom, 2 Bath Mediterranean House Plan #77-182

Plan Purchase Options

Price: $0

Please uncheck first "Purchase MML without any plan package" under MONSTER MATERIAL LIST

Monster Material List
Optional Add-Ons
guaranted-label.png

Best Price Guarantee

*Payment Plans Now
Available Through

img See if you qualify

Floor Plans

What's included?
  • Main Floor

    Reverse

    Clicking the Reverse button does not mean you are ordering your plan reversed. It is for visualization purposes only. You may reverse the plan by ordering under “Optional Add-ons”.

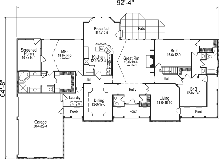
    Main Floor Plan: 77-182

Rear/Alternate Elevations

  • Rear Elevation

    Reverse

    Clicking the Reverse button does not mean you are ordering your plan reversed. It is for visualization purposes only. You may reverse the plan by ordering under “Optional Add-ons”.

    Rear Elevation Plan: 77-182

House Plan Highlights

Sophisticated Ranch With Split Bedrooms2808 total square feet of living areaSpecial featuresThis home has an impressive front exterior that features three porches for quiet timesThe large living and dining rooms surround an elegant entryBedroom #3 shares a porch with the living room and a spacious bath with bedroom #2The vaulted master bedroom enjoys a secluded screened porch and sumptuous bath with corner tub double vanities and huge walk-in closetThe living room is a flexible space that can easily convert to an optional fourth bedroom3 bedrooms 2 12 baths 3-car side entry garageBasement foundation

This floor plan is found in our Mediterranean house plans section

Full Specs and Features

icon Total Living Area

  • Main floor: 2808
  • Basement: 2788
  • Porches: 245
  • Total Finished Sq. Ft.: 2808

icon Beds/Baths

  • Bedrooms: 3
  • Full Baths: 2
  • Half Baths: 1

icon Garage

  • Garage: 596
  • Garage Stalls: 3

icon Levels

  • 1 story

Dimension

  • Width: 92' 4"
  • Depth: 64' 8"
  • Height: 22' 8"

Roof slope

  • 8:12 (primary)
  • 10:12 (secondary)

Walls (exterior)

  • 2"x4"

Ceiling heights

  • 9' (Main)

Foundation Options

  • Basement Standard With Plan

How Much Will It Cost To Build?

Wondering what it will actually cost to bring this home to life? Get an instant, customized estimate based on your chosen plan and location.

GET MY COST TO BUILD ESTIMATE

Modify This Plan

"Need Content here about modifying your plan"

Customize This Plan

House Plan Features

Suited for corner lots Suited for a back view
Split bedrooms Teen suite/Jack & Jill bath
Walk-in pantry Eating bar Nook / breakfast
Great room Open concept floor plan Formal dining room Formal living room
Screened porch/sunroom
Photos Available
Oversized garage (3+) Side-entry garage

Reviews

How Much Will It Cost To Build?

Wondering what it will actually cost to bring this home to life? Get an instant, customized estimate based on your chosen plan and location.

GET MY COST TO BUILD ESTIMATE

Modify This Plan

Need changes to the layout or features? Our team can modify any plan to match your vision.

Customize This Plan

House Plan Features

Suited for corner lots Suited for a back view
Split bedrooms Teen suite/Jack & Jill bath
Walk-in pantry Eating bar Nook / breakfast
Great room Open concept floor plan Formal dining room Formal living room
Screened porch/sunroom
Photos Available
Oversized garage (3+) Side-entry garage

Need Some Quick Tips Or Advice?

We want to help you design the house of your dreams as best as we can. If you can't find the answers you're looking for here, get in touch with our licensed architect or a designer!