Mediterranean House Plans - 3 Bed, 2 Bath, 3289 Sq Ft | Plan 12-606 | Monster House Plans

New plans now available on

dreambook-head-logo See all available plans

All plans are copyrighted by the individual designer.

Photographs may reflect custom changes that were not included in the original design.

3 Bedroom, 2 Bath Mediterranean House Plan #12-606

Plan Purchase Options

Price: $0

Please uncheck first "Purchase MML without any plan package" under MONSTER MATERIAL LIST

Monster Material List
Optional Add-Ons
guaranted-label.png

Best Price Guarantee

*Payment Plans Now
Available Through

img See if you qualify

Floor Plans

What's included?
  • Main Floor

    Reverse

    Clicking the Reverse button does not mean you are ordering your plan reversed. It is for visualization purposes only. You may reverse the plan by ordering under “Optional Add-ons”.

    Main Floor Plan: 12-606
  • Lower Floor

    Reverse

    Clicking the Reverse button does not mean you are ordering your plan reversed. It is for visualization purposes only. You may reverse the plan by ordering under “Optional Add-ons”.

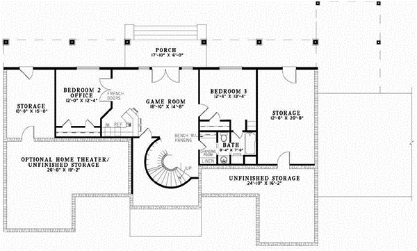
    Lower Floor Plan: 12-606

House Plan Highlights

This sprawling home exudes elegance. Only columns divide the dining and great rooms, creating an open feeling throughout. A screened porch off of the breakfast room lets you enjoy nature without the added distraction of insects. The study includes loads of bookshelf space and French door access to the amenity-filled master suite. A spiral staircase in the foyer leads to the lower floor of this home. While downstairs, the kids are sure to enjoy the privacy of their own bedrooms as well as the inclusion of a game room. An optional home theater and plenty of storage complete this design.

This floor plan is found in our Mediterranean house plans section

Full Specs and Features

icon Total Living Area

  • Main floor: 2300
  • Basement: 989
  • Porches: 952
  • Total Finished Sq. Ft.: 3289

icon Beds/Baths

  • Bedrooms: 3
  • Full Baths: 2
  • Half Baths: 1

icon Garage

  • Garage: 942
  • Garage Stalls: 3

icon Levels

  • 1 story

Dimension

  • Width: 110' 10"
  • Depth: 56' 8"
  • Height: 20' 8"

Roof slope

  • 7:12 (primary)

Walls (exterior)

  • 2"x4"

Ceiling heights

  • 9' (Main)

Foundation Options

  • Basement $299
  • Daylight basement $399
  • Crawlspace Standard With Plan
  • Slab Standard With Plan

How Much Will It Cost To Build?

Wondering what it will actually cost to bring this home to life? Get an instant, customized estimate based on your chosen plan and location.

GET MY COST TO BUILD ESTIMATE

Modify This Plan

"Need Content here about modifying your plan"

Customize This Plan

House Plan Features

Suited for a back view
Teen suite/Jack & Jill bath
Eating bar Nook / breakfast
Hobby / rec-room Media room Den / office / computer Unfinished/future space
Covered rear porch Screened porch/sunroom
Grand Entry Circular / dual staircases
Oversized garage (3+)

Reviews

How Much Will It Cost To Build?

Wondering what it will actually cost to bring this home to life? Get an instant, customized estimate based on your chosen plan and location.

GET MY COST TO BUILD ESTIMATE

Modify This Plan

Need changes to the layout or features? Our team can modify any plan to match your vision.

Customize This Plan

House Plan Features

Suited for a back view
Teen suite/Jack & Jill bath
Eating bar Nook / breakfast
Hobby / rec-room Media room Den / office / computer Unfinished/future space
Covered rear porch Screened porch/sunroom
Grand Entry Circular / dual staircases
Oversized garage (3+)

Need Some Quick Tips Or Advice?

We want to help you design the house of your dreams as best as we can. If you can't find the answers you're looking for here, get in touch with our licensed architect or a designer!