Mediterranean House Plans - 2 Bed, 3 Bath, 4225 Sq Ft | Plan 63-535 | Monster House Plans

New plans now available on

dreambook-head-logo See all available plans

All plans are copyrighted by the individual designer.

Photographs may reflect custom changes that were not included in the original design.

Design Comments

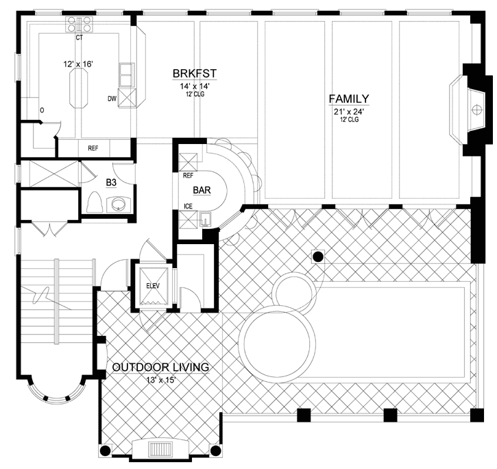
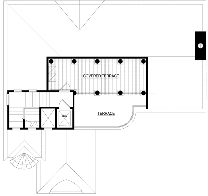
This modern contemporary house plan offers luxury and style on four levels. The exterior peers out over the ocean or through mountain views, accenting the stucco facade with red tile roofing, roof top terrace, columns, arches and balconies or terraces on every level. As you enter the foyer, you are met by sweeping stairs and a sitting area with bayed windows where the sun streams in. A door delivers you directly into the elevator, or the game room beyond. Doors lead from the game room to the veranda, with a wall of windows that invites the outdoors, inside. The coffered ceiling adds to the outdoor mode, and the full bar with seating and a wine room, make this the perfect entertainment area. A full bath separates the entertaining game room from a family bedroom with walk-in closet and two access doors to outside. Completing the ground level of this extraordinary luxury house plan, is a three-car garage with workspace and a front entry between majestic columns. A rear door allows access to the yard, while the side door allows access into the home. Up one level to the main living area, views of the rear landscaping are visible through the windows in the family room, breakfast room, and kitchen. The cathedral ceiling adds to the open, airy feeling, while the lodge-inspired area offers a dramatic fireplace with built-ins. The only division of these rooms is the breakfast seating bar shared with the kitchen and breakfast room. A free-standing center island adds to the counter space, a welcome addition for any gourmet chef. A large corner pantry, modern, state-of-the-art appliances, pendant lighting, and granite countertops highlight this gourmet kitchen. The front of this level offers covered outdoor living at its finest, accentuated by columns and open archways. A semi-circular wet bar with seating area, built-in icemaker and refrigerator and a powder room sit central to this level, making them easily accessible from inside or out. The third level of this luxury house plan is the private master suite and quiet study. The study has a trey ceiling, walk-in closet, and private balcony. An outdoor balcony winds around the right side of the home plan and can be accessed from the master suite, which boasts a trey ceiling, magnificent views, luxurious master bath with his and hers vanities, separate tile bath tub and shower, a large wardrobe with built-ins, and a large utility room and storage. Quite and private, this entire level encompasses the master suite. The upper fourth level is a covered terrace, and can be accessed through the elevator or stairs, completing this extraordinary contemporary house plan offering elegant luxury.

2 Bedroom, 3 Bath Mediterranean House Plan #63-535

Plan Purchase Options

Price: $0

Please uncheck first "Purchase MML without any plan package" under MONSTER MATERIAL LIST

Monster Material List
Optional Add-Ons
guaranted-label.png

Best Price Guarantee

*Payment Plans Now
Available Through

img See if you qualify

Floor Plans

What's included?
  • Main Floor

    Reverse

    Clicking the Reverse button does not mean you are ordering your plan reversed. It is for visualization purposes only. You may reverse the plan by ordering under “Optional Add-ons”.

    Main Floor Plan: 63-535
  • Upper/Second Floor

    Reverse

    Clicking the Reverse button does not mean you are ordering your plan reversed. It is for visualization purposes only. You may reverse the plan by ordering under “Optional Add-ons”.

    Upper/Second Floor Plan: 63-535
  • Third Floor

    Reverse

    Clicking the Reverse button does not mean you are ordering your plan reversed. It is for visualization purposes only. You may reverse the plan by ordering under “Optional Add-ons”.

    Upper/Second Floor Plan 63-535
  • Lower Floor

    Reverse

    Clicking the Reverse button does not mean you are ordering your plan reversed. It is for visualization purposes only. You may reverse the plan by ordering under “Optional Add-ons”.

    Lower Floor Plan: 63-535

Rear/Alternate Elevations

  • Rear Elevation

    Reverse

    Clicking the Reverse button does not mean you are ordering your plan reversed. It is for visualization purposes only. You may reverse the plan by ordering under “Optional Add-ons”.

    Rear Elevation Plan: 63-535

House Plan Highlights

Full Specs and Features

icon Total Living Area

  • Main floor: 1244
  • Upper floor: 1588
  • Third floor: 81
  • Lower Floor: 1312
  • Porches: 1139
  • Total Finished Sq. Ft.: 4225

icon Beds/Baths

  • Bedrooms: 2
  • Full Baths: 3

icon Garage

  • Garage: 693
  • Garage Stalls: 3

icon Levels

  • 3 stories

Dimension

  • Width: 53' 0"
  • Depth: 50' 0"
  • Height: 60' 0"

Ceiling heights

  • 10' (Main)
    12' (Upper)

Foundation Options

  • Slab Standard With Plan

How Much Will It Cost To Build?

Wondering what it will actually cost to bring this home to life? Get an instant, customized estimate based on your chosen plan and location.

GET MY COST TO BUILD ESTIMATE

Modify This Plan

"Need Content here about modifying your plan"

Customize This Plan

House Plan Features

Suited for a front view Suited for an up-sloping lot
Upstairs Master Guest suite
Hobby / rec-room Great room Loft / balcony Open concept floor plan No formal living/dining Den / office / computer
Screened porch/sunroom
Elevator Photos Available
Oversized garage (3+) Garage under

Reviews

How Much Will It Cost To Build?

Wondering what it will actually cost to bring this home to life? Get an instant, customized estimate based on your chosen plan and location.

GET MY COST TO BUILD ESTIMATE

Modify This Plan

Need changes to the layout or features? Our team can modify any plan to match your vision.

Customize This Plan

House Plan Features

Suited for a front view Suited for an up-sloping lot
Upstairs Master Guest suite
Hobby / rec-room Great room Loft / balcony Open concept floor plan No formal living/dining Den / office / computer
Screened porch/sunroom
Elevator Photos Available
Oversized garage (3+) Garage under

Need Some Quick Tips Or Advice?

We want to help you design the house of your dreams as best as we can. If you can't find the answers you're looking for here, get in touch with our licensed architect or a designer!