Mediterranean House Plans - 3 Bed, 3 Bath, 4657 Sq Ft | Plan 35-605 | Monster House Plans

New plans now available on

dreambook-head-logo See all available plans

All plans are copyrighted by the individual designer.

Photographs may reflect custom changes that were not included in the original design.

3 Bedroom, 3 Bath Mediterranean House Plan #35-605

Plan Purchase Options

Price: $0

Please uncheck first "Purchase MML without any plan package" under MONSTER MATERIAL LIST

Monster Material List
Optional Add-Ons
guaranted-label.png

Best Price Guarantee

*Payment Plans Now
Available Through

img See if you qualify

Floor Plans

What's included?
  • Main Floor

    Reverse

    Clicking the Reverse button does not mean you are ordering your plan reversed. It is for visualization purposes only. You may reverse the plan by ordering under “Optional Add-ons”.

    Main Floor Plan: 35-605
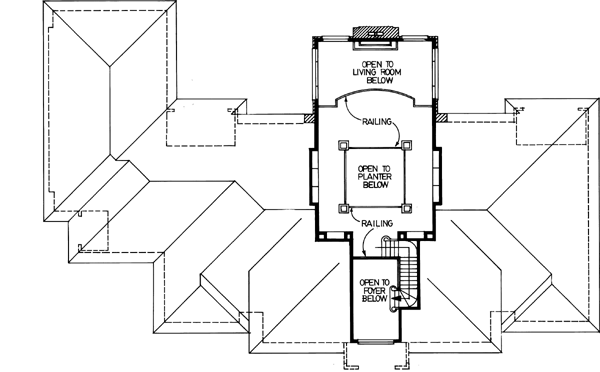
  • Upper/Second Floor

    Reverse

    Clicking the Reverse button does not mean you are ordering your plan reversed. It is for visualization purposes only. You may reverse the plan by ordering under “Optional Add-ons”.

    Upper/Second Floor Plan: 35-605

House Plan Highlights

Warm brick makes an intriguing statement on this refreshing Greco-Roman-inspired home. In the foyer, a barrel vault makes a grand entrance. The formal dining room is accented with columns and arches. A central planter brings in natural beauty year-round. Step down to a sunken living room with a fireplace and balcony overlook from above. Surrounding windows let the sunshine flow in. A media room and wet bar are great for entertaining. The master suite enjoys a private covered patio, decadent bath and His and Hers walk-in closets.

This floor plan is found in our Mediterranean house plans section

Full Specs and Features

icon Total Living Area

  • Main floor: 4066
  • Upper floor: 591
  • Total Finished Sq. Ft.: 4657

icon Beds/Baths

  • Bedrooms: 3
  • Full Baths: 3

icon Garage

  • Garage: 856
  • Garage Stalls: 3

icon Levels

  • 1 story

Dimension

  • Width: 109' 0"
  • Depth: 73' 4"
  • Height: 25' 6"

Roof slope

  • 5:12 (primary)

Walls (exterior)

  • 2"x6"

Ceiling heights

  • 10' (Main)
    8' (Upper)

Foundation Options

  • Basement Standard With Plan
  • Walk-out basement $425
  • Crawlspace Standard With Plan
  • Slab $295

How Much Will It Cost To Build?

Wondering what it will actually cost to bring this home to life? Get an instant, customized estimate based on your chosen plan and location.

GET MY COST TO BUILD ESTIMATE

Modify This Plan

"Need Content here about modifying your plan"

Customize This Plan

House Plan Features

Teen suite/Jack & Jill bath
Island Walk-in pantry Eating bar Nook / breakfast
Family room Mud room Formal dining room

Reviews

How Much Will It Cost To Build?

Wondering what it will actually cost to bring this home to life? Get an instant, customized estimate based on your chosen plan and location.

GET MY COST TO BUILD ESTIMATE

Modify This Plan

Need changes to the layout or features? Our team can modify any plan to match your vision.

Customize This Plan

House Plan Features

Teen suite/Jack & Jill bath
Island Walk-in pantry Eating bar Nook / breakfast
Family room Mud room Formal dining room

Need Some Quick Tips Or Advice?

We want to help you design the house of your dreams as best as we can. If you can't find the answers you're looking for here, get in touch with our licensed architect or a designer!