Mediterranean House Plans - 4 Bed, 5 Bath, 7199 Sq Ft | Plan 63-181 | Monster House Plans

New plans now available on

dreambook-head-logo See all available plans

All plans are copyrighted by the individual designer.

Photographs may reflect custom changes that were not included in the original design.

4 Bedroom, 5 Bath Mediterranean House Plan #63-181

Plan Purchase Options

Price: $0

Please uncheck first "Purchase MML without any plan package" under MONSTER MATERIAL LIST

Monster Material List
Optional Add-Ons
guaranted-label.png

Best Price Guarantee

*Payment Plans Now
Available Through

img See if you qualify

Floor Plans

What's included?
  • Main Floor

    Reverse

    Clicking the Reverse button does not mean you are ordering your plan reversed. It is for visualization purposes only. You may reverse the plan by ordering under “Optional Add-ons”.

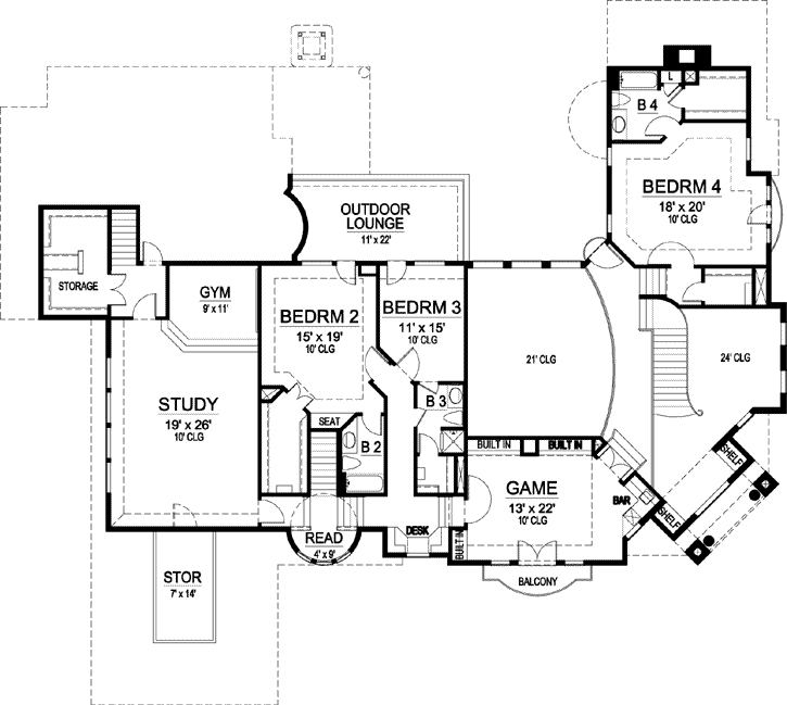
    Main Floor Plan: 63-181
  • Upper/Second Floor

    Reverse

    Clicking the Reverse button does not mean you are ordering your plan reversed. It is for visualization purposes only. You may reverse the plan by ordering under “Optional Add-ons”.

    Upper/Second Floor Plan: 63-181

Rear/Alternate Elevations

  • Rear Elevation

    Reverse

    Clicking the Reverse button does not mean you are ordering your plan reversed. It is for visualization purposes only. You may reverse the plan by ordering under “Optional Add-ons”.

    Rear Elevation Plan: 63-181

House Plan Highlights

This corner lot luxury house plan displays an awesome covered porch that leads through the huge double doors to the amazing foyer. The foyer is flanked by the formal living room. On the opposite side of the foyer is the elegant dining room with access to the butlery, kitchen and pantry for ease in serving. Centrally located are the kitchen, breakfast room and family room. Large decorative pillars between the breakfast room and family room and the large bank of windows to the rear offer an awesome view. The breakfast room is cozy with its window seat view to the patio and the corner fireplace. A trophy room at the rear of the house plan offers a card area, powder room and fireplace. A full bath as outdoor access for easy cleanup when working outside. The master suite offers a circular sitting area, a lavish bath with his and hers vanities, separate shower, garden tub and large wardrobe. There are plenty of storage areas and a large utility room. Upstairs three family bedrooms offer private baths, walk in closets, and trey ceilings. A secluded study boasts large windows for natural sunlight. An outdoor lounge on the second level completes this luxury house plan.

This floor plan is found in our Mediterranean house plans section

Full Specs and Features

icon Total Living Area

  • Main floor: 4324
  • Upper floor: 2875
  • Porches: 63
  • Total Finished Sq. Ft.: 7199

icon Beds/Baths

  • Bedrooms: 4
  • Full Baths: 5
  • Half Baths: 2

icon Garage

  • Garage: 959
  • Garage Stalls: 3

icon Levels

  • 2 stories

Dimension

  • Width: 101' 0"
  • Depth: 90' 6"
  • Height: 33' 9"

Roof slope

  • 7:12 (primary)

Walls (exterior)

  • 2"x6"

Ceiling heights

  • 11' (Main)
    9' (Upper)

Foundation Options

  • Slab Standard With Plan

How Much Will It Cost To Build?

Wondering what it will actually cost to bring this home to life? Get an instant, customized estimate based on your chosen plan and location.

GET MY COST TO BUILD ESTIMATE

Modify This Plan

"Need Content here about modifying your plan"

Customize This Plan

House Plan Features

Suited for corner lots Suited for a back view
Main floor Master Master sitting area/Nursery Teen suite/Jack & Jill bath
Island Walk-in pantry Butler's pantry Eating bar Nook / breakfast
Family room Hobby / rec-room Gym / exercise room Main Floor laundry Loft / balcony Formal dining room Formal living room Den / office / computer
Covered rear porch
Grand Entry Circular / dual staircases Vaulted/Volume/Dramatic ceilings
Oversized garage (3+) Side-entry garage

Reviews

How Much Will It Cost To Build?

Wondering what it will actually cost to bring this home to life? Get an instant, customized estimate based on your chosen plan and location.

GET MY COST TO BUILD ESTIMATE

Modify This Plan

Need changes to the layout or features? Our team can modify any plan to match your vision.

Customize This Plan

House Plan Features

Suited for corner lots Suited for a back view
Main floor Master Master sitting area/Nursery Teen suite/Jack & Jill bath
Island Walk-in pantry Butler's pantry Eating bar Nook / breakfast
Family room Hobby / rec-room Gym / exercise room Main Floor laundry Loft / balcony Formal dining room Formal living room Den / office / computer
Covered rear porch
Grand Entry Circular / dual staircases Vaulted/Volume/Dramatic ceilings
Oversized garage (3+) Side-entry garage

Need Some Quick Tips Or Advice?

We want to help you design the house of your dreams as best as we can. If you can't find the answers you're looking for here, get in touch with our licensed architect or a designer!