Mountain or Rustic House Plan - 3 Bedrooms, 2 Bath, 1662 Sq Ft Plan 26-120

New plans now available on

dreambook-head-logo See all available plans
  • SPRING SALE - 15% OFF FOR A LIMITED TIME

    Some Restriction Apply - Prices as Marked

All plans are copyrighted by the individual designer.

Photographs may reflect custom changes that were not included in the original design.

Design Comments

The Great room in this narrow lot cottage design redefines the terms; open floor plan, versatile and spaciousness with its twenty-three foot clear span width and partial vaulted ceiling. The side screened porch area adjacent to the kitchen, the partially rear cover deck and rear open sundeck ensures ongoing individual or group activities regardless of the weather or local resident insect life intrusions.

I have given the Great Room staircase the moniker “a square spiral staircase”, having all the great attributes of a spiral staircase but having none of the tight restrictiveness and limited furniture access usually associated with one.

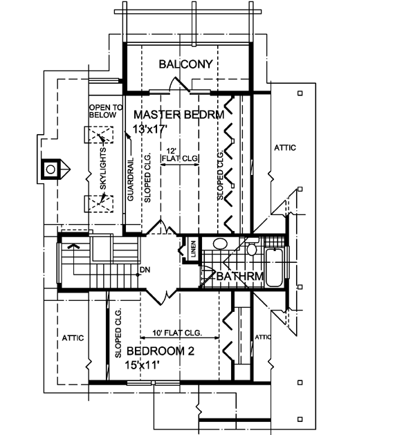
The two second floor bedrooms with ten and twelve foot ceilings and private covered balcony bring a soothing airiness to this vaulted level.

Daylight basement plan contains two additional bedrooms, shared bathroom and multipurpose recreation room with patio access. The separate private entrance easily transforms this level into a home office or business space.

3 Bedroom, 2 Bath Mountain Or Rustic House Plan #26-120

Plan Purchase Options

Price: $0

Please uncheck first "Purchase MML without any plan package" under MONSTER MATERIAL LIST

Monster Material List
Optional Add-Ons
guaranted-label.png

Best Price Guarantee

*Payment Plans Now
Available Through

img See if you qualify

Floor Plans

What's included?
  • Main Floor

    Reverse

    Clicking the Reverse button does not mean you are ordering your plan reversed. It is for visualization purposes only. You may reverse the plan by ordering under “Optional Add-ons”.

    Main Floor Plan: 26-120
  • Upper/Second Floor

    Reverse

    Clicking the Reverse button does not mean you are ordering your plan reversed. It is for visualization purposes only. You may reverse the plan by ordering under “Optional Add-ons”.

    Upper/Second Floor Plan: 26-120

Rear/Alternate Elevations

  • Rear Elevation

    Reverse

    Clicking the Reverse button does not mean you are ordering your plan reversed. It is for visualization purposes only. You may reverse the plan by ordering under “Optional Add-ons”.

    Rear Elevation Plan: 26-120

House Plan Highlights

Full Specs and Features

icon Total Living Area

  • Main floor: 976
  • Upper floor: 686
  • Basement: 976
  • Porches: 73
  • Total Finished Sq. Ft.: 1662

icon Beds/Baths

  • Bedrooms: 3
  • Full Baths: 2

icon Levels

  • 2 stories

Dimension

  • Width: 36' 0"
  • Depth: 50' 6"

Roof slope

  • 12:12 (primary)
  • 6:12 (secondary)

Walls (exterior)

  • 2"x6"

Ceiling heights

  • 8' (Main)

Foundation Options

  • Basement Standard With Plan
  • Daylight basement Standard With Plan

How Much Will It Cost To Build?

Wondering what it will actually cost to bring this home to life? Get an instant, customized estimate based on your chosen plan and location.

GET MY COST TO BUILD ESTIMATE

Modify This Plan

"Need Content here about modifying your plan"

Customize This Plan

House Plan Features

Suited for a back view Suited for a down-sloping lot Suited for a narrow lot Suited For A Vacation Home
Upstairs Master
Eating bar
Great room Main Floor laundry Loft / balcony Open concept floor plan No formal living/dining Unfinished/future space
Covered front porch Covered rear porch Screened porch/sunroom
Vaulted/Volume/Dramatic ceilings

Reviews

How Much Will It Cost To Build?

Wondering what it will actually cost to bring this home to life? Get an instant, customized estimate based on your chosen plan and location.

GET MY COST TO BUILD ESTIMATE

Modify This Plan

Need changes to the layout or features? Our team can modify any plan to match your vision.

Customize This Plan

House Plan Features

Suited for a back view Suited for a down-sloping lot Suited for a narrow lot Suited For A Vacation Home
Upstairs Master
Eating bar
Great room Main Floor laundry Loft / balcony Open concept floor plan No formal living/dining Unfinished/future space
Covered front porch Covered rear porch Screened porch/sunroom
Vaulted/Volume/Dramatic ceilings

Need Some Quick Tips Or Advice?

We want to help you design the house of your dreams as best as we can. If you can't find the answers you're looking for here, get in touch with our licensed architect or a designer!