Mountain or Rustic House Plans - 3 Bed, 2 Bath, 2549 Sq Ft | Plan 7-1147 | Monster House Plans

New plans now available on

dreambook-head-logo See all available plans

All plans are copyrighted by the individual designer.

Photographs may reflect custom changes that were not included in the original design.

Design Comments

Entry/Great Rm Cathedral

3 Bedroom, 2 Bath Mountain Or Rustic House Plan #7-1147

Plan Purchase Options

Price: $0

Please uncheck first "Purchase MML without any plan package" under MONSTER MATERIAL LIST

Monster Material List
Optional Add-Ons
guaranted-label.png

Best Price Guarantee

*Payment Plans Now
Available Through

img See if you qualify

Floor Plans

What's included?
  • Main Floor

    Reverse

    Clicking the Reverse button does not mean you are ordering your plan reversed. It is for visualization purposes only. You may reverse the plan by ordering under “Optional Add-ons”.

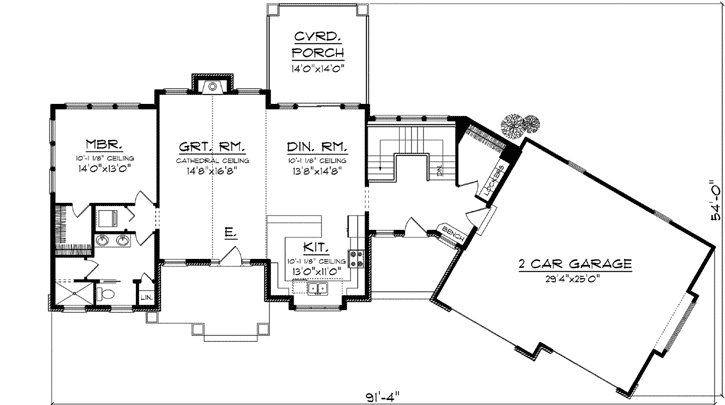
    Main Floor Plan: 7-1147
  • Lower Floor

    Reverse

    Clicking the Reverse button does not mean you are ordering your plan reversed. It is for visualization purposes only. You may reverse the plan by ordering under “Optional Add-ons”.

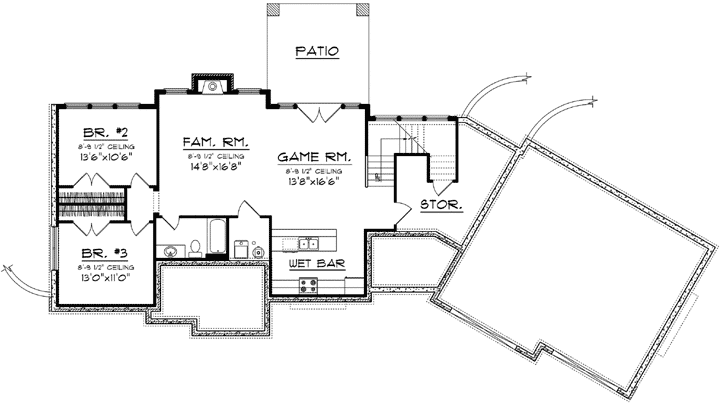
    Lower Floor Plan: 7-1147

Rear/Alternate Elevations

  • Rear Elevation

    Reverse

    Clicking the Reverse button does not mean you are ordering your plan reversed. It is for visualization purposes only. You may reverse the plan by ordering under “Optional Add-ons”.

    Rear Elevation Plan: 7-1147

House Plan Highlights

Massive wooden columns define the front porch entry of this craftsman inspired ranch home. Stone shingle siding metal roofs and a garage cupola all add extra detail giving this home unique curbs appeal. As you enter this home youll be impressed with the fireplace flanked by windows allowing plenty of natural light into the living area. The kitchen lies to the front of the home just to the right of the entry and includes a breakfast bar that overlooks the dining area. The master suite is found on the main level to the right of the home while additional bedrooms are located in the lower level. Here you also find a large family room eating area and a full bath. A two-stall angle loaded garage completes this plan.

This floor plan is found in our Mountain or Rustic house plans section

Full Specs and Features

icon Total Living Area

  • Main floor: 1450
  • Lower Floor: 1099
  • Porches: 343
  • Total Finished Sq. Ft.: 2549

icon Beds/Baths

  • Bedrooms: 3
  • Full Baths: 2

icon Garage

  • Garage: 746
  • Garage Stalls: 2

icon Levels

  • 1 story

Dimension

  • Width: 91' 4"
  • Depth: 54' 0"
  • Height: 24' 6"

Roof slope

  • 12:12 (primary)
  • 10:12 (secondary)

Walls (exterior)

  • 2"x6"

Ceiling heights

  • 10' (Main)

Foundation Options

  • Basement $295
  • Walk-out basement Standard With Plan
  • Crawlspace $415
  • Slab $415

How Much Will It Cost To Build?

Wondering what it will actually cost to bring this home to life? Get an instant, customized estimate based on your chosen plan and location.

GET MY COST TO BUILD ESTIMATE

Modify This Plan

"Need Content here about modifying your plan"

Customize This Plan

House Plan Features

Suited for a back view
Walk-in pantry Hearth room
Great room Open concept floor plan Mud room No formal living/dining
Covered front porch Covered rear porch Screened porch/sunroom
Oversized garage (3+)

Reviews

How Much Will It Cost To Build?

Wondering what it will actually cost to bring this home to life? Get an instant, customized estimate based on your chosen plan and location.

GET MY COST TO BUILD ESTIMATE

Modify This Plan

Need changes to the layout or features? Our team can modify any plan to match your vision.

Customize This Plan

House Plan Features

Suited for a back view
Walk-in pantry Hearth room
Great room Open concept floor plan Mud room No formal living/dining
Covered front porch Covered rear porch Screened porch/sunroom
Oversized garage (3+)

Need Some Quick Tips Or Advice?

We want to help you design the house of your dreams as best as we can. If you can't find the answers you're looking for here, get in touch with our licensed architect or a designer!