Mountain or Rustic House Plans - 4 Bed, 4 Bath, 3069 Sq Ft | Plan 61-113 | Monster House Plans

New plans now available on

dreambook-head-logo See all available plans

All plans are copyrighted by the individual designer.

Photographs may reflect custom changes that were not included in the original design.

Design Comments

The alternate upper floor plan option that contains the Media room adds 362 square feet to the upper floor, making the total square footage (not including the Bonus Room) 3,431 square feet.

4 Bedroom, 4 Bath Mountain Or Rustic House Plan #61-113

Plan Purchase Options

Price: $0

Please uncheck first "Purchase MML without any plan package" under MONSTER MATERIAL LIST

Monster Material List
Optional Add-Ons
guaranted-label.png

Best Price Guarantee

*Payment Plans Now
Available Through

img See if you qualify

Floor Plans

What's included?
  • Main Floor

    Reverse

    Clicking the Reverse button does not mean you are ordering your plan reversed. It is for visualization purposes only. You may reverse the plan by ordering under “Optional Add-ons”.

    Main Floor Plan: 61-113
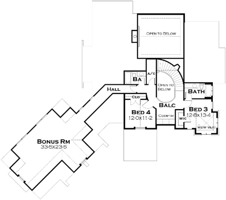
  • Upper/Second Floor

    Reverse

    Clicking the Reverse button does not mean you are ordering your plan reversed. It is for visualization purposes only. You may reverse the plan by ordering under “Optional Add-ons”.

    Upper/Second Floor Plan: 61-113
  • Alternate Floor Plans

    Reverse

    Clicking the Reverse button does not mean you are ordering your plan reversed. It is for visualization purposes only. You may reverse the plan by ordering under “Optional Add-ons”.

    Mountain-or-rustic Style Home Design 61-113

House Plan Highlights

A charming tower graces a wrap around porch with rustic detail. Entrance reveals a Dining Room served by a butler's pantry, which leads to an Island Kitchen. A wide arch provides view into the vaulted Family Room.

Nearby a private entrance to the Master Bedroom leads to a luxurious master bath and walk-in shower. The oversized Utility Room provides access from adjacent the Garage or nearest the Master Suite. A pass thru between the Master WIC and Utility adds efficiency.

A grand staircase leads to the upstairs bedrooms, which have private baths and a shared desk area. A hall leads to a Bonus Room over the Garage, which is very quietly tucked away.

This floor plan is found in our Mountain or Rustic house plans section

Full Specs and Features

icon Total Living Area

  • Main floor: 2443
  • Upper floor: 626
  • Bonus: 730
  • Porches: 946
  • Total Finished Sq. Ft.: 3069

icon Beds/Baths

  • Bedrooms: 4
  • Full Baths: 4

icon Garage

  • Garage: 1334
  • Garage Stalls: 3

icon Levels

  • 2 stories

Dimension

  • Width: 94' 0"
  • Depth: 93' 0"

Roof slope

  • 12:12 (primary)
  • 4:12 (secondary)

Walls (exterior)

  • 2"x6"

Ceiling heights

  • 10' (Main)
    9' (Upper)

Foundation Options

  • Basement $395
  • Walk-out basement $395
  • Crawlspace $195
  • Slab Standard With Plan

How Much Will It Cost To Build?

Wondering what it will actually cost to bring this home to life? Get an instant, customized estimate based on your chosen plan and location.

GET MY COST TO BUILD ESTIMATE

Modify This Plan

"Need Content here about modifying your plan"

Customize This Plan

House Plan Features

Suited for a back view
Main floor Master Teen suite/Jack & Jill bath
Island Walk-in pantry Butler's pantry Eating bar Nook / breakfast
Bonus room Family room Main Floor laundry Mud room Formal dining room Den / office / computer Unfinished/future space
Covered front porch Covered rear porch Wrap-around porch
Grand Entry Circular / dual staircases Vaulted/Volume/Dramatic ceilings Photos Available
Workshop Oversized garage (3+) Side-entry garage

Reviews

How Much Will It Cost To Build?

Wondering what it will actually cost to bring this home to life? Get an instant, customized estimate based on your chosen plan and location.

GET MY COST TO BUILD ESTIMATE

Modify This Plan

Need changes to the layout or features? Our team can modify any plan to match your vision.

Customize This Plan

House Plan Features

Suited for a back view
Main floor Master Teen suite/Jack & Jill bath
Island Walk-in pantry Butler's pantry Eating bar Nook / breakfast
Bonus room Family room Main Floor laundry Mud room Formal dining room Den / office / computer Unfinished/future space
Covered front porch Covered rear porch Wrap-around porch
Grand Entry Circular / dual staircases Vaulted/Volume/Dramatic ceilings Photos Available
Workshop Oversized garage (3+) Side-entry garage

Need Some Quick Tips Or Advice?

We want to help you design the house of your dreams as best as we can. If you can't find the answers you're looking for here, get in touch with our licensed architect or a designer!