Mountain or Rustic House Plan - 4 Bedrooms, 3 Bath, 3393 Sq Ft Plan 69-934

New plans now available on

dreambook-head-logo See all available plans

All plans are copyrighted by the individual designer.

Photographs may reflect custom changes that were not included in the original design.

Design Comments

Welcome to this build down daylight  basement plan with a 3-car stacked garage and an open floor layout. This 114’ wide by 54’ deep plan is perfect for gradual to severe slopes.

4 Bedroom, 3 Bath Mountain Or Rustic House Plan #69-934

Plan Purchase Options

Price: $0

Please uncheck first "Purchase MML without any plan package" under MONSTER MATERIAL LIST

Monster Material List
Optional Add-Ons
guaranted-label.png

Best Price Guarantee

*Payment Plans Now
Available Through

img See if you qualify

Floor Plans

What's included?
  • Main Floor

    Reverse

    Clicking the Reverse button does not mean you are ordering your plan reversed. It is for visualization purposes only. You may reverse the plan by ordering under “Optional Add-ons”.

    Main Floor Plan: 69-934
  • Lower Floor

    Reverse

    Clicking the Reverse button does not mean you are ordering your plan reversed. It is for visualization purposes only. You may reverse the plan by ordering under “Optional Add-ons”.

    Lower Floor Plan: 69-934
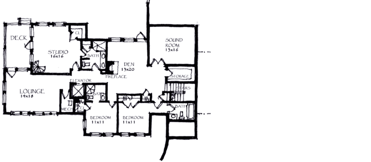
  • Bonus Floor

    Reverse

    Clicking the Reverse button does not mean you are ordering your plan reversed. It is for visualization purposes only. You may reverse the plan by ordering under “Optional Add-ons”.

    Bonus Floor Plan: 69-934

House Plan Highlights

Full Specs and Features

icon Total Living Area

  • Main floor: 1981
  • Lower Floor: 1412
  • Bonus: 686
  • Total Finished Sq. Ft.: 3393

icon Beds/Baths

  • Bedrooms: 4
  • Full Baths: 3
  • Half Baths: 1

icon Garage

  • Garage Stalls: 3

icon Levels

  • 1 story

Dimension

  • Width: 113' 0"
  • Depth: 54' 0"
  • Height: 32' 0"

Walls (exterior)

  • 2"x6"

Exterior Finish

  • Combination

Foundation Options

  • Basement $400
  • Walk-out basement Standard With Plan
  • Crawlspace $200
  • Slab $200

How Much Will It Cost To Build?

Wondering what it will actually cost to bring this home to life? Get an instant, customized estimate based on your chosen plan and location.

GET MY COST TO BUILD ESTIMATE

Modify This Plan

"Need Content here about modifying your plan"

Customize This Plan

House Plan Features

Suited for a back view Suited for a side-sloping lot Suited for a down-sloping lot
Teen suite/Jack & Jill bath In-law quarters/apartment
Island Walk-in pantry Eating bar
Bonus room Family room Great room Media room Open concept floor plan Mud room No formal living/dining
Covered rear porch
Elevator Photos Available
Oversized garage (3+)

Reviews

How Much Will It Cost To Build?

Wondering what it will actually cost to bring this home to life? Get an instant, customized estimate based on your chosen plan and location.

GET MY COST TO BUILD ESTIMATE

Modify This Plan

Need changes to the layout or features? Our team can modify any plan to match your vision.

Customize This Plan

House Plan Features

Suited for a back view Suited for a side-sloping lot Suited for a down-sloping lot
Teen suite/Jack & Jill bath In-law quarters/apartment
Island Walk-in pantry Eating bar
Bonus room Family room Great room Media room Open concept floor plan Mud room No formal living/dining
Covered rear porch
Elevator Photos Available
Oversized garage (3+)

Need Some Quick Tips Or Advice?

We want to help you design the house of your dreams as best as we can. If you can't find the answers you're looking for here, get in touch with our licensed architect or a designer!