Northwest House Plans - 3 Bed, 2 Bath, 1522 Sq Ft | Plan 35-181 | Monster House Plans

New plans now available on

dreambook-head-logo See all available plans
SHARE ON

All plans are copyrighted by the individual designer.

Photographs may reflect custom changes that were not included in the original design.

3 Bedroom, 2 Bath Northwest House Plan #35-181

Plan Purchase Options

Price: $0

Please uncheck first "Purchase MML without any plan package" under MONSTER MATERIAL LIST

Monster Material List
Optional Add-Ons
guaranted-label.png

Best Price Guarantee

*Payment Plans Now
Available Through

img See if you qualify

Floor Plans

What's included?
  • Main Floor

    Reverse

    Clicking the Reverse button does not mean you are ordering your plan reversed. It is for visualization purposes only. You may reverse the plan by ordering under “Optional Add-ons”.

    Main Floor Plan: 35-181
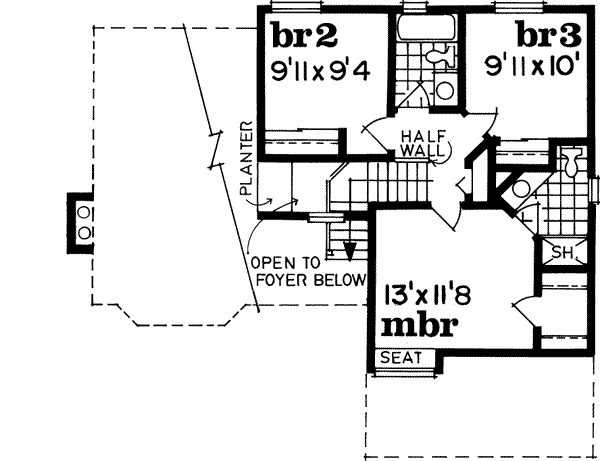
  • Upper/Second Floor

    Reverse

    Clicking the Reverse button does not mean you are ordering your plan reversed. It is for visualization purposes only. You may reverse the plan by ordering under “Optional Add-ons”.

    Upper/Second Floor Plan: 35-181

House Plan Highlights

Vaulted foyer, with open railed staircase, flows to living room and adjoining dining room. Kitchen, with angled sink under corner windows, serves breakfast bay. Spacious family room, with sliding glass access to rear patio, opens to double-car garage. Clerestory windows and plant shelf adorn staircase. Master bedroom features window seat, walk-in closet and three-piece bathroom. Two additional bedrooms share main bathroom, with soaking tub.

This floor plan is found in our Northwest house plans section

Full Specs and Features

icon Total Living Area

  • Main floor: 871
  • Upper floor: 651
  • Total Finished Sq. Ft.: 1522

icon Beds/Baths

  • Bedrooms: 3
  • Full Baths: 2
  • Half Baths: 1

icon Garage

  • Garage: 356
  • Garage Stalls: 2

icon Levels

  • 2 stories

Dimension

  • Width: 40' 0"
  • Depth: 41' 0"
  • Height: 23' 0"

Roof slope

  • 7:12 (primary)

Walls (exterior)

  • 2"x6"

Ceiling heights

  • 8' (Main)
    8' (Upper)

Foundation Options

  • Basement Standard With Plan
  • Walk-out basement $425
  • Crawlspace Standard With Plan
  • Slab $295

How Much Will It Cost To Build?

Wondering what it will actually cost to bring this home to life? Get an instant, customized estimate based on your chosen plan and location.

GET MY COST TO BUILD ESTIMATE

Modify This Plan

"Need Content here about modifying your plan"

Customize This Plan

House Plan Features

Suited for a back view Suited for a narrow lot
Upstairs Master
Nook / breakfast
Family room Open concept floor plan No formal living/dining
Vaulted/Volume/Dramatic ceilings

Reviews

How Much Will It Cost To Build?

Wondering what it will actually cost to bring this home to life? Get an instant, customized estimate based on your chosen plan and location.

GET MY COST TO BUILD ESTIMATE

Modify This Plan

Need changes to the layout or features? Our team can modify any plan to match your vision.

Customize This Plan

House Plan Features

Suited for a back view Suited for a narrow lot
Upstairs Master
Nook / breakfast
Family room Open concept floor plan No formal living/dining
Vaulted/Volume/Dramatic ceilings

Need Some Quick Tips Or Advice?

We want to help you design the house of your dreams as best as we can. If you can't find the answers you're looking for here, get in touch with our licensed architect or a designer!