Ranch House Plans - 3 Bed, 2 Bath, 1298 Sq Ft | Plan 35-426 | Monster House Plans

New plans now available on

dreambook-head-logo See all available plans
  • MEMORIAL DAY SALE! - 15% OFF Most Plans

    Some exceptions apply. Prices as marked.

SHARE ON

All plans are copyrighted by the individual designer.

Photographs may reflect custom changes that were not included in the original design.

3 Bedroom, 2 Bath Ranch House Plan #35-426

Plan Purchase Options

Price: $0

Please uncheck first "Purchase MML without any plan package" under MONSTER MATERIAL LIST

Monster Material List
Optional Add-Ons
guaranted-label.png

Best Price Guarantee

*Payment Plans Now
Available Through

img See if you qualify

Floor Plans

What's included?
  • Main Floor

    Reverse

    Clicking the Reverse button does not mean you are ordering your plan reversed. It is for visualization purposes only. You may reverse the plan by ordering under “Optional Add-ons”.

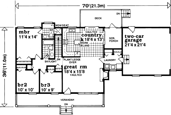
    Main Floor Plan: 35-426
  • Plan Options

    Reverse

    Clicking the Reverse button does not mean you are ordering your plan reversed. It is for visualization purposes only. You may reverse the plan by ordering under “Optional Add-ons”.

    Ranch Style Floor Plans Plan: 35-426

Rear/Alternate Elevations

  • Rear Elevation

    Reverse

    Clicking the Reverse button does not mean you are ordering your plan reversed. It is for visualization purposes only. You may reverse the plan by ordering under “Optional Add-ons”.

    Rear Elevation Plan: 35-426

House Plan Highlights

One-Story Country Style Home
A front veranda, cedar lattice and solid stone chimney enhance the appeal of this one-story country-style home. The open plan begins with the great room, which includes a fireplace and a plant ledge over the wall separating the living space from the country kitchen. The U-shaped kitchen provides an island work counter and sliding glass doors to the rear deck and a screened porch. The master suite also has a wall closet and a private bath with window seat.

This floor plan is found in our Ranch house plans section

Full Specs and Features

icon Total Living Area

  • Main floor: 1298
  • Total Finished Sq. Ft.: 1298

icon Beds/Baths

  • Bedrooms: 3
  • Full Baths: 2

icon Garage

  • Garage: 479
  • Garage Stalls: 2

icon Levels

  • 1 story

Dimension

  • Width: 70' 0"
  • Depth: 36' 0"
  • Height: 23' 0"

Roof slope

  • 9:12 (primary)
  • 4:12 (secondary)

Walls (exterior)

  • 2"x6"

Ceiling heights

  • 8' (Main)

Foundation Options

  • Basement Standard With Plan
  • Walk-out basement $425
  • Crawlspace Standard With Plan
  • Slab $295

How Much Will It Cost To Build?

Wondering what it will actually cost to bring this home to life? Get an instant, customized estimate based on your chosen plan and location.

GET MY COST TO BUILD ESTIMATE

Modify This Plan

"Need Content here about modifying your plan"

Customize This Plan

House Plan Features

Suited for corner lots Suited for a back view
Island Eating bar
Great room Open concept floor plan No formal living/dining
Covered front porch Covered rear porch Screened porch/sunroom
Vaulted/Volume/Dramatic ceilings
Side-entry garage

Reviews

How Much Will It Cost To Build?

Wondering what it will actually cost to bring this home to life? Get an instant, customized estimate based on your chosen plan and location.

GET MY COST TO BUILD ESTIMATE

Modify This Plan

Need changes to the layout or features? Our team can modify any plan to match your vision.

Customize This Plan

House Plan Features

Suited for corner lots Suited for a back view
Island Eating bar
Great room Open concept floor plan No formal living/dining
Covered front porch Covered rear porch Screened porch/sunroom
Vaulted/Volume/Dramatic ceilings
Side-entry garage

Need Some Quick Tips Or Advice?

We want to help you design the house of your dreams as best as we can. If you can't find the answers you're looking for here, get in touch with our licensed architect or a designer!