Ranch House Plans - 4 Bed, 3 Bath, 2378 Sq Ft | Plan 7-445 | Monster House Plans

New plans now available on

dreambook-head-logo See all available plans
SHARE ON

All plans are copyrighted by the individual designer.

Photographs may reflect custom changes that were not included in the original design.

4 Bedroom, 3 Bath Ranch House Plan #7-445

Plan Purchase Options

Price: $0

Please uncheck first "Purchase MML without any plan package" under MONSTER MATERIAL LIST

Monster Material List
Optional Add-Ons
guaranted-label.png

Best Price Guarantee

*Payment Plans Now
Available Through

img See if you qualify

Floor Plans

What's included?
  • Main Floor

    Reverse

    Clicking the Reverse button does not mean you are ordering your plan reversed. It is for visualization purposes only. You may reverse the plan by ordering under “Optional Add-ons”.

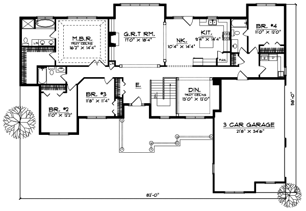
    Main Floor Plan: 7-445

Rear/Alternate Elevations

  • Rear Elevation

    Reverse

    Clicking the Reverse button does not mean you are ordering your plan reversed. It is for visualization purposes only. You may reverse the plan by ordering under “Optional Add-ons”.

    Rear Elevation Plan: 7-445

House Plan Highlights

This farmhouse-style ranch home is made immediately welcoming by a covered porch accented by columns. The great room is made beautiful by a ten-foot ceiling a fireplace surrounded by built-ins and a wall of rear-facing windows. The kitchen and nook are nearby and contain an island workspace a pantry and access to the rear yard and he formal dining room is perfect for serving special meals. The lovely master suite is graced by a tray ceiling a walk-in closet and a delightful master bath. Two family bedrooms are near the master suite and share a hall bath. The fourth bedroom would make a great guestroom it has privacy on the other side of the plan and access to a full hall bath. The laundry room sits in a service hall that leads to the three-car garage.

This floor plan is found in our Ranch house plans section

Full Specs and Features

icon Total Living Area

  • Main floor: 2378
  • Total Finished Sq. Ft.: 2378

icon Beds/Baths

  • Bedrooms: 4
  • Full Baths: 3

icon Garage

  • Garage: 750
  • Garage Stalls: 3

icon Levels

  • 1 story

Dimension

  • Width: 82' 0"
  • Depth: 58' 0"
  • Height: 24' 6"

Roof slope

  • 8:12 (primary)
  • 10:12 (secondary)

Walls (exterior)

  • 2"x6"

Ceiling heights

  • 9' (Main)

Foundation Options

  • Basement Standard With Plan
  • Crawlspace $415
  • Slab $415

How Much Will It Cost To Build?

Wondering what it will actually cost to bring this home to life? Get an instant, customized estimate based on your chosen plan and location.

GET MY COST TO BUILD ESTIMATE

Modify This Plan

"Need Content here about modifying your plan"

Customize This Plan

House Plan Features

Suited for corner lots Suited for a back view Suited for a down-sloping lot
Upstairs Master Teen suite/Jack & Jill bath
Island Walk-in pantry Eating bar
Great room Main Floor laundry No formal living/dining Den / office / computer
Vaulted/Volume/Dramatic ceilings
Oversized garage (3+) Side-entry garage

Reviews

How Much Will It Cost To Build?

Wondering what it will actually cost to bring this home to life? Get an instant, customized estimate based on your chosen plan and location.

GET MY COST TO BUILD ESTIMATE

Modify This Plan

Need changes to the layout or features? Our team can modify any plan to match your vision.

Customize This Plan

House Plan Features

Suited for corner lots Suited for a back view Suited for a down-sloping lot
Upstairs Master Teen suite/Jack & Jill bath
Island Walk-in pantry Eating bar
Great room Main Floor laundry No formal living/dining Den / office / computer
Vaulted/Volume/Dramatic ceilings
Oversized garage (3+) Side-entry garage

Need Some Quick Tips Or Advice?

We want to help you design the house of your dreams as best as we can. If you can't find the answers you're looking for here, get in touch with our licensed architect or a designer!