Ranch House Plans - 3 Bed, 2 Bath, 2784 Sq Ft | Plan 7-1315 | Monster House Plans

New plans now available on

dreambook-head-logo See all available plans
SHARE ON

All plans are copyrighted by the individual designer.

Photographs may reflect custom changes that were not included in the original design.

Design Comments

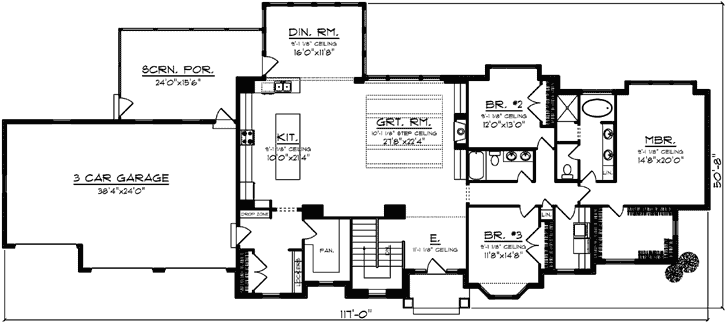
Entry 11'. Great Rm 10' Step

3 Bedroom, 2 Bath Ranch House Plan #7-1315

Plan Purchase Options

Price: $0

Please uncheck first "Purchase MML without any plan package" under MONSTER MATERIAL LIST

Monster Material List
Optional Add-Ons
guaranted-label.png

Best Price Guarantee

*Payment Plans Now
Available Through

img See if you qualify

Floor Plans

What's included?
  • Main Floor

    Reverse

    Clicking the Reverse button does not mean you are ordering your plan reversed. It is for visualization purposes only. You may reverse the plan by ordering under “Optional Add-ons”.

    Main Floor Plan: 7-1315

Rear/Alternate Elevations

  • Rear Elevation

    Reverse

    Clicking the Reverse button does not mean you are ordering your plan reversed. It is for visualization purposes only. You may reverse the plan by ordering under “Optional Add-ons”.

    Rear Elevation Plan: 7-1315

House Plan Highlights

ul liThis traditional ranch design is sure to win you over with a very classy exterior.li li You are welcomed with eleven-foot ceilings that give you access to the great room and kitchen.li li All three bedrooms including the master bedroom are located to left of the house.li li The master bedroom includes a Jacuzzi tub dual sinks and a spacious walk-in closet.li li The other two bedrooms share a full bathroom right off of the hallway.li li The three-stall garage is located on the side of the house with a large screen-in porch behind the garage. li ul

This floor plan is found in our Ranch house plans section

Full Specs and Features

icon Total Living Area

  • Main floor: 2784
  • Porches: 402
  • Total Finished Sq. Ft.: 2784

icon Beds/Baths

  • Bedrooms: 3
  • Full Baths: 2

icon Garage

  • Garage: 903
  • Garage Stalls: 3

icon Levels

  • 1 story

Dimension

  • Width: 117' 0"
  • Depth: 50' 8"
  • Height: 26' 0"

Roof slope

  • 12:12 (primary)
  • 10:12 (secondary)

Walls (exterior)

  • 2"x6"

Ceiling heights

  • 9' (Main)

Exterior Finish

  • Combination

Roof Framing

  • Truss

Foundation Options

  • Basement Standard With Plan
  • Crawlspace $415
  • Slab $415

How Much Will It Cost To Build?

Wondering what it will actually cost to bring this home to life? Get an instant, customized estimate based on your chosen plan and location.

GET MY COST TO BUILD ESTIMATE

Modify This Plan

"Need Content here about modifying your plan"

Customize This Plan

House Plan Features

Suited for corner lots Suited for a back view
Upstairs Master
Island Eating bar Nook / breakfast
Family room Main Floor laundry Open concept floor plan Formal dining room Formal living room
Screened porch/sunroom
Vaulted/Volume/Dramatic ceilings Photos Available
Workshop Oversized garage (3+) Side-entry garage

Reviews

How Much Will It Cost To Build?

Wondering what it will actually cost to bring this home to life? Get an instant, customized estimate based on your chosen plan and location.

GET MY COST TO BUILD ESTIMATE

Modify This Plan

Need changes to the layout or features? Our team can modify any plan to match your vision.

Customize This Plan

House Plan Features

Suited for corner lots Suited for a back view
Upstairs Master
Island Eating bar Nook / breakfast
Family room Main Floor laundry Open concept floor plan Formal dining room Formal living room
Screened porch/sunroom
Vaulted/Volume/Dramatic ceilings Photos Available
Workshop Oversized garage (3+) Side-entry garage

Need Some Quick Tips Or Advice?

We want to help you design the house of your dreams as best as we can. If you can't find the answers you're looking for here, get in touch with our licensed architect or a designer!