Ranch House Plans - 5 Bed, 4 Bath, 2876 Sq Ft | Plan 7-1255 | Monster House Plans

New plans now available on

dreambook-head-logo See all available plans
  • MEMORIAL DAY SALE! - 15% OFF Most Plans

    Some exceptions apply. Prices as marked.

SHARE ON

All plans are copyrighted by the individual designer.

Photographs may reflect custom changes that were not included in the original design.

Design Comments

BR. #4, Din. Rm., Kit., Entry, 10'. MBR. 10'. Great. Rm. Cathedral.

5 Bedroom, 4 Bath Ranch House Plan #7-1255

Plan Purchase Options

Price: $0

Please uncheck first "Purchase MML without any plan package" under MONSTER MATERIAL LIST

Monster Material List
Optional Add-Ons
guaranted-label.png

Best Price Guarantee

*Payment Plans Now
Available Through

img See if you qualify

Floor Plans

What's included?
  • Main Floor

    Reverse

    Clicking the Reverse button does not mean you are ordering your plan reversed. It is for visualization purposes only. You may reverse the plan by ordering under “Optional Add-ons”.

    Main Floor Plan: 7-1255
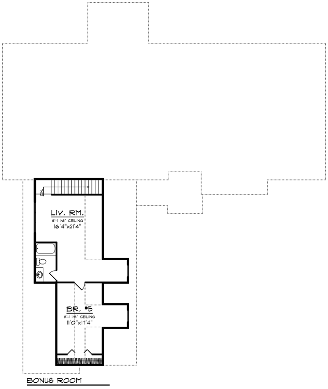
  • Upper/Second Floor

    Reverse

    Clicking the Reverse button does not mean you are ordering your plan reversed. It is for visualization purposes only. You may reverse the plan by ordering under “Optional Add-ons”.

    Upper/Second Floor Plan: 7-1255

Rear/Alternate Elevations

  • Rear Elevation

    Reverse

    Clicking the Reverse button does not mean you are ordering your plan reversed. It is for visualization purposes only. You may reverse the plan by ordering under “Optional Add-ons”.

    Rear Elevation Plan: 7-1255

House Plan Highlights

This unique ranch home includes five bedrooms and extra living space found above the garage.A 10 ceiling greets you as you enter and draws you into the great room directly ahead where a cathedral ceiling will grab your attention.An open concept floor plan combines the kitchen dining and great rooms to create a living space thats large but comfortable.The master suite is tucked behind the garage away from the other bedrooms for maximum privacy for mom and dad. It includes a step ceiling in the bedroom spacious walk-in closet and private bath with Jacuzzi tub.Bedrooms two and three share a Jack-and-Jill bathroom while bedroom four has direct access to the bathroom off the hallway.The fifth bedroom is located upstairs above the garage along with a large living area.

This floor plan is found in our Ranch house plans section

Full Specs and Features

icon Total Living Area

  • Main floor: 2876
  • Bonus: 698
  • Porches: 136
  • Total Finished Sq. Ft.: 2876

icon Beds/Baths

  • Bedrooms: 5
  • Full Baths: 4

icon Garage

  • Garage: 1307
  • Garage Stalls: 3

icon Levels

  • 1 story

Dimension

  • Width: 79' 8"
  • Depth: 91' 4"
  • Height: 26' 0"

Roof slope

  • 9:12 (primary)
  • 9:12 (secondary)

Walls (exterior)

  • 2"x6"

Ceiling heights

  • 9' (Main)
    8' (Upper)

Exterior Finish

  • Combination

Roof Framing

  • Truss

Foundation Options

  • Basement Standard With Plan
  • Crawlspace $415
  • Slab $415

How Much Will It Cost To Build?

Wondering what it will actually cost to bring this home to life? Get an instant, customized estimate based on your chosen plan and location.

GET MY COST TO BUILD ESTIMATE

Modify This Plan

"Need Content here about modifying your plan"

Customize This Plan

House Plan Features

Suited for corner lots Suited for a back view
Main floor Master Teen suite/Jack & Jill bath
Island Walk-in pantry Eating bar
Great room Main Floor laundry Open concept floor plan No formal living/dining Den / office / computer
Screened porch/sunroom
Vaulted/Volume/Dramatic ceilings
Oversized garage (3+) Side-entry garage

Reviews

How Much Will It Cost To Build?

Wondering what it will actually cost to bring this home to life? Get an instant, customized estimate based on your chosen plan and location.

GET MY COST TO BUILD ESTIMATE

Modify This Plan

Need changes to the layout or features? Our team can modify any plan to match your vision.

Customize This Plan

House Plan Features

Suited for corner lots Suited for a back view
Main floor Master Teen suite/Jack & Jill bath
Island Walk-in pantry Eating bar
Great room Main Floor laundry Open concept floor plan No formal living/dining Den / office / computer
Screened porch/sunroom
Vaulted/Volume/Dramatic ceilings
Oversized garage (3+) Side-entry garage

Need Some Quick Tips Or Advice?

We want to help you design the house of your dreams as best as we can. If you can't find the answers you're looking for here, get in touch with our licensed architect or a designer!