Ranch House Plan - 5 Bedrooms, 3 Bath, 3312 Sq Ft Plan 7-544

New plans now available on

dreambook-head-logo See all available plans
  • HALLOWEEN SALE - 15% OFF

SHARE ON

All plans are copyrighted by the individual designer.

Photographs may reflect custom changes that were not included in the original design.

5 Bedroom, 3 Bath Ranch House Plan #7-544

Plan Purchase Options

Price: $0

Please uncheck first "Purchase MML without any plan package" under MONSTER MATERIAL LIST

Monster Material List
Optional Add-Ons
guaranted-label.png

Best Price Guarantee

*Payment Plans Now
Available Through

img See if you qualify

Floor Plans

What's included?
  • Main Floor

    Reverse

    Clicking the Reverse button does not mean you are ordering your plan reversed. It is for visualization purposes only. You may reverse the plan by ordering under “Optional Add-ons”.

    Main Floor Plan: 7-544
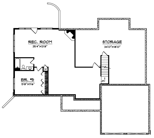
  • Lower Floor

    Reverse

    Clicking the Reverse button does not mean you are ordering your plan reversed. It is for visualization purposes only. You may reverse the plan by ordering under “Optional Add-ons”.

    Lower Floor Plan: 7-544

Rear/Alternate Elevations

  • Rear Elevation

    Reverse

    Clicking the Reverse button does not mean you are ordering your plan reversed. It is for visualization purposes only. You may reverse the plan by ordering under “Optional Add-ons”.

    Rear Elevation Plan: 7-544

House Plan Highlights

This traditional ranch enjoys a classic faade with its columns and straight lined roof. The spacious kitchen is separated from the breakfast nook by a snack bar. The adjacent great room features a corner fireplace for cold winter evenings. On the main level three family bedrooms share a bath and the master suite provides royal comfort for the homeowners. Adjoining the two-car garage a big area is reserved for a spacious laundry room with built-in shelves a utility closet built-in lockers and a half-bath. The lower level holds one of the bedrooms with a full bath as well as a huge recreation room with a corner fireplace. There is also ample space provided for storage.

This floor plan is found in our Ranch house plans section

Full Specs and Features

icon Total Living Area

  • Main floor: 2136
  • Lower Floor: 1176
  • Total Finished Sq. Ft.: 3312

icon Beds/Baths

  • Bedrooms: 5
  • Full Baths: 3
  • Half Baths: 1

icon Garage

  • Garage: 551
  • Garage Stalls: 2

icon Levels

  • 1 story

Dimension

  • Width: 66' 8"
  • Depth: 56' 8"
  • Height: 21' 0"

Roof slope

  • 6:12 (primary)
  • 6:12 (secondary)

Walls (exterior)

  • 2"x6"

Ceiling heights

  • 8' (Main)

Foundation Options

  • Daylight basement Standard With Plan
  • Crawlspace $415
  • Slab $415

How Much Will It Cost To Build?

"Need content here about cost to build est."

Buy My Cost To Build Estimate

Modify This Plan

"Need Content here about modifying your plan"

Customize This Plan

House Plan Features

Suited for a back view Suited for a down-sloping lot
Island Eating bar
Great room Open concept floor plan No formal living/dining
Screened porch/sunroom
Vaulted/Volume/Dramatic ceilings

Reviews

How Much Will It Cost To Build?

Wondering what it’ll actually cost to bring your dream home to life? Get a clear, customized estimate based on your chosen plan and location.

Buy My Cost To Build Estimate

Modify This Plan

Need changes to the layout or features? Our team can modify any plan to match your vision.

Customize This Plan

House Plan Features

Suited for a back view Suited for a down-sloping lot
Island Eating bar
Great room Open concept floor plan No formal living/dining
Screened porch/sunroom
Vaulted/Volume/Dramatic ceilings

Need Some Quick Tips Or Advice?

We want to help you design the house of your dreams as best as we can. If you can't find the answers you're looking for here, get in touch with our licensed architect or a designer!