Ranch House Plans - 6 Bed, 4 Bath, 3484 Sq Ft | Plan 77-201 | Monster House Plans

New plans now available on

dreambook-head-logo See all available plans
SHARE ON

All plans are copyrighted by the individual designer.

Photographs may reflect custom changes that were not included in the original design.

6 Bedroom, 4 Bath Ranch House Plan #77-201

Plan Purchase Options

Price: $0

Please uncheck first "Purchase MML without any plan package" under MONSTER MATERIAL LIST

Monster Material List
Optional Add-Ons
guaranted-label.png

Best Price Guarantee

*Payment Plans Now
Available Through

img See if you qualify

Floor Plans

What's included?
  • Main Floor

    Reverse

    Clicking the Reverse button does not mean you are ordering your plan reversed. It is for visualization purposes only. You may reverse the plan by ordering under “Optional Add-ons”.

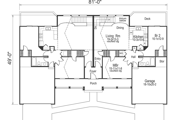
    Main Floor Plan: 77-201
  • Lower Floor

    Reverse

    Clicking the Reverse button does not mean you are ordering your plan reversed. It is for visualization purposes only. You may reverse the plan by ordering under “Optional Add-ons”.

    Lower Floor Plan: 77-201

Rear/Alternate Elevations

  • Rear Elevation

    Reverse

    Clicking the Reverse button does not mean you are ordering your plan reversed. It is for visualization purposes only. You may reverse the plan by ordering under “Optional Add-ons”.

    Rear Elevation Plan: 77-201

House Plan Highlights

  • Atrium Duplex With Room To Grow
  • 3484 total square feet of living area
  • Special features
  • Bedroom #2 doubles could easily be converted to a study and has access to the deck through sliding glass doors
  • An inviting porch and entry foyer lead to a vaulted living roomdining balcony featuring an atrium window wall
  • An atrium opens to a large family room and third bedroom
  • Each unit has 3 bedrooms 2 baths 2-car garage Walk-out basement foundation
  • Duplex has 1742 square feet of living space per unit with 1104 square feet per unit on the first floor and 638 square feet per unit on the lower level

This floor plan is found in our Ranch house plans section

Full Specs and Features

icon Total Living Area

  • Main floor: 2208
  • Lower Floor: 1276
  • Basement: 702
  • Porches: 219
  • Total Finished Sq. Ft.: 3484

icon Beds/Baths

  • Bedrooms: 6
  • Full Baths: 4

icon Garage

  • Garage: 860
  • Garage Stalls: 4

icon Levels

  • 1 story

Dimension

  • Width: 81' 0"
  • Depth: 49' 0"
  • Height: 21' 0"

Roof slope

  • 9:12 (primary)

Walls (exterior)

  • 2"x4"

Ceiling heights

  • 8' (Main)

Foundation Options

  • Walk-out basement Standard With Plan

How Much Will It Cost To Build?

Wondering what it will actually cost to bring this home to life? Get an instant, customized estimate based on your chosen plan and location.

GET MY COST TO BUILD ESTIMATE

Modify This Plan

"Need Content here about modifying your plan"

Customize This Plan

House Plan Features

Suited for a back view Suited for a down-sloping lot
Split bedrooms
Family room Open concept floor plan No formal living/dining

Reviews

How Much Will It Cost To Build?

Wondering what it will actually cost to bring this home to life? Get an instant, customized estimate based on your chosen plan and location.

GET MY COST TO BUILD ESTIMATE

Modify This Plan

Need changes to the layout or features? Our team can modify any plan to match your vision.

Customize This Plan

House Plan Features

Suited for a back view Suited for a down-sloping lot
Split bedrooms
Family room Open concept floor plan No formal living/dining

Need Some Quick Tips Or Advice?

We want to help you design the house of your dreams as best as we can. If you can't find the answers you're looking for here, get in touch with our licensed architect or a designer!