Shingle House Plans - 4 Bed, 2 Bath, 2528 Sq Ft | Plan 7-296 | Monster House Plans

New plans now available on

dreambook-head-logo See all available plans
  • MEMORIAL DAY SALE! - 15% OFF Most Plans

    Some exceptions apply. Prices as marked.

SHARE ON

All plans are copyrighted by the individual designer.

Photographs may reflect custom changes that were not included in the original design.

4 Bedroom, 2 Bath Shingle House Plan #7-296

Plan Purchase Options

Price: $0

Please uncheck first "Purchase MML without any plan package" under MONSTER MATERIAL LIST

Monster Material List
Optional Add-Ons
guaranted-label.png

Best Price Guarantee

*Payment Plans Now
Available Through

img See if you qualify

Floor Plans

What's included?
  • Main Floor

    Reverse

    Clicking the Reverse button does not mean you are ordering your plan reversed. It is for visualization purposes only. You may reverse the plan by ordering under “Optional Add-ons”.

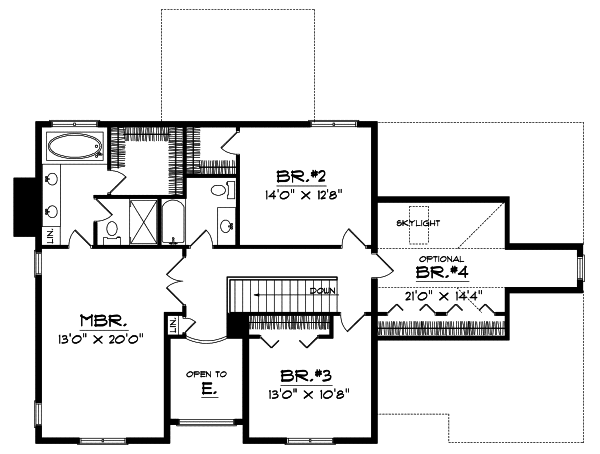
    Main Floor Plan: 7-296
  • Upper/Second Floor

    Reverse

    Clicking the Reverse button does not mean you are ordering your plan reversed. It is for visualization purposes only. You may reverse the plan by ordering under “Optional Add-ons”.

    Upper/Second Floor Plan: 7-296

Rear/Alternate Elevations

  • Rear Elevation

    Reverse

    Clicking the Reverse button does not mean you are ordering your plan reversed. It is for visualization purposes only. You may reverse the plan by ordering under “Optional Add-ons”.

    Rear Elevation Plan: 7-296

House Plan Highlights

This Craftsman-style two-story home has all the modern amenities your family wants. The family room with built-in shelving and a fireplace is ideal for everyday family use. The modern kitchen has wraparound counters and a center island and is open to the sunny breakfast nook. A formal living room and dining room provide an excellent atmosphere for entertaining. Also on the main floor you will find a powder room a laundry room and easy access to the three-car garage. Upstairs the master suite offers a whirlpool tub dual vanities a separated shower area and a walk-in closet. Two additional bedrooms one with a walk-in closet share a full bath. An optional fourth room with a skylight provides endless options--it would be great as a bedroom study or playroom.

This floor plan is found in our Shingle house plans section

Full Specs and Features

icon Total Living Area

  • Main floor: 1423
  • Upper floor: 1105
  • Bonus: 250
  • Total Finished Sq. Ft.: 2528

icon Beds/Baths

  • Bedrooms: 4
  • Full Baths: 2
  • Half Baths: 1

icon Garage

  • Garage: 711
  • Garage Stalls: 3

icon Levels

  • 2 stories

Dimension

  • Width: 60' 4"
  • Depth: 46' 0"
  • Height: 30' 8"

Roof slope

  • 7:12 (primary)
  • 9:12 (secondary)

Walls (exterior)

  • 2"x6"

Ceiling heights

  • 9' (Main)
    8' (Upper)

Foundation Options

  • Basement Standard With Plan
  • Crawlspace $415
  • Slab $415

How Much Will It Cost To Build?

Wondering what it will actually cost to bring this home to life? Get an instant, customized estimate based on your chosen plan and location.

GET MY COST TO BUILD ESTIMATE

Modify This Plan

"Need Content here about modifying your plan"

Customize This Plan

House Plan Features

Suited for a back view
Upstairs Master Teen suite/Jack & Jill bath
Island Walk-in pantry Nook / breakfast
Great room Main Floor laundry Open concept floor plan Formal dining room Formal living room Den / office / computer
Vaulted/Volume/Dramatic ceilings
Oversized garage (3+) RV garage

Reviews

How Much Will It Cost To Build?

Wondering what it will actually cost to bring this home to life? Get an instant, customized estimate based on your chosen plan and location.

GET MY COST TO BUILD ESTIMATE

Modify This Plan

Need changes to the layout or features? Our team can modify any plan to match your vision.

Customize This Plan

House Plan Features

Suited for a back view
Upstairs Master Teen suite/Jack & Jill bath
Island Walk-in pantry Nook / breakfast
Great room Main Floor laundry Open concept floor plan Formal dining room Formal living room Den / office / computer
Vaulted/Volume/Dramatic ceilings
Oversized garage (3+) RV garage

Need Some Quick Tips Or Advice?

We want to help you design the house of your dreams as best as we can. If you can't find the answers you're looking for here, get in touch with our licensed architect or a designer!