Southern Colonial House Plans - 3 Bed, 2 Bath, 2217 Sq Ft | Plan 12-285 | Monster House Plans

New plans now available on

dreambook-head-logo See all available plans

All plans are copyrighted by the individual designer.

Photographs may reflect custom changes that were not included in the original design.

3 Bedroom, 2 Bath Southern Colonial House Plan #12-285

Plan Purchase Options

Price: $0

Please uncheck first "Purchase MML without any plan package" under MONSTER MATERIAL LIST

Monster Material List
Optional Add-Ons
guaranted-label.png

Best Price Guarantee

*Payment Plans Now
Available Through

img See if you qualify

Floor Plans

What's included?
  • Main Floor

    Reverse

    Clicking the Reverse button does not mean you are ordering your plan reversed. It is for visualization purposes only. You may reverse the plan by ordering under “Optional Add-ons”.

    Main Floor Plan: 12-285
  • Upper/Second Floor

    Reverse

    Clicking the Reverse button does not mean you are ordering your plan reversed. It is for visualization purposes only. You may reverse the plan by ordering under “Optional Add-ons”.

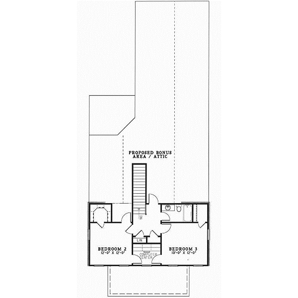
    Upper/Second Floor Plan: 12-285

Rear/Alternate Elevations

  • Rear Elevation

    Reverse

    Clicking the Reverse button does not mean you are ordering your plan reversed. It is for visualization purposes only. You may reverse the plan by ordering under “Optional Add-ons”.

    Rear Elevation Plan: 12-285

House Plan Highlights

Images of traditional values come to mind with this quaint southern home. A delightful covered porch connects to a beautiful foyer leading you to a spacious dining area. The modern and efficient kitchen opens to a breakfast room, adjoined to a great room with fireplace and built-in media center. Accessible to both areas is a grilling porch providing the perfect atmosphere for entertaining. Up the stairs, you'll find two bedrooms with eight foot ceilings that shares a computer center. This home also features a proposed bonus room designed as a convenient future recreation room.

This floor plan is found in our Southern Colonial house plans section

Full Specs and Features

icon Total Living Area

  • Main floor: 1644
  • Upper floor: 573
  • Porches: 312
  • Total Finished Sq. Ft.: 2217

icon Beds/Baths

  • Bedrooms: 3
  • Full Baths: 2
  • Half Baths: 1

icon Garage

  • Garage: 465
  • Garage Stalls: 2

icon Levels

  • 2 stories

Dimension

  • Width: 34' 2"
  • Depth: 84' 2"
  • Height: 28' 9"

Roof slope

  • 12:12 (primary)

Walls (exterior)

  • 2"x4"

Ceiling heights

  • 9' (Main)
    8' (Upper)

Foundation Options

  • Basement $299
  • Daylight basement $399
  • Crawlspace Standard With Plan
  • Slab Standard With Plan

How Much Will It Cost To Build?

Wondering what it will actually cost to bring this home to life? Get an instant, customized estimate based on your chosen plan and location.

GET MY COST TO BUILD ESTIMATE

Modify This Plan

"Need Content here about modifying your plan"

Customize This Plan

House Plan Features

Suited for a narrow lot
Main floor Master
Eating bar Nook / breakfast
Bonus room Great room Main Floor laundry Formal dining room Den / office / computer Unfinished/future space
Covered front porch Covered rear porch Grilling porch/outdoor kitchen
Rear garage Rear-entry garage

Reviews

How Much Will It Cost To Build?

Wondering what it will actually cost to bring this home to life? Get an instant, customized estimate based on your chosen plan and location.

GET MY COST TO BUILD ESTIMATE

Modify This Plan

Need changes to the layout or features? Our team can modify any plan to match your vision.

Customize This Plan

House Plan Features

Suited for a narrow lot
Main floor Master
Eating bar Nook / breakfast
Bonus room Great room Main Floor laundry Formal dining room Den / office / computer Unfinished/future space
Covered front porch Covered rear porch Grilling porch/outdoor kitchen
Rear garage Rear-entry garage

Need Some Quick Tips Or Advice?

We want to help you design the house of your dreams as best as we can. If you can't find the answers you're looking for here, get in touch with our licensed architect or a designer!