Southern Colonial House Plans - 3 Bed, 3 Bath, 3023 Sq Ft | Plan 7-241 | Monster House Plans

New plans now available on

dreambook-head-logo See all available plans

All plans are copyrighted by the individual designer.

Photographs may reflect custom changes that were not included in the original design.

3 Bedroom, 3 Bath Southern Colonial House Plan #7-241

Plan Purchase Options

Price: $0

Please uncheck first "Purchase MML without any plan package" under MONSTER MATERIAL LIST

Monster Material List
Optional Add-Ons
guaranted-label.png

Best Price Guarantee

*Payment Plans Now
Available Through

img See if you qualify

Floor Plans

What's included?
  • Main Floor

    Reverse

    Clicking the Reverse button does not mean you are ordering your plan reversed. It is for visualization purposes only. You may reverse the plan by ordering under “Optional Add-ons”.

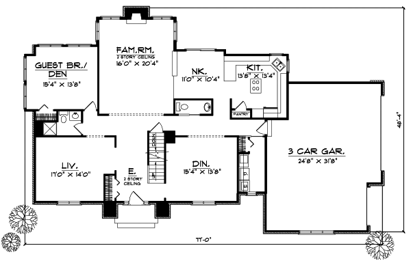
    Main Floor Plan: 7-241
  • Upper/Second Floor

    Reverse

    Clicking the Reverse button does not mean you are ordering your plan reversed. It is for visualization purposes only. You may reverse the plan by ordering under “Optional Add-ons”.

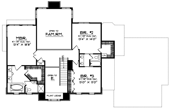
    Upper/Second Floor Plan: 7-241

Rear/Alternate Elevations

  • Rear Elevation

    Reverse

    Clicking the Reverse button does not mean you are ordering your plan reversed. It is for visualization purposes only. You may reverse the plan by ordering under “Optional Add-ons”.

    Rear Elevation Plan: 7-241

House Plan Highlights

A striking brick veneer adorns this handsome traditional home where open flowing spaces create a welcoming environment. A second-story Palladian window brightens the entry which opens to either a formal living or dining room perfect for entertaining. The family room features a fireplace framed by windows that allow plenty of natural light in. Plentiful natural light is also a feature in the guest bedroomden which is close to a half bath. The kitchen features a handy serving bar and spacious pantry and opens to the nook. Upstairs a balcony overlook separates the lavish master suite with a private bath and spacious closet from two generous family bedrooms that share a bathroom.

This floor plan is found in our Southern Colonial house plans section

Full Specs and Features

icon Total Living Area

  • Main floor: 1873
  • Upper floor: 1150
  • Total Finished Sq. Ft.: 3023

icon Beds/Baths

  • Bedrooms: 3
  • Full Baths: 3

icon Garage

  • Garage: 780
  • Garage Stalls: 3

icon Levels

  • 2 stories

Dimension

  • Width: 77' 0"
  • Depth: 48' 4"
  • Height: 31' 0"

Roof slope

  • 8:12 (primary)
  • 10:12 (secondary)

Walls (exterior)

  • 2"x4"

Ceiling heights

  • 9' (Main)
    9' (Upper)

Foundation Options

  • Basement Standard With Plan
  • Crawlspace $415
  • Slab $415

How Much Will It Cost To Build?

Wondering what it will actually cost to bring this home to life? Get an instant, customized estimate based on your chosen plan and location.

GET MY COST TO BUILD ESTIMATE

Modify This Plan

"Need Content here about modifying your plan"

Customize This Plan

House Plan Features

Suited for corner lots Suited for a back view
Main floor Master Teen suite/Jack & Jill bath
Walk-in pantry Eating bar
Great room Main Floor laundry Open concept floor plan Mud room No formal living/dining
Covered rear porch
Oversized garage (3+) Side-entry garage

Reviews

How Much Will It Cost To Build?

Wondering what it will actually cost to bring this home to life? Get an instant, customized estimate based on your chosen plan and location.

GET MY COST TO BUILD ESTIMATE

Modify This Plan

Need changes to the layout or features? Our team can modify any plan to match your vision.

Customize This Plan

House Plan Features

Suited for corner lots Suited for a back view
Main floor Master Teen suite/Jack & Jill bath
Walk-in pantry Eating bar
Great room Main Floor laundry Open concept floor plan Mud room No formal living/dining
Covered rear porch
Oversized garage (3+) Side-entry garage

Need Some Quick Tips Or Advice?

We want to help you design the house of your dreams as best as we can. If you can't find the answers you're looking for here, get in touch with our licensed architect or a designer!