Southern Colonial House Plan - 4 Bedrooms, 2 Bath, 3622 Sq Ft Plan 7-1122

New plans now available on

dreambook-head-logo See all available plans

All plans are copyrighted by the individual designer.

Photographs may reflect custom changes that were not included in the original design.

Design Comments

Entry/Grt Rm 2-Story, Master Bdrm 10' Step

4 Bedroom, 2 Bath Southern Colonial House Plan #7-1122

Plan Purchase Options

Price: $0

Please uncheck first "Purchase MML without any plan package" under MONSTER MATERIAL LIST

Monster Material List
Optional Add-Ons
guaranted-label.png

Best Price Guarantee

*Payment Plans Now
Available Through

img See if you qualify

Floor Plans

What's included?
  • Main Floor

    Reverse

    Clicking the Reverse button does not mean you are ordering your plan reversed. It is for visualization purposes only. You may reverse the plan by ordering under “Optional Add-ons”.

    Main Floor Plan: 7-1122
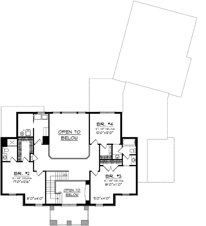
  • Upper/Second Floor

    Reverse

    Clicking the Reverse button does not mean you are ordering your plan reversed. It is for visualization purposes only. You may reverse the plan by ordering under “Optional Add-ons”.

    Upper/Second Floor Plan: 7-1122

Rear/Alternate Elevations

  • Rear Elevation

    Reverse

    Clicking the Reverse button does not mean you are ordering your plan reversed. It is for visualization purposes only. You may reverse the plan by ordering under “Optional Add-ons”.

    Rear Elevation Plan: 7-1122

House Plan Highlights

This two-story home is reminiscent of an old southern plantation home with modern updates that are demanded from buyers. A two-story entry draws you into the home where directly ahead the great room is defined by gracious columns. Here youll also find a two-story entry a fireplace flanked by bookshelves and a direct line of site into the kitchen dining area. The main floor master suite is located to the left of the entry and includes a step ceiling in the bedroom and a spacious walk-in closet that has direct access to the laundry area. Upstairs youll find beautiful views into the great room below as well as three additional bedrooms each with access to a private bath. A three-stall garage loads from the back of the home to complete this design.

This floor plan is found in our Southern Colonial house plans section

Full Specs and Features

icon Total Living Area

  • Main floor: 2319
  • Upper floor: 1303
  • Porches: 300
  • Total Finished Sq. Ft.: 3622

icon Beds/Baths

  • Bedrooms: 4
  • Full Baths: 2
  • Half Baths: 1

icon Garage

  • Garage: 860
  • Garage Stalls: 3

icon Levels

  • 2 stories

Dimension

  • Width: 77' 8"
  • Depth: 88' 9"
  • Height: 34' 5"

Roof slope

  • 10:12 (primary)
  • 8:12 (secondary)

Walls (exterior)

  • 2"x6"

Ceiling heights

  • 10' (Main)

Foundation Options

  • Basement Standard With Plan
  • Crawlspace $415
  • Slab $415

How Much Will It Cost To Build?

Wondering what it will actually cost to bring this home to life? Get an instant, customized estimate based on your chosen plan and location.

GET MY COST TO BUILD ESTIMATE

Modify This Plan

"Need Content here about modifying your plan"

Customize This Plan

House Plan Features

Suited for a back view Suited for a down-sloping lot
Split bedrooms
Walk-in pantry Butler's pantry Eating bar Nook / breakfast
Hobby / rec-room Great room Formal dining room Formal living room Den / office / computer
Covered front porch Covered rear porch Screened porch/sunroom
Vaulted/Volume/Dramatic ceilings
Oversized garage (3+)

Reviews

How Much Will It Cost To Build?

Wondering what it will actually cost to bring this home to life? Get an instant, customized estimate based on your chosen plan and location.

GET MY COST TO BUILD ESTIMATE

Modify This Plan

Need changes to the layout or features? Our team can modify any plan to match your vision.

Customize This Plan

House Plan Features

Suited for a back view Suited for a down-sloping lot
Split bedrooms
Walk-in pantry Butler's pantry Eating bar Nook / breakfast
Hobby / rec-room Great room Formal dining room Formal living room Den / office / computer
Covered front porch Covered rear porch Screened porch/sunroom
Vaulted/Volume/Dramatic ceilings
Oversized garage (3+)

Need Some Quick Tips Or Advice?

We want to help you design the house of your dreams as best as we can. If you can't find the answers you're looking for here, get in touch with our licensed architect or a designer!