Southern House Plan - 3 Bedrooms, 2 Bath, 1250 Sq Ft Plan 12-834

New plans now available on

dreambook-head-logo See all available plans
SHARE ON

All plans are copyrighted by the individual designer.

Photographs may reflect custom changes that were not included in the original design.

3 Bedroom, 2 Bath Southern House Plan #12-834

Plan Purchase Options

Price: $0

Please uncheck first "Purchase MML without any plan package" under MONSTER MATERIAL LIST

Monster Material List
Optional Add-Ons
guaranted-label.png

Best Price Guarantee

*Payment Plans Now
Available Through

img See if you qualify

Floor Plans

What's included?
  • Main Floor

    Reverse

    Clicking the Reverse button does not mean you are ordering your plan reversed. It is for visualization purposes only. You may reverse the plan by ordering under “Optional Add-ons”.

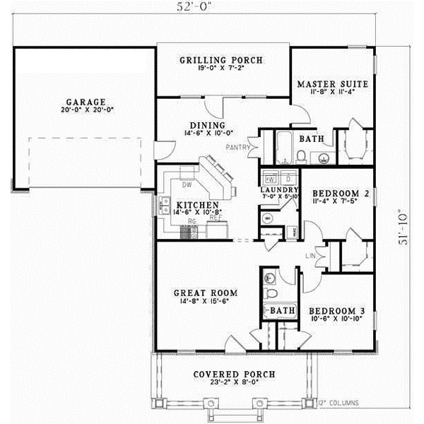
    Main Floor Plan: 12-834

House Plan Highlights

This lovely home has excellent street appeal. Relax on the comfortable covered porch and greet passersby. From there, entry into this home takes you directly into the spacious great room, perfect for entertaining. An angled bar with seating separates this well-equipped kitchen from the adjacent dining room. A large rear-grilling porch is also available for cookouts. Two secondary bedrooms occupy the front of this home while your private master suite is nestled peacefully in the back of this design.

This floor plan is found in our Southern house plans section

Full Specs and Features

icon Total Living Area

  • Main floor: 1250
  • Porches: 322
  • Total Finished Sq. Ft.: 1250

icon Beds/Baths

  • Bedrooms: 3
  • Full Baths: 2

icon Garage

  • Garage: 402
  • Garage Stalls: 2

icon Levels

  • 1 story

Dimension

  • Width: 52' 0"
  • Depth: 51' 10"
  • Height: 17' 9"

Roof slope

  • 6:12 (primary)

Walls (exterior)

  • 2"x4"

Ceiling heights

  • 9' (Main)

Foundation Options

  • Basement $299
  • Daylight basement $299
  • Crawlspace Standard With Plan
  • Slab Standard With Plan

How Much Will It Cost To Build?

Wondering what it will actually cost to bring this home to life? Get an instant, customized estimate based on your chosen plan and location.

GET MY COST TO BUILD ESTIMATE

Modify This Plan

"Need Content here about modifying your plan"

Customize This Plan

House Plan Features

Suited for a back view
Eating bar
Great room No formal living/dining
Covered front porch Covered rear porch Grilling porch/outdoor kitchen

Reviews

How Much Will It Cost To Build?

Wondering what it will actually cost to bring this home to life? Get an instant, customized estimate based on your chosen plan and location.

GET MY COST TO BUILD ESTIMATE

Modify This Plan

Need changes to the layout or features? Our team can modify any plan to match your vision.

Customize This Plan

House Plan Features

Suited for a back view
Eating bar
Great room No formal living/dining
Covered front porch Covered rear porch Grilling porch/outdoor kitchen

Need Some Quick Tips Or Advice?

We want to help you design the house of your dreams as best as we can. If you can't find the answers you're looking for here, get in touch with our licensed architect or a designer!