Southern House Plans - 3 Bed, 2 Bath, 1496 Sq Ft | Plan 4-122 | Monster House Plans

New plans now available on

dreambook-head-logo See all available plans
SHARE ON

All plans are copyrighted by the individual designer.

Photographs may reflect custom changes that were not included in the original design.

3 Bedroom, 2 Bath Southern House Plan #4-122

Plan Purchase Options

Price: $0

Please uncheck first "Purchase MML without any plan package" under MONSTER MATERIAL LIST

Optional Add-Ons
guaranted-label.png

Best Price Guarantee

*Payment Plans Now
Available Through

img See if you qualify

Floor Plans

What's included?
  • Main Floor

    Reverse

    Clicking the Reverse button does not mean you are ordering your plan reversed. It is for visualization purposes only. You may reverse the plan by ordering under “Optional Add-ons”.

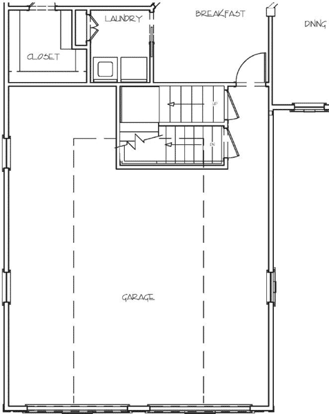
    Main Floor Plan: 4-122
  • Plan Options

    Reverse

    Clicking the Reverse button does not mean you are ordering your plan reversed. It is for visualization purposes only. You may reverse the plan by ordering under “Optional Add-ons”.

    Southern Style House Plans Plan: 4-122

Rear/Alternate Elevations

  • Rear Elevation

    Reverse

    Clicking the Reverse button does not mean you are ordering your plan reversed. It is for visualization purposes only. You may reverse the plan by ordering under “Optional Add-ons”.

    Rear Elevation Plan: 4-122

House Plan Highlights

This charming 1,496 sq. ft. country cottage features spacious open rooms and an easy flow from the welcoming stone front porch to the breezy screened porch off the family room and master suite. Perfect for entertaining, the well-appointed kitchen serves a breakfast room as well as a spacious dining room. The family room features a cozy corner fireplace. Isolated from the secondary bedrooms, the master suite is an ownerпїЅs retreat with a sitting area, large walk-in closet and private bath with separate tub and shower. The secondary bedrooms share a hall bath. A laundry room is conveniently located off the breakfast room. Garage access to a bonus room and a handy workshop complete this delightful design.

This floor plan is found in our Southern house plans section

Full Specs and Features

icon Total Living Area

  • Main floor: 1496
  • Bonus: 301
  • Porches: 386
  • Total Finished Sq. Ft.: 1496

icon Beds/Baths

  • Bedrooms: 3
  • Full Baths: 2

icon Garage

  • Garage: 647
  • Garage Stalls: 2

icon Levels

  • 1 story

Dimension

  • Width: 55' 0"
  • Depth: 58' 0"
  • Height: 24' 0"

Roof slope

  • 8:12 (primary)
  • 10:12 (secondary)

Walls (exterior)

  • 2"x4"

Ceiling heights

  • 8' (Main)

Exterior Finish

  • Siding

Roof Framing

  • Stick Frame

Foundation Options

  • Basement $350
  • Crawlspace $350
  • Slab Standard With Plan

How Much Will It Cost To Build?

Wondering what it will actually cost to bring this home to life? Get an instant, customized estimate based on your chosen plan and location.

GET MY COST TO BUILD ESTIMATE

Modify This Plan

"Need Content here about modifying your plan"

Customize This Plan

House Plan Features

Suited for a back view
Split bedrooms Master sitting area/Nursery
Eating bar Nook / breakfast
Bonus room Family room Open concept floor plan Formal dining room
Covered front porch Covered rear porch Screened porch/sunroom
Vaulted/Volume/Dramatic ceilings
Workshop

Reviews

How Much Will It Cost To Build?

Wondering what it will actually cost to bring this home to life? Get an instant, customized estimate based on your chosen plan and location.

GET MY COST TO BUILD ESTIMATE

Modify This Plan

Need changes to the layout or features? Our team can modify any plan to match your vision.

Customize This Plan

House Plan Features

Suited for a back view
Split bedrooms Master sitting area/Nursery
Eating bar Nook / breakfast
Bonus room Family room Open concept floor plan Formal dining room
Covered front porch Covered rear porch Screened porch/sunroom
Vaulted/Volume/Dramatic ceilings
Workshop

Need Some Quick Tips Or Advice?

We want to help you design the house of your dreams as best as we can. If you can't find the answers you're looking for here, get in touch with our licensed architect or a designer!