Southern House Plans - 3 Bed, 2 Bath, 1716 Sq Ft | Plan 49-130 | Monster House Plans

New plans now available on

dreambook-head-logo See all available plans
SHARE ON

All plans are copyrighted by the individual designer.

Photographs may reflect custom changes that were not included in the original design.

3 Bedroom, 2 Bath Southern House Plan #49-130

Plan Purchase Options

Price: $0

Please uncheck first "Purchase MML without any plan package" under MONSTER MATERIAL LIST

Monster Material List
Optional Add-Ons
guaranted-label.png

Best Price Guarantee

*Payment Plans Now
Available Through

img See if you qualify

Floor Plans

What's included?
  • Main Floor

    Reverse

    Clicking the Reverse button does not mean you are ordering your plan reversed. It is for visualization purposes only. You may reverse the plan by ordering under “Optional Add-ons”.

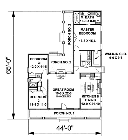
    Main Floor Plan: 49-130

Rear/Alternate Elevations

  • Rear Elevation

    Reverse

    Clicking the Reverse button does not mean you are ordering your plan reversed. It is for visualization purposes only. You may reverse the plan by ordering under “Optional Add-ons”.

    Rear Elevation Plan: 49-130

House Plan Highlights

The porches are just the beginning of this beauty! This plan is lovenly laid out with split bedroom and the Master Suite is like an oasis. Enter the extra large Great Room it's a beauty complete with a gas fireplace and 10' ceilings. A large arched opening leads you into the heart of the home. They say the heart of the home is the kitchen and this unique KitchenBreakfast Area will not disappoint. When I say fully loaded I am NOT exaggerating. The island cooktop is centrally located with a snack bar. There are plenty of cabinets a wall oven a built-in microwave and a large corner walk-in pantry. The Master Suite is sure to please with a large space and an enormous walk-in closet. The Master Bath is fully equipped with dual sinks a whirlpool tub linen closet and a customized corner shower. French doors lead from Master Bedroom onto an L-shaped porch. Bedrooms 2 and 3 are nice-sized with ample closet space. They share a full bath with a linen closet and plenty of storage. The big Laundry Room is centrally located between the Master Suite Kitchen and the Garage. The detached 2 Car Garage is optional with a whole lot of storage.

This floor plan is found in our Southern house plans section

Full Specs and Features

icon Total Living Area

  • Main floor: 1716
  • Porches: 624
  • Total Finished Sq. Ft.: 1716

icon Beds/Baths

  • Bedrooms: 3
  • Full Baths: 2

icon Garage

  • Garage: 480
  • Garage Stalls: 2

icon Levels

  • 1 story

Dimension

  • Width: 44' 0"
  • Depth: 65' 0"
  • Height: 24' 0"

Roof slope

  • 8:12 (primary)

Walls (exterior)

  • 2"x6"

Ceiling heights

  • 9' (Main)

Foundation Options

  • Basement $495
  • Walk-out basement $525
  • Crawlspace $425
  • Monolithic $350
  • Floating Standard With Plan

How Much Will It Cost To Build?

Wondering what it will actually cost to bring this home to life? Get an instant, customized estimate based on your chosen plan and location.

GET MY COST TO BUILD ESTIMATE

Modify This Plan

"Need Content here about modifying your plan"

Customize This Plan

House Plan Features

Suited for a narrow lot
Split bedrooms
Island Eating bar Nook / breakfast
Great room Open concept floor plan No formal living/dining
Covered front porch Covered rear porch
Photos Available

Reviews

How Much Will It Cost To Build?

Wondering what it will actually cost to bring this home to life? Get an instant, customized estimate based on your chosen plan and location.

GET MY COST TO BUILD ESTIMATE

Modify This Plan

Need changes to the layout or features? Our team can modify any plan to match your vision.

Customize This Plan

House Plan Features

Suited for a narrow lot
Split bedrooms
Island Eating bar Nook / breakfast
Great room Open concept floor plan No formal living/dining
Covered front porch Covered rear porch
Photos Available

Need Some Quick Tips Or Advice?

We want to help you design the house of your dreams as best as we can. If you can't find the answers you're looking for here, get in touch with our licensed architect or a designer!