Southern House Plan - 3 Bedrooms, 2 Bath, 1922 Sq Ft Plan 12-429

New plans now available on

dreambook-head-logo See all available plans
SHARE ON

All plans are copyrighted by the individual designer.

Photographs may reflect custom changes that were not included in the original design.

3 Bedroom, 2 Bath Southern House Plan #12-429

Plan Purchase Options

Price: $0

Please uncheck first "Purchase MML without any plan package" under MONSTER MATERIAL LIST

Monster Material List
Optional Add-Ons
guaranted-label.png

Best Price Guarantee

*Payment Plans Now
Available Through

img See if you qualify

Floor Plans

What's included?
  • Main Floor

    Reverse

    Clicking the Reverse button does not mean you are ordering your plan reversed. It is for visualization purposes only. You may reverse the plan by ordering under “Optional Add-ons”.

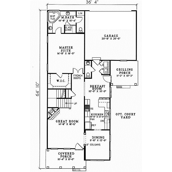
    Main Floor Plan: 12-429
  • Upper/Second Floor

    Reverse

    Clicking the Reverse button does not mean you are ordering your plan reversed. It is for visualization purposes only. You may reverse the plan by ordering under “Optional Add-ons”.

    Upper/Second Floor Plan: 12-429

House Plan Highlights

History repeats itself in this beautiful design. This traditional neighborhood design is perfect for a narrow lot and is packed with amenities. A covered porch with a balcony above and grilling porch on the side is wonderful for afternoon relaxation. The Great room has a corner fireplace and opens to a column enhanced dining room. The kitchen is efficiently arranged and adjoins a roomy breakfast room. French doors lead you into the Master Bedroom Suite where privacy awaits. The master bathroom is loaded with a whirlpool tub, glass shower, and double lavatories. This split bedroom plan has a full bathroom and two additional bedrooms that both access the balcony. A computer desk is centrally located above the stairs.

This floor plan is found in our Southern house plans section

Full Specs and Features

icon Total Living Area

  • Main floor: 1298
  • Upper floor: 624
  • Porches: 353
  • Total Finished Sq. Ft.: 1922

icon Beds/Baths

  • Bedrooms: 3
  • Full Baths: 2
  • Half Baths: 1

icon Garage

  • Garage: 431
  • Garage Stalls: 2

icon Levels

  • 2 stories

Dimension

  • Width: 36' 4"
  • Depth: 64' 10"
  • Height: 29' 2"

Roof slope

  • 9:12 (primary)
  • 9:12 (secondary)

Walls (exterior)

  • 2"x4"

Ceiling heights

  • 9' (Main)
    8' (Upper)

Foundation Options

  • Basement $299
  • Daylight basement $299
  • Crawlspace Standard With Plan
  • Slab Standard With Plan

How Much Will It Cost To Build?

Wondering what it will actually cost to bring this home to life? Get an instant, customized estimate based on your chosen plan and location.

GET MY COST TO BUILD ESTIMATE

Modify This Plan

"Need Content here about modifying your plan"

Customize This Plan

House Plan Features

Suited for a narrow lot
Main floor Master Teen suite/Jack & Jill bath
Eating bar Nook / breakfast
Great room Main Floor laundry Loft / balcony Formal dining room
Covered front porch
Rear garage Rear-entry garage

Reviews

How Much Will It Cost To Build?

Wondering what it will actually cost to bring this home to life? Get an instant, customized estimate based on your chosen plan and location.

GET MY COST TO BUILD ESTIMATE

Modify This Plan

Need changes to the layout or features? Our team can modify any plan to match your vision.

Customize This Plan

House Plan Features

Suited for a narrow lot
Main floor Master Teen suite/Jack & Jill bath
Eating bar Nook / breakfast
Great room Main Floor laundry Loft / balcony Formal dining room
Covered front porch
Rear garage Rear-entry garage

Need Some Quick Tips Or Advice?

We want to help you design the house of your dreams as best as we can. If you can't find the answers you're looking for here, get in touch with our licensed architect or a designer!