Southern House Plans - 3 Bed, 3 Bath, 2323 Sq Ft | Plan 12-242 | Monster House Plans

New plans now available on

dreambook-head-logo See all available plans
SHARE ON

All plans are copyrighted by the individual designer.

Photographs may reflect custom changes that were not included in the original design.

3 Bedroom, 3 Bath Southern House Plan #12-242

Plan Purchase Options

Price: $0

Please uncheck first "Purchase MML without any plan package" under MONSTER MATERIAL LIST

Monster Material List
Optional Add-Ons
guaranted-label.png

Best Price Guarantee

*Payment Plans Now
Available Through

img See if you qualify

Floor Plans

What's included?
  • Main Floor

    Reverse

    Clicking the Reverse button does not mean you are ordering your plan reversed. It is for visualization purposes only. You may reverse the plan by ordering under “Optional Add-ons”.

    Main Floor Plan: 12-242
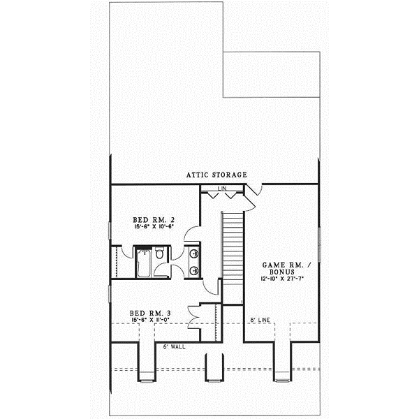
  • Upper/Second Floor

    Reverse

    Clicking the Reverse button does not mean you are ordering your plan reversed. It is for visualization purposes only. You may reverse the plan by ordering under “Optional Add-ons”.

    Upper/Second Floor Plan: 12-242

Rear/Alternate Elevations

  • Rear Elevation

    Reverse

    Clicking the Reverse button does not mean you are ordering your plan reversed. It is for visualization purposes only. You may reverse the plan by ordering under “Optional Add-ons”.

    Rear Elevation Plan: 12-242

House Plan Highlights

This home is full of all the amenities of true southern style. Lazy summer afternoons slip by as you sit and visit with friends and family on the traditional eight-foot covered entry porch. A formal foyer with eight-inch wood columns lead you through to an elegant dining area. A master suite will pamper you as you enjoy the luxury of a corner whirlpool tub with privacy glass block windows, large walk-in closet, corner glass shower and double 'his and hers' vanities with linen cabinet. The rear grilling porch with atrium doors leads to the great room - perfect for entertaining any time of year. The upper floor creates a wonderful area for kids of all ages with two spacious bedrooms with walk-through bath and a large game room.

This floor plan is found in our Southern house plans section

Full Specs and Features

icon Total Living Area

  • Main floor: 1713
  • Upper floor: 610
  • Bonus: 384
  • Porches: 432
  • Total Finished Sq. Ft.: 2323

icon Beds/Baths

  • Bedrooms: 3
  • Full Baths: 3

icon Garage

  • Garage: 405
  • Garage Stalls: 2

icon Levels

  • 2 stories

Dimension

  • Width: 37' 0"
  • Depth: 73' 0"
  • Height: 28' 2"

Roof slope

  • 8:12 (primary)
  • 4:12 (secondary)

Walls (exterior)

  • 2"x4"

Ceiling heights

  • 9' (Main)
    8' (Upper)

Foundation Options

  • Basement $299
  • Daylight basement $399
  • Crawlspace Standard With Plan
  • Slab Standard With Plan

How Much Will It Cost To Build?

Wondering what it will actually cost to bring this home to life? Get an instant, customized estimate based on your chosen plan and location.

GET MY COST TO BUILD ESTIMATE

Modify This Plan

"Need Content here about modifying your plan"

Customize This Plan

House Plan Features

Suited for a narrow lot
Main floor Master Teen suite/Jack & Jill bath
Eating bar Nook / breakfast
Bonus room Great room Main Floor laundry Formal dining room Den / office / computer
Covered front porch Covered rear porch Grilling porch/outdoor kitchen
Vaulted/Volume/Dramatic ceilings
Rear garage Rear-entry garage

Reviews

How Much Will It Cost To Build?

Wondering what it will actually cost to bring this home to life? Get an instant, customized estimate based on your chosen plan and location.

GET MY COST TO BUILD ESTIMATE

Modify This Plan

Need changes to the layout or features? Our team can modify any plan to match your vision.

Customize This Plan

House Plan Features

Suited for a narrow lot
Main floor Master Teen suite/Jack & Jill bath
Eating bar Nook / breakfast
Bonus room Great room Main Floor laundry Formal dining room Den / office / computer
Covered front porch Covered rear porch Grilling porch/outdoor kitchen
Vaulted/Volume/Dramatic ceilings
Rear garage Rear-entry garage

Need Some Quick Tips Or Advice?

We want to help you design the house of your dreams as best as we can. If you can't find the answers you're looking for here, get in touch with our licensed architect or a designer!