Southern House Plans - 4 Bed, 3 Bath, 3020 Sq Ft | Plan 7-816 | Monster House Plans

New plans now available on

dreambook-head-logo See all available plans
SHARE ON

All plans are copyrighted by the individual designer.

Photographs may reflect custom changes that were not included in the original design.

4 Bedroom, 3 Bath Southern House Plan #7-816

Plan Purchase Options

Price: $0

Please uncheck first "Purchase MML without any plan package" under MONSTER MATERIAL LIST

Monster Material List
Optional Add-Ons
guaranted-label.png

Best Price Guarantee

*Payment Plans Now
Available Through

img See if you qualify

Floor Plans

What's included?
  • Main Floor

    Reverse

    Clicking the Reverse button does not mean you are ordering your plan reversed. It is for visualization purposes only. You may reverse the plan by ordering under “Optional Add-ons”.

    Main Floor Plan: 7-816
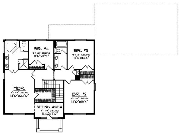
  • Upper/Second Floor

    Reverse

    Clicking the Reverse button does not mean you are ordering your plan reversed. It is for visualization purposes only. You may reverse the plan by ordering under “Optional Add-ons”.

    Upper/Second Floor Plan: 7-816

Rear/Alternate Elevations

  • Rear Elevation

    Reverse

    Clicking the Reverse button does not mean you are ordering your plan reversed. It is for visualization purposes only. You may reverse the plan by ordering under “Optional Add-ons”.

    Rear Elevation Plan: 7-816

House Plan Highlights

Graceful columns a balcony and arched windows are just some of the details that give this home its Southern charm. Inside youll find a very traditional floor plan with a den to your left and a formal dining room to your right as you enter. To the back of the main level you'll love the wall of windows giving you an impressive view of the back yard as you enter the great room. The adjacent kitchen features a breakfast bar that overlooks the great room and nook to create a comfortable living area. Upstairs youll find the master suite complete with corner jacuzzi tub spacious walk-in closet and a sitting area that opens to the balcony on the front of the home. Three additional bedrooms and a full bath complete the upstairs. Finally a three-stall garage flanked with graceful columns provides ample storage space.Important Note This home may NOT be built within a 25 mile radius of Cedar Rapids Iowa.

This floor plan is found in our Southern house plans section

Full Specs and Features

icon Total Living Area

  • Main floor: 1619
  • Upper floor: 1401
  • Total Finished Sq. Ft.: 3020

icon Beds/Baths

  • Bedrooms: 4
  • Full Baths: 3

icon Garage

  • Garage: 885
  • Garage Stalls: 3

icon Levels

  • 2 stories

Dimension

  • Width: 80' 0"
  • Depth: 53' 4"
  • Height: 30' 1"

Roof slope

  • 6:12 (primary)
  • 6:12 (secondary)

Walls (exterior)

  • 2"x6"

Ceiling heights

  • 10' (Main)
    9' (Upper)

Foundation Options

  • Basement Standard With Plan
  • Crawlspace $415
  • Slab $415

How Much Will It Cost To Build?

Wondering what it will actually cost to bring this home to life? Get an instant, customized estimate based on your chosen plan and location.

GET MY COST TO BUILD ESTIMATE

Modify This Plan

"Need Content here about modifying your plan"

Customize This Plan

House Plan Features

Suited for corner lots Suited for a back view Suited for a side-sloping lot
Main floor Master
Island Butler's pantry Nook / breakfast
Great room Main Floor laundry Open concept floor plan Formal dining room Den / office / computer
Covered rear porch Screened porch/sunroom
Vaulted/Volume/Dramatic ceilings Photos Available
Workshop Oversized garage (3+) Side-entry garage

Reviews

How Much Will It Cost To Build?

Wondering what it will actually cost to bring this home to life? Get an instant, customized estimate based on your chosen plan and location.

GET MY COST TO BUILD ESTIMATE

Modify This Plan

Need changes to the layout or features? Our team can modify any plan to match your vision.

Customize This Plan

House Plan Features

Suited for corner lots Suited for a back view Suited for a side-sloping lot
Main floor Master
Island Butler's pantry Nook / breakfast
Great room Main Floor laundry Open concept floor plan Formal dining room Den / office / computer
Covered rear porch Screened porch/sunroom
Vaulted/Volume/Dramatic ceilings Photos Available
Workshop Oversized garage (3+) Side-entry garage

Need Some Quick Tips Or Advice?

We want to help you design the house of your dreams as best as we can. If you can't find the answers you're looking for here, get in touch with our licensed architect or a designer!