Southern House Plans - 4 Bed, 4 Bath, 3059 Sq Ft | Plan 12-184 | Monster House Plans

New plans now available on

dreambook-head-logo See all available plans
  • MEMORIAL DAY SALE! - 15% OFF Most Plans

    Some exceptions apply. Prices as marked.

SHARE ON

All plans are copyrighted by the individual designer.

Photographs may reflect custom changes that were not included in the original design.

4 Bedroom, 4 Bath Southern House Plan #12-184

Plan Purchase Options

Price: $0

Please uncheck first "Purchase MML without any plan package" under MONSTER MATERIAL LIST

Monster Material List
Optional Add-Ons
guaranted-label.png

Best Price Guarantee

*Payment Plans Now
Available Through

img See if you qualify

Floor Plans

What's included?
  • Main Floor

    Reverse

    Clicking the Reverse button does not mean you are ordering your plan reversed. It is for visualization purposes only. You may reverse the plan by ordering under “Optional Add-ons”.

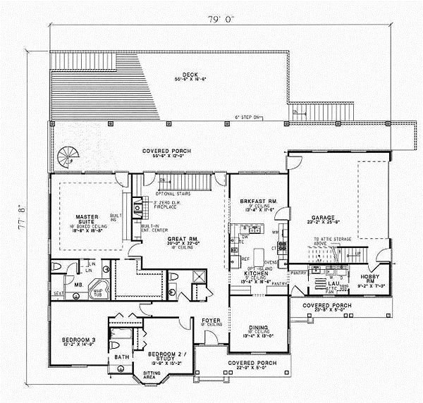
    Main Floor Plan: 12-184
  • Lower Floor

    Reverse

    Clicking the Reverse button does not mean you are ordering your plan reversed. It is for visualization purposes only. You may reverse the plan by ordering under “Optional Add-ons”.

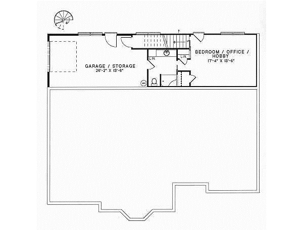
    Lower Floor Plan: 12-184

Rear/Alternate Elevations

  • Rear Elevation

    Reverse

    Clicking the Reverse button does not mean you are ordering your plan reversed. It is for visualization purposes only. You may reverse the plan by ordering under “Optional Add-ons”.

    Rear Elevation Plan: 12-184

House Plan Highlights

A traditional home with two front porches and boxed columns-perfect for lazy afternoons. This split bedroom plan offers mom and dad just enough privacy. The master suite is complete with built-ins, boxed ceilings and access to the rear covered porch for romantic evenings. Entertaining is easy in your spacious great room with soothing fireplace. A hobby room off the garage is useful for the kids and adults. Downstairs, you'll find an optional bedroom with a great view of the lake The massive deck and covered porch give this plan a five star rating.

This floor plan is found in our Southern house plans section

Full Specs and Features

icon Total Living Area

  • Main floor: 2650
  • Basement: 2650
  • Porches: 1095
  • Total Finished Sq. Ft.: 3059

icon Beds/Baths

  • Bedrooms: 4
  • Full Baths: 4

icon Garage

  • Garage: 953
  • Garage Stalls: 3

icon Levels

  • 1 story

Dimension

  • Width: 79' 0"
  • Depth: 77' 8"
  • Height: 29' 5"

Roof slope

  • 8:12 (primary)

Walls (exterior)

  • 2"x4"

Ceiling heights

  • 9' (Main)

Foundation Options

  • Basement $299
  • Daylight basement $399
  • Crawlspace Standard With Plan
  • Slab Standard With Plan

How Much Will It Cost To Build?

Wondering what it will actually cost to bring this home to life? Get an instant, customized estimate based on your chosen plan and location.

GET MY COST TO BUILD ESTIMATE

Modify This Plan

"Need Content here about modifying your plan"

Customize This Plan

House Plan Features

Suited for corner lots Suited for a back view Suited for a down-sloping lot
Teen suite/Jack & Jill bath
Island Nook / breakfast
Hobby / rec-room Great room Formal dining room Den / office / computer
Covered front porch Covered rear porch
Vaulted/Volume/Dramatic ceilings Photos Available
Side-entry garage

Reviews

How Much Will It Cost To Build?

Wondering what it will actually cost to bring this home to life? Get an instant, customized estimate based on your chosen plan and location.

GET MY COST TO BUILD ESTIMATE

Modify This Plan

Need changes to the layout or features? Our team can modify any plan to match your vision.

Customize This Plan

House Plan Features

Suited for corner lots Suited for a back view Suited for a down-sloping lot
Teen suite/Jack & Jill bath
Island Nook / breakfast
Hobby / rec-room Great room Formal dining room Den / office / computer
Covered front porch Covered rear porch
Vaulted/Volume/Dramatic ceilings Photos Available
Side-entry garage

Need Some Quick Tips Or Advice?

We want to help you design the house of your dreams as best as we can. If you can't find the answers you're looking for here, get in touch with our licensed architect or a designer!