Southern House Plans - 4 Bed, 3 Bath, 3203 Sq Ft | Plan 12-201 | Monster House Plans

New plans now available on

dreambook-head-logo See all available plans
SHARE ON

All plans are copyrighted by the individual designer.

Photographs may reflect custom changes that were not included in the original design.

4 Bedroom, 3 Bath Southern House Plan #12-201

Plan Purchase Options

Price: $0

Please uncheck first "Purchase MML without any plan package" under MONSTER MATERIAL LIST

Monster Material List
Optional Add-Ons
guaranted-label.png

Best Price Guarantee

*Payment Plans Now
Available Through

img See if you qualify

Floor Plans

What's included?
  • Main Floor

    Reverse

    Clicking the Reverse button does not mean you are ordering your plan reversed. It is for visualization purposes only. You may reverse the plan by ordering under “Optional Add-ons”.

    Main Floor Plan: 12-201
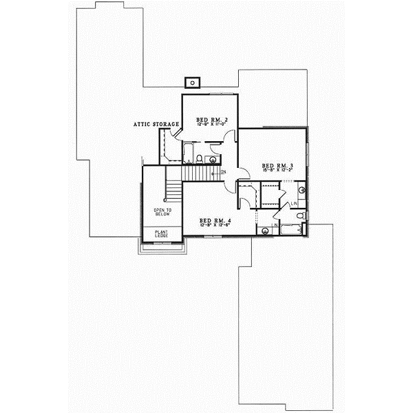
  • Upper/Second Floor

    Reverse

    Clicking the Reverse button does not mean you are ordering your plan reversed. It is for visualization purposes only. You may reverse the plan by ordering under “Optional Add-ons”.

    Upper/Second Floor Plan: 12-201

Rear/Alternate Elevations

  • Rear Elevation

    Reverse

    Clicking the Reverse button does not mean you are ordering your plan reversed. It is for visualization purposes only. You may reverse the plan by ordering under “Optional Add-ons”.

    Rear Elevation Plan: 12-201

House Plan Highlights

This home includes numerous amenities that are certain to make every day a delight. Noteworthy features include a convenient computer center off the kitchen, an inviting hearth room, and unique kid's nook with hanging and storage space available. When needing a few moments of solitude, your master suite and luxurious bath will become the chosen place of solitude. Upstairs you'll find plenty of space for the children to entertain themselves for hours.

This floor plan is found in our Southern house plans section

Full Specs and Features

icon Total Living Area

  • Main floor: 2328
  • Upper floor: 875
  • Porches: 113
  • Total Finished Sq. Ft.: 3203

icon Beds/Baths

  • Bedrooms: 4
  • Full Baths: 3
  • Half Baths: 1

icon Garage

  • Garage: 708
  • Garage Stalls: 3

icon Levels

  • 2 stories

Dimension

  • Width: 60' 0"
  • Depth: 96' 6"
  • Height: 32' 5"

Roof slope

  • 10:12 (primary)

Walls (exterior)

  • 2"x4"

Ceiling heights

  • 10' (Main)
    9' (Upper)

Foundation Options

  • Basement $299
  • Daylight basement $399
  • Crawlspace Standard With Plan
  • Slab Standard With Plan

How Much Will It Cost To Build?

Wondering what it will actually cost to bring this home to life? Get an instant, customized estimate based on your chosen plan and location.

GET MY COST TO BUILD ESTIMATE

Modify This Plan

"Need Content here about modifying your plan"

Customize This Plan

House Plan Features

Suited for a back view
Main floor Master Teen suite/Jack & Jill bath
Island Butler's pantry Eating bar Nook / breakfast Hearth room
Great room Main Floor laundry Open concept floor plan Formal dining room Den / office / computer
Vaulted/Volume/Dramatic ceilings
Oversized garage (3+) Side-entry garage

Reviews

How Much Will It Cost To Build?

Wondering what it will actually cost to bring this home to life? Get an instant, customized estimate based on your chosen plan and location.

GET MY COST TO BUILD ESTIMATE

Modify This Plan

Need changes to the layout or features? Our team can modify any plan to match your vision.

Customize This Plan

House Plan Features

Suited for a back view
Main floor Master Teen suite/Jack & Jill bath
Island Butler's pantry Eating bar Nook / breakfast Hearth room
Great room Main Floor laundry Open concept floor plan Formal dining room Den / office / computer
Vaulted/Volume/Dramatic ceilings
Oversized garage (3+) Side-entry garage

Need Some Quick Tips Or Advice?

We want to help you design the house of your dreams as best as we can. If you can't find the answers you're looking for here, get in touch with our licensed architect or a designer!