Southern House Plan - 4 Bedrooms, 3 Bath, 3600 Sq Ft Plan 7-626

New plans now available on

dreambook-head-logo See all available plans
SHARE ON

All plans are copyrighted by the individual designer.

Photographs may reflect custom changes that were not included in the original design.

4 Bedroom, 3 Bath Southern House Plan #7-626

Plan Purchase Options

Price: $0

Please uncheck first "Purchase MML without any plan package" under MONSTER MATERIAL LIST

Monster Material List
Optional Add-Ons
guaranted-label.png

Best Price Guarantee

*Payment Plans Now
Available Through

img See if you qualify

Floor Plans

What's included?
  • Main Floor

    Reverse

    Clicking the Reverse button does not mean you are ordering your plan reversed. It is for visualization purposes only. You may reverse the plan by ordering under “Optional Add-ons”.

    Main Floor Plan: 7-626
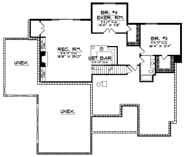
  • Lower Floor

    Reverse

    Clicking the Reverse button does not mean you are ordering your plan reversed. It is for visualization purposes only. You may reverse the plan by ordering under “Optional Add-ons”.

    Lower Floor Plan: 7-626

Rear/Alternate Elevations

  • Rear Elevation

    Reverse

    Clicking the Reverse button does not mean you are ordering your plan reversed. It is for visualization purposes only. You may reverse the plan by ordering under “Optional Add-ons”.

    Rear Elevation Plan: 7-626

House Plan Highlights

Shuttered windows graceful columns and shingle siding are just some of the details youll fall in love with on this ranch home. The kitchen features a breakfast bar that gives the family access to both the nook and the great room to create a living area thats comfortable and unique. The great room allows plenty of natural light into the home through a wall of windows while the fireplace keeps guests warm. The dining room is located in front of the great room and is set off by graceful columns that give the room definition. The master suite is tucked behind the garage and pampers with its spacious closet Jacuzzi tub and dual sinks. The second bedroom is located just off the entry on the other side of the home to allow for maximum privacy for mom and dad. Downstairs youll find two additional bedrooms each with a walk-in closet a wet bar and a spacious recreation room. Finally a three-stall split-load garage with plenty of storage makes this home appealing to a wide audience.

This floor plan is found in our Southern house plans section

Full Specs and Features

icon Total Living Area

  • Main floor: 2194
  • Lower Floor: 1406
  • Total Finished Sq. Ft.: 3600

icon Beds/Baths

  • Bedrooms: 4
  • Full Baths: 3

icon Garage

  • Garage: 938
  • Garage Stalls: 3

icon Levels

  • 1 story

Dimension

  • Width: 73' 0"
  • Depth: 61' 8"
  • Height: 27' 1"

Roof slope

  • 10:12 (primary)
  • 8:12 (secondary)

Walls (exterior)

  • 2"x6"

Ceiling heights

  • 9' (Main)

Foundation Options

  • Daylight basement Standard With Plan
  • Crawlspace $415
  • Slab $415

How Much Will It Cost To Build?

Wondering what it will actually cost to bring this home to life? Get an instant, customized estimate based on your chosen plan and location.

GET MY COST TO BUILD ESTIMATE

Modify This Plan

"Need Content here about modifying your plan"

Customize This Plan

House Plan Features

Suited for a back view Suited for a down-sloping lot
Teen suite/Jack & Jill bath
Island Walk-in pantry Eating bar
Family room Great room Media room Open concept floor plan No formal living/dining Den / office / computer
Covered rear porch
Vaulted/Volume/Dramatic ceilings
Oversized garage (3+) Side-entry garage

Reviews

How Much Will It Cost To Build?

Wondering what it will actually cost to bring this home to life? Get an instant, customized estimate based on your chosen plan and location.

GET MY COST TO BUILD ESTIMATE

Modify This Plan

Need changes to the layout or features? Our team can modify any plan to match your vision.

Customize This Plan

House Plan Features

Suited for a back view Suited for a down-sloping lot
Teen suite/Jack & Jill bath
Island Walk-in pantry Eating bar
Family room Great room Media room Open concept floor plan No formal living/dining Den / office / computer
Covered rear porch
Vaulted/Volume/Dramatic ceilings
Oversized garage (3+) Side-entry garage

Need Some Quick Tips Or Advice?

We want to help you design the house of your dreams as best as we can. If you can't find the answers you're looking for here, get in touch with our licensed architect or a designer!