Southern House Plans - 6 Bed, 4 Bath, 3794 Sq Ft | Plan 12-364 | Monster House Plans

New plans now available on

dreambook-head-logo See all available plans
SHARE ON

All plans are copyrighted by the individual designer.

Photographs may reflect custom changes that were not included in the original design.

6 Bedroom, 4 Bath Southern House Plan #12-364

Plan Purchase Options

Price: $0

Please uncheck first "Purchase MML without any plan package" under MONSTER MATERIAL LIST

Monster Material List
Optional Add-Ons
guaranted-label.png

Best Price Guarantee

*Payment Plans Now
Available Through

img See if you qualify

Floor Plans

What's included?
  • Main Floor

    Reverse

    Clicking the Reverse button does not mean you are ordering your plan reversed. It is for visualization purposes only. You may reverse the plan by ordering under “Optional Add-ons”.

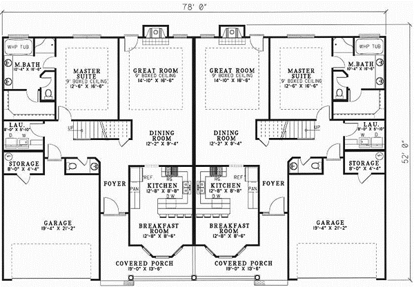
    Main Floor Plan: 12-364
  • Upper/Second Floor

    Reverse

    Clicking the Reverse button does not mean you are ordering your plan reversed. It is for visualization purposes only. You may reverse the plan by ordering under “Optional Add-ons”.

    Upper/Second Floor Plan: 12-364

House Plan Highlights

This southern traditional home is designed with a split bedroom plan. Visit with family and friends of the front porch as the children play in the front yard. Walking through the foyer, you'll notice the dining room, opening to the expansive great room. Preparing the family's dinner is simple with fluid access to the dining room and a handy breakfast room. Evenings can be spent in your master suite cuddled up reading a book or in the master bath soaking in the whirlpool bath. Upstairs provides children with privacy while the optional bonus room can function as an office.

This floor plan is found in our Southern house plans section

Full Specs and Features

icon Total Living Area

  • Main floor: 2598
  • Upper floor: 1196
  • Bonus: 145
  • Porches: 462
  • Total Finished Sq. Ft.: 3794

icon Beds/Baths

  • Bedrooms: 6
  • Full Baths: 4
  • Half Baths: 2

icon Garage

  • Garage: 818
  • Garage Stalls: 4

icon Levels

  • 2 stories

Dimension

  • Width: 78' 0"
  • Depth: 52' 0"
  • Height: 26' 4"

Roof slope

  • 10:12 (primary)
  • 4:12 (secondary)

Walls (exterior)

  • 2"x4"

Ceiling heights

  • 8' (Main)
    8' (Upper)

Foundation Options

  • Basement $299
  • Daylight basement $399
  • Crawlspace Standard With Plan
  • Slab Standard With Plan

How Much Will It Cost To Build?

Wondering what it will actually cost to bring this home to life? Get an instant, customized estimate based on your chosen plan and location.

GET MY COST TO BUILD ESTIMATE

Modify This Plan

"Need Content here about modifying your plan"

Customize This Plan

House Plan Features

Zero lot-line
Main floor Master
Eating bar Nook / breakfast
Bonus room Great room Main Floor laundry No formal living/dining Unfinished/future space
Covered front porch
Vaulted/Volume/Dramatic ceilings

Reviews

How Much Will It Cost To Build?

Wondering what it will actually cost to bring this home to life? Get an instant, customized estimate based on your chosen plan and location.

GET MY COST TO BUILD ESTIMATE

Modify This Plan

Need changes to the layout or features? Our team can modify any plan to match your vision.

Customize This Plan

House Plan Features

Zero lot-line
Main floor Master
Eating bar Nook / breakfast
Bonus room Great room Main Floor laundry No formal living/dining Unfinished/future space
Covered front porch
Vaulted/Volume/Dramatic ceilings

Need Some Quick Tips Or Advice?

We want to help you design the house of your dreams as best as we can. If you can't find the answers you're looking for here, get in touch with our licensed architect or a designer!