Southern House Plans - 4 Bed, 3 Bath, 3899 Sq Ft | Plan 7-607 | Monster House Plans

New plans now available on

dreambook-head-logo See all available plans
SHARE ON

All plans are copyrighted by the individual designer.

Photographs may reflect custom changes that were not included in the original design.

4 Bedroom, 3 Bath Southern House Plan #7-607

Plan Purchase Options

Price: $0

Please uncheck first "Purchase MML without any plan package" under MONSTER MATERIAL LIST

Monster Material List
Optional Add-Ons
guaranted-label.png

Best Price Guarantee

*Payment Plans Now
Available Through

img See if you qualify

Floor Plans

What's included?
  • Main Floor

    Reverse

    Clicking the Reverse button does not mean you are ordering your plan reversed. It is for visualization purposes only. You may reverse the plan by ordering under “Optional Add-ons”.

    Main Floor Plan: 7-607
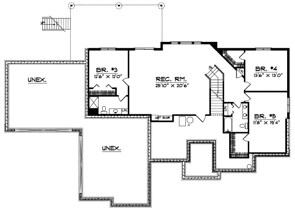
  • Lower Floor

    Reverse

    Clicking the Reverse button does not mean you are ordering your plan reversed. It is for visualization purposes only. You may reverse the plan by ordering under “Optional Add-ons”.

    Lower Floor Plan: 7-607

Rear/Alternate Elevations

  • Rear Elevation

    Reverse

    Clicking the Reverse button does not mean you are ordering your plan reversed. It is for visualization purposes only. You may reverse the plan by ordering under “Optional Add-ons”.

    Rear Elevation Plan: 7-607

House Plan Highlights

Graceful columns arched windows and a perfect blend of brick and stucco make this ranch home the perfect addition to every neighborhood. Youll be captivated by the expansive view out the back of the home offered by the great room directly ahead as you enter. Arched openings a tray ceiling and a fireplace flanked by built-ins makes the great room a central attraction for everyone. The adjacent kitchen and nook blend together to create an open floor plan with the great room thats perfect for entertaining. A spacious sunroom and deck are found just off the nook for enjoying the outside world. The large master suite features tray ceilings a large walk-in closet and a bathroom with Jacuzzi tub. Three additional bedrooms two full bathrooms and a large recreation room can be found downstairs making this the perfect home for entertaining large groups.

This floor plan is found in our Southern house plans section

Full Specs and Features

icon Total Living Area

  • Main floor: 2296
  • Lower Floor: 1603
  • Total Finished Sq. Ft.: 3899

icon Beds/Baths

  • Bedrooms: 4
  • Full Baths: 3
  • Half Baths: 1

icon Garage

  • Garage: 1149
  • Garage Stalls: 4

icon Levels

  • 1 story

Dimension

  • Width: 90' 8"
  • Depth: 64' 0"
  • Height: 25' 7"

Roof slope

  • 10:12 (primary)

Walls (exterior)

  • 2"x6"

Ceiling heights

  • 9' (Main)

Foundation Options

  • Daylight basement Standard With Plan
  • Crawlspace $415
  • Slab $415

How Much Will It Cost To Build?

Wondering what it will actually cost to bring this home to life? Get an instant, customized estimate based on your chosen plan and location.

GET MY COST TO BUILD ESTIMATE

Modify This Plan

"Need Content here about modifying your plan"

Customize This Plan

House Plan Features

Suited for corner lots Suited for a back view Suited for a down-sloping lot
Main floor Master Master sitting area/Nursery Teen suite/Jack & Jill bath
Island Walk-in pantry Eating bar Nook / breakfast Hearth room
Great room Main Floor laundry Open concept floor plan Formal dining room
Covered front porch Screened porch/sunroom
Circular / dual staircases Vaulted/Volume/Dramatic ceilings
Oversized garage (3+) Side-entry garage

Reviews

How Much Will It Cost To Build?

Wondering what it will actually cost to bring this home to life? Get an instant, customized estimate based on your chosen plan and location.

GET MY COST TO BUILD ESTIMATE

Modify This Plan

Need changes to the layout or features? Our team can modify any plan to match your vision.

Customize This Plan

House Plan Features

Suited for corner lots Suited for a back view Suited for a down-sloping lot
Main floor Master Master sitting area/Nursery Teen suite/Jack & Jill bath
Island Walk-in pantry Eating bar Nook / breakfast Hearth room
Great room Main Floor laundry Open concept floor plan Formal dining room
Covered front porch Screened porch/sunroom
Circular / dual staircases Vaulted/Volume/Dramatic ceilings
Oversized garage (3+) Side-entry garage

Need Some Quick Tips Or Advice?

We want to help you design the house of your dreams as best as we can. If you can't find the answers you're looking for here, get in touch with our licensed architect or a designer!