Southern House Plans - 3 Bed, 3 Bath, 3914 Sq Ft | Plan 12-205 | Monster House Plans

New plans now available on

dreambook-head-logo See all available plans
SHARE ON

All plans are copyrighted by the individual designer.

Photographs may reflect custom changes that were not included in the original design.

3 Bedroom, 3 Bath Southern House Plan #12-205

Plan Purchase Options

Price: $0

Please uncheck first "Purchase MML without any plan package" under MONSTER MATERIAL LIST

Monster Material List
Optional Add-Ons
guaranted-label.png

Best Price Guarantee

*Payment Plans Now
Available Through

img See if you qualify

Floor Plans

What's included?
  • Main Floor

    Reverse

    Clicking the Reverse button does not mean you are ordering your plan reversed. It is for visualization purposes only. You may reverse the plan by ordering under “Optional Add-ons”.

    Main Floor Plan: 12-205
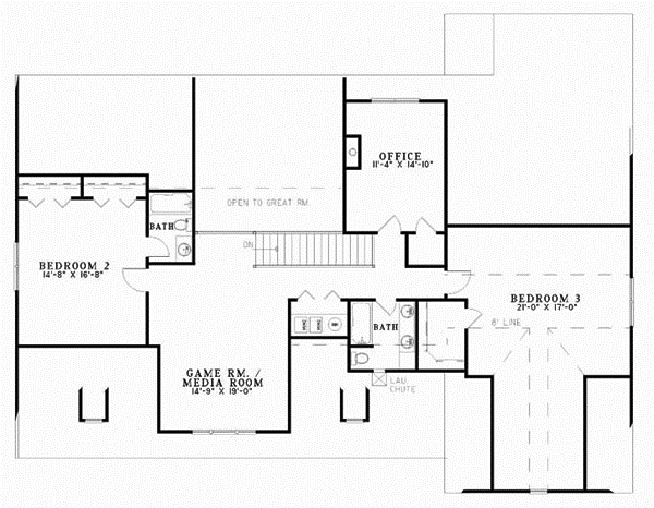
  • Upper/Second Floor

    Reverse

    Clicking the Reverse button does not mean you are ordering your plan reversed. It is for visualization purposes only. You may reverse the plan by ordering under “Optional Add-ons”.

    Upper/Second Floor Plan: 12-205

Rear/Alternate Elevations

  • Rear Elevation

    Reverse

    Clicking the Reverse button does not mean you are ordering your plan reversed. It is for visualization purposes only. You may reverse the plan by ordering under “Optional Add-ons”.

    Rear Elevation Plan: 12-205

House Plan Highlights

Visualize your family in this clever split bedroom home. Entering through the foyer, eight inch columns welcome you into the formal dining area. Enjoy family night in the great room with vaulted ceilings and a pass-through fireplace that allows everyone the enjoyment of relaxing by the fire from either the great room or hearth room. Serve the kids breakfast at the island bar that is open to the breakfast room. End each day with dinner on your rear covered porch. The children will be nestled upstairs with plenty of space of their own after playing together in the game room.

This floor plan is found in our Southern house plans section

Full Specs and Features

icon Total Living Area

  • Main floor: 2291
  • Upper floor: 1623
  • Porches: 457
  • Total Finished Sq. Ft.: 3914

icon Beds/Baths

  • Bedrooms: 3
  • Full Baths: 3
  • Half Baths: 1

icon Garage

  • Garage: 616
  • Garage Stalls: 3

icon Levels

  • 2 stories

Dimension

  • Width: 71' 0"
  • Depth: 55' 0"
  • Height: 26' 3"

Roof slope

  • 9:12 (primary)

Walls (exterior)

  • 2"x4"

Ceiling heights

  • 9' (Main)
    8' (Upper)

Foundation Options

  • Basement $299
  • Daylight basement $399
  • Crawlspace Standard With Plan
  • Slab Standard With Plan

How Much Will It Cost To Build?

Wondering what it will actually cost to bring this home to life? Get an instant, customized estimate based on your chosen plan and location.

GET MY COST TO BUILD ESTIMATE

Modify This Plan

"Need Content here about modifying your plan"

Customize This Plan

House Plan Features

Suited for corner lots
Main floor Master Teen suite/Jack & Jill bath
Island Eating bar Nook / breakfast
Bonus room Hobby / rec-room Great room Main Floor laundry Open concept floor plan Formal dining room Den / office / computer
Covered front porch Covered rear porch
Vaulted/Volume/Dramatic ceilings Photos Available
Oversized garage (3+) Side-entry garage

Reviews

How Much Will It Cost To Build?

Wondering what it will actually cost to bring this home to life? Get an instant, customized estimate based on your chosen plan and location.

GET MY COST TO BUILD ESTIMATE

Modify This Plan

Need changes to the layout or features? Our team can modify any plan to match your vision.

Customize This Plan

House Plan Features

Suited for corner lots
Main floor Master Teen suite/Jack & Jill bath
Island Eating bar Nook / breakfast
Bonus room Hobby / rec-room Great room Main Floor laundry Open concept floor plan Formal dining room Den / office / computer
Covered front porch Covered rear porch
Vaulted/Volume/Dramatic ceilings Photos Available
Oversized garage (3+) Side-entry garage

Need Some Quick Tips Or Advice?

We want to help you design the house of your dreams as best as we can. If you can't find the answers you're looking for here, get in touch with our licensed architect or a designer!