Sunbelt House Plans - 4 Bed, 3 Bath, 4863 Sq Ft | Plan 77-183 | Monster House Plans

New plans now available on

dreambook-head-logo See all available plans
SHARE ON

All plans are copyrighted by the individual designer.

Photographs may reflect custom changes that were not included in the original design.

4 Bedroom, 3 Bath Sunbelt House Plan #77-183

Plan Purchase Options

Price: $0

Please uncheck first "Purchase MML without any plan package" under MONSTER MATERIAL LIST

Monster Material List
Optional Add-Ons
guaranted-label.png

Best Price Guarantee

*Payment Plans Now
Available Through

img See if you qualify

Floor Plans

What's included?
  • Main Floor

    Reverse

    Clicking the Reverse button does not mean you are ordering your plan reversed. It is for visualization purposes only. You may reverse the plan by ordering under “Optional Add-ons”.

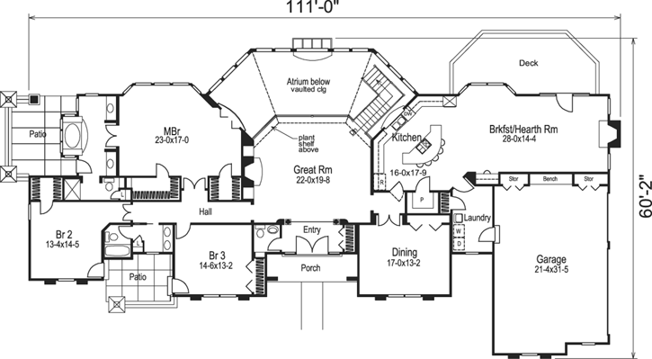
    Main Floor Plan: 77-183
  • Lower Floor

    Reverse

    Clicking the Reverse button does not mean you are ordering your plan reversed. It is for visualization purposes only. You may reverse the plan by ordering under “Optional Add-ons”.

    Lower Floor Plan: 77-183

Rear/Alternate Elevations

  • Rear Elevation

    Reverse

    Clicking the Reverse button does not mean you are ordering your plan reversed. It is for visualization purposes only. You may reverse the plan by ordering under “Optional Add-ons”.

    Rear Elevation Plan: 77-183

House Plan Highlights

A Spectacular Showplace4863 total square feet of living areaSpecial featuresThe kitchen has an islandsnack bar walk-in pantry computer area and an atrium overlookThe great room with balcony and massive bay-shaped atrium connects to the brightly lit entry The master bedroom features a sitting area walk-in closets an atrium overlook and a luxury bath with a private courtyardThe lower level includes a family roomatrium a home theater area with wet bar a game room and a guest bedroom 4 bedrooms 3 12 baths 3-car side entry garageWalk-out basement foundation3503 square feet on the first floor and 1360 square feet on the lower level

This floor plan is found in our Sunbelt house plans section

Full Specs and Features

icon Total Living Area

  • Main floor: 3503
  • Lower Floor: 1360
  • Basement: 1228
  • Porches: 496
  • Total Finished Sq. Ft.: 4863

icon Beds/Baths

  • Bedrooms: 4
  • Full Baths: 3
  • Half Baths: 1

icon Garage

  • Garage: 663
  • Garage Stalls: 3

icon Levels

  • 1 story

Dimension

  • Width: 111' 0"
  • Depth: 60' 2"
  • Height: 21' 6"

Roof slope

  • 9:12 (primary)
  • 5:12 (secondary)

Walls (exterior)

  • 2"x4"

Ceiling heights

  • 9' (Main)

Foundation Options

  • Walk-out basement Standard With Plan

How Much Will It Cost To Build?

Wondering what it will actually cost to bring this home to life? Get an instant, customized estimate based on your chosen plan and location.

GET MY COST TO BUILD ESTIMATE

Modify This Plan

"Need Content here about modifying your plan"

Customize This Plan

House Plan Features

Suited for corner lots Suited for a back view Suited for a down-sloping lot
Island Walk-in pantry Eating bar Nook / breakfast Hearth room
Family room Hobby / rec-room Great room Media room
Grand Entry
Workshop Oversized garage (3+) Side-entry garage

Reviews

How Much Will It Cost To Build?

Wondering what it will actually cost to bring this home to life? Get an instant, customized estimate based on your chosen plan and location.

GET MY COST TO BUILD ESTIMATE

Modify This Plan

Need changes to the layout or features? Our team can modify any plan to match your vision.

Customize This Plan

House Plan Features

Suited for corner lots Suited for a back view Suited for a down-sloping lot
Island Walk-in pantry Eating bar Nook / breakfast Hearth room
Family room Hobby / rec-room Great room Media room
Grand Entry
Workshop Oversized garage (3+) Side-entry garage

Need Some Quick Tips Or Advice?

We want to help you design the house of your dreams as best as we can. If you can't find the answers you're looking for here, get in touch with our licensed architect or a designer!