Traditional House Plans - 3 Bed, 2 Bath, 1215 Sq Ft | Plan 35-441 | Monster House Plans

New plans now available on

dreambook-head-logo See all available plans
SHARE ON

All plans are copyrighted by the individual designer.

Photographs may reflect custom changes that were not included in the original design.

3 Bedroom, 2 Bath Traditional House Plan #35-441

Plan Purchase Options

Price: $0

Please uncheck first "Purchase MML without any plan package" under MONSTER MATERIAL LIST

Monster Material List
Optional Add-Ons
guaranted-label.png

Best Price Guarantee

*Payment Plans Now
Available Through

img See if you qualify

Floor Plans

What's included?
  • Main Floor

    Reverse

    Clicking the Reverse button does not mean you are ordering your plan reversed. It is for visualization purposes only. You may reverse the plan by ordering under “Optional Add-ons”.

    Main Floor Plan: 35-441
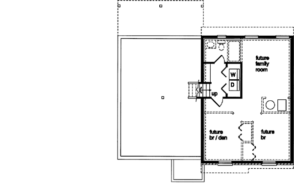
  • Lower Floor

    Reverse

    Clicking the Reverse button does not mean you are ordering your plan reversed. It is for visualization purposes only. You may reverse the plan by ordering under “Optional Add-ons”.

    Lower Floor Plan: 35-441

House Plan Highlights

The main entry to this home is well protected by a columned front porch. The
vaulted living room has a warming fireplace. The vaulted ceiling carries
over to the country-style kitchen, which features a work island and a generously sized eating area. A deck just beyond is the perfect spot for outdoor dining. The bedrooms up a few stairs include a master suite with a walk-in closet and full bath. Two additional bedrooms have wall closets and share the use of a main bath in the hallway. The lower level may be developed later as needs grow. It features space for a family room, two bedrooms--or one bedroom and a den--and a full bath. The laundry room is also on this level.

This floor plan is found in our Traditional house plans section

Full Specs and Features

icon Total Living Area

  • Main floor: 1215
  • Basement: 609
  • Total Finished Sq. Ft.: 1215

icon Beds/Baths

  • Bedrooms: 3
  • Full Baths: 2

icon Garage

  • Garage: 518
  • Garage Stalls: 2

icon Levels

  • multi-level

Dimension

  • Width: 62' 0"
  • Depth: 34' 2"
  • Height: 21' 0"

Roof slope

  • 7:12 (primary)

Walls (exterior)

  • 2"x6"

Foundation Options

  • Basement Standard With Plan
  • Walk-out basement $425
  • Crawlspace Standard With Plan
  • Slab $295

How Much Will It Cost To Build?

Wondering what it will actually cost to bring this home to life? Get an instant, customized estimate based on your chosen plan and location.

GET MY COST TO BUILD ESTIMATE

Modify This Plan

"Need Content here about modifying your plan"

Customize This Plan

House Plan Features

Island Eating bar
Family room Great room Open concept floor plan No formal living/dining Den / office / computer Unfinished/future space
Vaulted/Volume/Dramatic ceilings

Reviews

How Much Will It Cost To Build?

Wondering what it will actually cost to bring this home to life? Get an instant, customized estimate based on your chosen plan and location.

GET MY COST TO BUILD ESTIMATE

Modify This Plan

Need changes to the layout or features? Our team can modify any plan to match your vision.

Customize This Plan

House Plan Features

Island Eating bar
Family room Great room Open concept floor plan No formal living/dining Den / office / computer Unfinished/future space
Vaulted/Volume/Dramatic ceilings

Need Some Quick Tips Or Advice?

We want to help you design the house of your dreams as best as we can. If you can't find the answers you're looking for here, get in touch with our licensed architect or a designer!