Traditional House Plans - 3 Bed, 1 Bath, 1254 Sq Ft | Plan 35-206 | Monster House Plans

New plans now available on

dreambook-head-logo See all available plans
  • MEMORIAL DAY SALE! - 15% OFF Most Plans

    Some exceptions apply. Prices as marked.

SHARE ON

All plans are copyrighted by the individual designer.

Photographs may reflect custom changes that were not included in the original design.

3 Bedroom, 1 Bath Traditional House Plan #35-206

Plan Purchase Options

Price: $0

Please uncheck first "Purchase MML without any plan package" under MONSTER MATERIAL LIST

Monster Material List
Optional Add-Ons
guaranted-label.png

Best Price Guarantee

*Payment Plans Now
Available Through

img See if you qualify

Floor Plans

What's included?
  • Main Floor

    Reverse

    Clicking the Reverse button does not mean you are ordering your plan reversed. It is for visualization purposes only. You may reverse the plan by ordering under “Optional Add-ons”.

    Main Floor Plan: 35-206
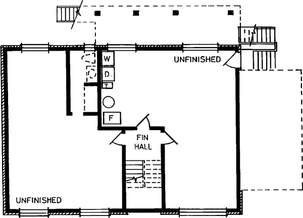
  • Lower Floor

    Reverse

    Clicking the Reverse button does not mean you are ordering your plan reversed. It is for visualization purposes only. You may reverse the plan by ordering under “Optional Add-ons”.

    Lower Floor Plan: 35-206

House Plan Highlights

Commodious And Expandable:Try on this brick-and-wood sided split-level for size. The floor plan is commodious and expandable on the lower level to include a family room, extra bedrooms or an in-law suite. The main level contains a large living/dining room area with sliding glass doors to the rear deck. The kitchen lies just beyond and has room for a breakfast table. Three bedrooms and 1 1/2 baths are contained on the left side of the plan. A single-car garage attaches to the right side of the home. Note the laundry area in the basement.
Try on this brick-and-wood sided split-level for size. The floor plan is commodious and expandable on the lower level to include a family room, extra bedrooms or an in-law suite.

This floor plan is found in our Traditional house plans section

Full Specs and Features

icon Total Living Area

  • Main floor: 1254
  • Basement: 1195
  • Total Finished Sq. Ft.: 1254

icon Beds/Baths

  • Bedrooms: 3
  • Full Baths: 1
  • Half Baths: 1

icon Garage

  • Garage: 221
  • Garage Stalls: 1

icon Levels

  • split entry

Dimension

  • Width: 52' 6"
  • Depth: 30' 0"
  • Height: 20' 6"

Roof slope

  • 5:12 (primary)

Walls (exterior)

  • 2"x6"

Ceiling heights

  • 8' (Main)

Foundation Options

  • Basement Standard With Plan
  • Walk-out basement $425
  • Crawlspace $295
  • Slab $295

How Much Will It Cost To Build?

Wondering what it will actually cost to bring this home to life? Get an instant, customized estimate based on your chosen plan and location.

GET MY COST TO BUILD ESTIMATE

Modify This Plan

"Need Content here about modifying your plan"

Customize This Plan

House Plan Features

Family room No formal living/dining Unfinished/future space

Reviews

How Much Will It Cost To Build?

Wondering what it will actually cost to bring this home to life? Get an instant, customized estimate based on your chosen plan and location.

GET MY COST TO BUILD ESTIMATE

Modify This Plan

Need changes to the layout or features? Our team can modify any plan to match your vision.

Customize This Plan

House Plan Features

Family room No formal living/dining Unfinished/future space

Need Some Quick Tips Or Advice?

We want to help you design the house of your dreams as best as we can. If you can't find the answers you're looking for here, get in touch with our licensed architect or a designer!