Traditional House Plans - 3 Bed, 2 Bath, 1304 Sq Ft | Plan 4-110 | Monster House Plans

New plans now available on

dreambook-head-logo See all available plans
SHARE ON

All plans are copyrighted by the individual designer.

Photographs may reflect custom changes that were not included in the original design.

3 Bedroom, 2 Bath Traditional House Plan #4-110

Plan Purchase Options

Price: $0

Please uncheck first "Purchase MML without any plan package" under MONSTER MATERIAL LIST

Optional Add-Ons
guaranted-label.png

Best Price Guarantee

*Payment Plans Now
Available Through

img See if you qualify

Floor Plans

What's included?
  • Main Floor

    Reverse

    Clicking the Reverse button does not mean you are ordering your plan reversed. It is for visualization purposes only. You may reverse the plan by ordering under “Optional Add-ons”.

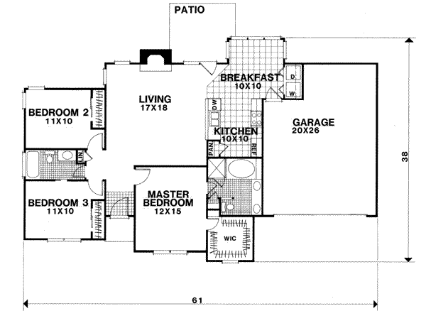
    Main Floor Plan: 4-110

House Plan Highlights

This lovely "European" ranch plan is designed for maximum utilization of space. With an exterior of stucco, this traditional plan features many appointments found in larger custom homes. The corridor kitchen will delight gourmet and amateur chefs alike with its 10'x10' work area and pantry. Also measuring 10'x10', the breakfast room has an abundance of windows for maximum sunlight exposure. The washer and dryer are conveniently tucked in a laundry closet located off of the breakfast room. The spacious 17'x18' living room has a fireplace and door leading onto a patio. The master bedroom measures 12'x15' and has a large walk-in closet. The master bath has a double vanity and separate tub and shower. Measuring 11'x10' each, the two remaining bedrooms share a hall bath. Completing this plan is a spacious 20'x26' two-car garage.

This floor plan is found in our Traditional house plans section

Full Specs and Features

icon Total Living Area

  • Main floor: 1304
  • Total Finished Sq. Ft.: 1304

icon Beds/Baths

  • Bedrooms: 3
  • Full Baths: 2

icon Garage

  • Garage Stalls: 2

icon Levels

  • 1 story

Dimension

  • Width: 61' 0"
  • Depth: 38' 0"
  • Height: 18' 0"

Roof slope

  • 7:12 (primary)

Walls (exterior)

  • 2"x4"

Ceiling heights

  • 8' (Main)

Foundation Options

  • Basement $350
  • Crawlspace $350
  • Slab Standard With Plan

How Much Will It Cost To Build?

Wondering what it will actually cost to bring this home to life? Get an instant, customized estimate based on your chosen plan and location.

GET MY COST TO BUILD ESTIMATE

Modify This Plan

"Need Content here about modifying your plan"

Customize This Plan

House Plan Features

Suited for a back view
Nook / breakfast
Family room No formal living/dining

Reviews

How Much Will It Cost To Build?

Wondering what it will actually cost to bring this home to life? Get an instant, customized estimate based on your chosen plan and location.

GET MY COST TO BUILD ESTIMATE

Modify This Plan

Need changes to the layout or features? Our team can modify any plan to match your vision.

Customize This Plan

House Plan Features

Suited for a back view
Nook / breakfast
Family room No formal living/dining

Need Some Quick Tips Or Advice?

We want to help you design the house of your dreams as best as we can. If you can't find the answers you're looking for here, get in touch with our licensed architect or a designer!