Traditional House Plans - 3 Bed, 2 Bath, 1322 Sq Ft | Plan 35-335 | Monster House Plans

New plans now available on

dreambook-head-logo See all available plans
SHARE ON

All plans are copyrighted by the individual designer.

Photographs may reflect custom changes that were not included in the original design.

3 Bedroom, 2 Bath Traditional House Plan #35-335

Plan Purchase Options

Price: $0

Please uncheck first "Purchase MML without any plan package" under MONSTER MATERIAL LIST

Monster Material List
Optional Add-Ons
guaranted-label.png

Best Price Guarantee

*Payment Plans Now
Available Through

img See if you qualify

Floor Plans

What's included?
  • Main Floor

    Reverse

    Clicking the Reverse button does not mean you are ordering your plan reversed. It is for visualization purposes only. You may reverse the plan by ordering under “Optional Add-ons”.

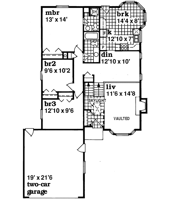
    Main Floor Plan: 35-335
  • Lower Floor

    Reverse

    Clicking the Reverse button does not mean you are ordering your plan reversed. It is for visualization purposes only. You may reverse the plan by ordering under “Optional Add-ons”.

    Lower Floor Plan: 35-335

House Plan Highlights

This handsome starter or retirement home offers a wealth of features in a
smaller square footage. It also has space in the basement for future
development when needed. The vaulted living room, with a fireplace and bay
window, shares a level with the skylit foyer. Up a few steps is the railed
dining room which overlooks the living room. The nearby efficient kitchen has a breakfast carousel and access to the rear yard. Bedrooms line the left side of the plan and include a master suite with a private bath and two family bedrooms sharing a full bath. The lower level has space for a recreation room, a bedroom or home office, a full bath, plus a large storage area and laundry alcove.

This floor plan is found in our Traditional house plans section

Full Specs and Features

icon Total Living Area

  • Main floor: 1322
  • Basement: 1314
  • Total Finished Sq. Ft.: 1322

icon Beds/Baths

  • Bedrooms: 3
  • Full Baths: 2

icon Garage

  • Garage: 433
  • Garage Stalls: 2

icon Levels

  • multi-level

Dimension

  • Width: 40' 0"
  • Depth: 62' 0"
  • Height: 18' 0"

Roof slope

  • 4:12 (primary)

Walls (exterior)

  • 2"x6"

Ceiling heights

  • 8' (Main)

Foundation Options

  • Basement Standard With Plan
  • Walk-out basement $425
  • Crawlspace Standard With Plan
  • Slab $295

How Much Will It Cost To Build?

Wondering what it will actually cost to bring this home to life? Get an instant, customized estimate based on your chosen plan and location.

GET MY COST TO BUILD ESTIMATE

Modify This Plan

"Need Content here about modifying your plan"

Customize This Plan

House Plan Features

Suited for a down-sloping lot
Nook / breakfast
Great room Open concept floor plan No formal living/dining Unfinished/future space
Vaulted/Volume/Dramatic ceilings

Reviews

How Much Will It Cost To Build?

Wondering what it will actually cost to bring this home to life? Get an instant, customized estimate based on your chosen plan and location.

GET MY COST TO BUILD ESTIMATE

Modify This Plan

Need changes to the layout or features? Our team can modify any plan to match your vision.

Customize This Plan

House Plan Features

Suited for a down-sloping lot
Nook / breakfast
Great room Open concept floor plan No formal living/dining Unfinished/future space
Vaulted/Volume/Dramatic ceilings

Need Some Quick Tips Or Advice?

We want to help you design the house of your dreams as best as we can. If you can't find the answers you're looking for here, get in touch with our licensed architect or a designer!