Traditional House Plans - 3 Bed, 2 Bath, 1479 Sq Ft | Plan 12-1006 | Monster House Plans

New plans now available on

dreambook-head-logo See all available plans
SHARE ON

All plans are copyrighted by the individual designer.

Photographs may reflect custom changes that were not included in the original design.

3 Bedroom, 2 Bath Traditional House Plan #12-1006

Plan Purchase Options

Price: $0

Please uncheck first "Purchase MML without any plan package" under MONSTER MATERIAL LIST

Monster Material List
Optional Add-Ons
guaranted-label.png

Best Price Guarantee

*Payment Plans Now
Available Through

img See if you qualify

Floor Plans

What's included?
  • Main Floor

    Reverse

    Clicking the Reverse button does not mean you are ordering your plan reversed. It is for visualization purposes only. You may reverse the plan by ordering under “Optional Add-ons”.

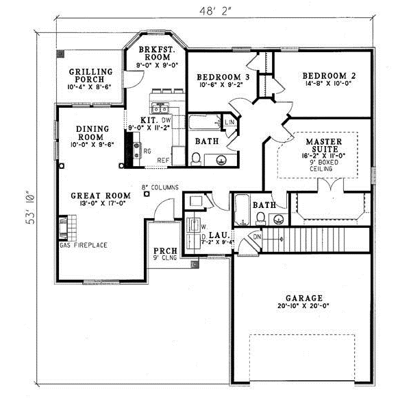
    Main Floor Plan: 12-1006

Rear/Alternate Elevations

  • Rear Elevation

    Reverse

    Clicking the Reverse button does not mean you are ordering your plan reversed. It is for visualization purposes only. You may reverse the plan by ordering under “Optional Add-ons”.

    Rear Elevation Plan: 12-1006

House Plan Highlights

If you are looking for elegance and warmth you’ll find both in this French Traditional home. Upon entering this design you’ll feel the openness created by the expansive great room with optional fireplace adjoined by the formal dining room with eight-inch columns. Meal preparation is made easy in the convenient kitchen and breakfast room with access to a lovely covered porch, perfect for morning coffee and paper. Bedrooms two could be utilized as an office for the young professional. Nine-foot boxed ceilings, full bath and large walk-in closet accent the Master Bedroom. This open floor plan design has everything suitable for the families of today.

This floor plan is found in our Traditional house plans section

Full Specs and Features

icon Total Living Area

  • Main floor: 1479
  • Basement: 1479
  • Porches: 186
  • Total Finished Sq. Ft.: 1479

icon Beds/Baths

  • Bedrooms: 3
  • Full Baths: 2

icon Garage

  • Garage: 417
  • Garage Stalls: 2

icon Levels

  • 1 story

Dimension

  • Width: 48' 2"
  • Depth: 53' 10"

Roof slope

  • 8:12 (primary)

Walls (exterior)

  • 2"x4"

Ceiling heights

  • 8' (Main)

Foundation Options

  • Basement $299
  • Daylight basement $399
  • Crawlspace Standard With Plan
  • Slab Standard With Plan

How Much Will It Cost To Build?

Wondering what it will actually cost to bring this home to life? Get an instant, customized estimate based on your chosen plan and location.

GET MY COST TO BUILD ESTIMATE

Modify This Plan

"Need Content here about modifying your plan"

Customize This Plan

House Plan Features

Suited for a back view Suited for a narrow lot
Eating bar Nook / breakfast
Great room No formal living/dining
Covered rear porch Grilling porch/outdoor kitchen
Vaulted/Volume/Dramatic ceilings

Reviews

How Much Will It Cost To Build?

Wondering what it will actually cost to bring this home to life? Get an instant, customized estimate based on your chosen plan and location.

GET MY COST TO BUILD ESTIMATE

Modify This Plan

Need changes to the layout or features? Our team can modify any plan to match your vision.

Customize This Plan

House Plan Features

Suited for a back view Suited for a narrow lot
Eating bar Nook / breakfast
Great room No formal living/dining
Covered rear porch Grilling porch/outdoor kitchen
Vaulted/Volume/Dramatic ceilings

Need Some Quick Tips Or Advice?

We want to help you design the house of your dreams as best as we can. If you can't find the answers you're looking for here, get in touch with our licensed architect or a designer!