Traditional House Plans - 3 Bed, 2 Bath, 1486 Sq Ft | Plan 35-445 | Monster House Plans

New plans now available on

dreambook-head-logo See all available plans
SHARE ON

All plans are copyrighted by the individual designer.

Photographs may reflect custom changes that were not included in the original design.

3 Bedroom, 2 Bath Traditional House Plan #35-445

Plan Purchase Options

Price: $0

Please uncheck first "Purchase MML without any plan package" under MONSTER MATERIAL LIST

Monster Material List
Optional Add-Ons
guaranted-label.png

Best Price Guarantee

*Payment Plans Now
Available Through

img See if you qualify

Floor Plans

What's included?
  • Main Floor

    Reverse

    Clicking the Reverse button does not mean you are ordering your plan reversed. It is for visualization purposes only. You may reverse the plan by ordering under “Optional Add-ons”.

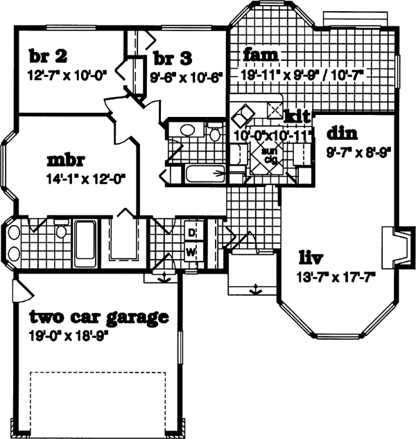
    Main Floor Plan: 35-445
  • Plan Options

    Reverse

    Clicking the Reverse button does not mean you are ordering your plan reversed. It is for visualization purposes only. You may reverse the plan by ordering under “Optional Add-ons”.

    Traditional Style Home Design Plan: 35-445

House Plan Highlights

This ranch design with board-and-batten siding and brick accents has great curb appeal. This is further enhanced by the carousel living room with its fireplace and attached dining area. A step-saving galley kitchen has a sunshine ceiling and adjoins the rear-facing family room with its breakfast bay. Sliding glass doors here lead to the rear yard. Three bedrooms include a master suite with a large walk-in closet, charming bay window, and bath with His and Hers vanities. Another bath is shared by the two additional rear-facing bedrooms. A two-car garage connects to the house at a service entry that contains a laundry alcove. The basement option for this home adds 1,566 square feet.

This floor plan is found in our Traditional house plans section

Full Specs and Features

icon Total Living Area

  • Main floor: 1486
  • Total Finished Sq. Ft.: 1486

icon Beds/Baths

  • Bedrooms: 3
  • Full Baths: 2

icon Garage

  • Garage: 387
  • Garage Stalls: 2

icon Levels

  • 1 story

Dimension

  • Width: 46' 0"
  • Depth: 52' 4"
  • Height: 16' 6"

Roof slope

  • 5:12 (primary)

Walls (exterior)

  • 2"x6"

Ceiling heights

  • 8' (Main)

Foundation Options

  • Basement Standard With Plan
  • Walk-out basement $425
  • Crawlspace Standard With Plan
  • Slab $295

How Much Will It Cost To Build?

Wondering what it will actually cost to bring this home to life? Get an instant, customized estimate based on your chosen plan and location.

GET MY COST TO BUILD ESTIMATE

Modify This Plan

"Need Content here about modifying your plan"

Customize This Plan

House Plan Features

Suited for a front view Suited for a back view Suited for a narrow lot
Eating bar Hearth room
Family room Great room Open concept floor plan No formal living/dining

Reviews

How Much Will It Cost To Build?

Wondering what it will actually cost to bring this home to life? Get an instant, customized estimate based on your chosen plan and location.

GET MY COST TO BUILD ESTIMATE

Modify This Plan

Need changes to the layout or features? Our team can modify any plan to match your vision.

Customize This Plan

House Plan Features

Suited for a front view Suited for a back view Suited for a narrow lot
Eating bar Hearth room
Family room Great room Open concept floor plan No formal living/dining

Need Some Quick Tips Or Advice?

We want to help you design the house of your dreams as best as we can. If you can't find the answers you're looking for here, get in touch with our licensed architect or a designer!