Traditional House Plans - 3 Bed, 2 Bath, 1679 Sq Ft | Plan 7-366 | Monster House Plans

New plans now available on

dreambook-head-logo See all available plans
SHARE ON

All plans are copyrighted by the individual designer.

Photographs may reflect custom changes that were not included in the original design.

3 Bedroom, 2 Bath Traditional House Plan #7-366

Plan Purchase Options

Price: $0

Please uncheck first "Purchase MML without any plan package" under MONSTER MATERIAL LIST

Monster Material List
Optional Add-Ons
guaranted-label.png

Best Price Guarantee

*Payment Plans Now
Available Through

img See if you qualify

Floor Plans

What's included?
  • Main Floor

    Reverse

    Clicking the Reverse button does not mean you are ordering your plan reversed. It is for visualization purposes only. You may reverse the plan by ordering under “Optional Add-ons”.

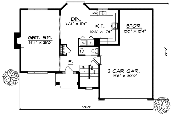
    Main Floor Plan: 7-366
  • Upper/Second Floor

    Reverse

    Clicking the Reverse button does not mean you are ordering your plan reversed. It is for visualization purposes only. You may reverse the plan by ordering under “Optional Add-ons”.

    Upper/Second Floor Plan: 7-366

Rear/Alternate Elevations

  • Rear Elevation

    Reverse

    Clicking the Reverse button does not mean you are ordering your plan reversed. It is for visualization purposes only. You may reverse the plan by ordering under “Optional Add-ons”.

    Rear Elevation Plan: 7-366

House Plan Highlights

This two-story home has an open floor plan that meets the needs of todays families in only 1679 square feet. The large great room offers a fireplace and lots of natural light it is open to the dining room and kitchen which make entertaining easy. The kitchen offers plenty of plenty of counter and cupboard space and it is easy to serve meals in the adjacent dining room. There is a convenient laundry room off the kitchen. Upstairs the master bedroom offers a private bath and roomy walk-in closet while two additional bedrooms share a full bath. This home also features a two-car garage with extra space that would be perfect for a workspace or storing outdoor equipment.

This floor plan is found in our Traditional house plans section

Full Specs and Features

icon Total Living Area

  • Main floor: 881
  • Upper floor: 798
  • Total Finished Sq. Ft.: 1679

icon Beds/Baths

  • Bedrooms: 3
  • Full Baths: 2
  • Half Baths: 1

icon Garage

  • Garage: 553
  • Garage Stalls: 2

icon Levels

  • 2 stories

Dimension

  • Width: 50' 0"
  • Depth: 36' 0"
  • Height: 28' 2"

Roof slope

  • 8:12 (primary)
  • 10:12 (secondary)

Walls (exterior)

  • 2"x6"

Ceiling heights

  • 8' (Main)
    8' (Upper)

Foundation Options

  • Basement Standard With Plan
  • Crawlspace $415
  • Slab $415

How Much Will It Cost To Build?

Wondering what it will actually cost to bring this home to life? Get an instant, customized estimate based on your chosen plan and location.

GET MY COST TO BUILD ESTIMATE

Modify This Plan

"Need Content here about modifying your plan"

Customize This Plan

House Plan Features

Suited for corner lots
Great room Open concept floor plan No formal living/dining
Covered front porch
Vaulted/Volume/Dramatic ceilings
Oversized garage (3+) Rear garage Side-entry garage

Reviews

How Much Will It Cost To Build?

Wondering what it will actually cost to bring this home to life? Get an instant, customized estimate based on your chosen plan and location.

GET MY COST TO BUILD ESTIMATE

Modify This Plan

Need changes to the layout or features? Our team can modify any plan to match your vision.

Customize This Plan

House Plan Features

Suited for corner lots
Great room Open concept floor plan No formal living/dining
Covered front porch
Vaulted/Volume/Dramatic ceilings
Oversized garage (3+) Rear garage Side-entry garage

Need Some Quick Tips Or Advice?

We want to help you design the house of your dreams as best as we can. If you can't find the answers you're looking for here, get in touch with our licensed architect or a designer!