Traditional House Plans - 3 Bed, 2 Bath, 1818 Sq Ft | Plan 85-212 | Monster House Plans

New plans now available on

dreambook-head-logo See all available plans
  • MEMORIAL DAY SALE! - 15% OFF Most Plans

    Some exceptions apply. Prices as marked.

SHARE ON

All plans are copyrighted by the individual designer.

Photographs may reflect custom changes that were not included in the original design.

Design Comments

Plans include a multiple build license. Additional foundations available for $175

3 Bedroom, 2 Bath Traditional House Plan #85-212

Plan Purchase Options

Price: $0

Please uncheck first "Purchase MML without any plan package" under MONSTER MATERIAL LIST

Monster Material List
Optional Add-Ons
guaranted-label.png

Best Price Guarantee

*Payment Plans Now
Available Through

img See if you qualify

Floor Plans

What's included?
  • Main Floor

    Reverse

    Clicking the Reverse button does not mean you are ordering your plan reversed. It is for visualization purposes only. You may reverse the plan by ordering under “Optional Add-ons”.

    Main Floor Plan: 85-212
  • Upper/Second Floor

    Reverse

    Clicking the Reverse button does not mean you are ordering your plan reversed. It is for visualization purposes only. You may reverse the plan by ordering under “Optional Add-ons”.

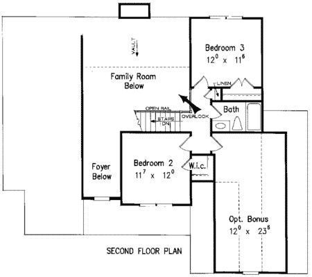
    Upper/Second Floor Plan: 85-212

Rear/Alternate Elevations

  • Rear Elevation

    Reverse

    Clicking the Reverse button does not mean you are ordering your plan reversed. It is for visualization purposes only. You may reverse the plan by ordering under “Optional Add-ons”.

    Rear Elevation Plan: 85-212

House Plan Highlights

Classic and tasteful, the combination of brick and siding is long-appreciated and always a welcome addition to any neighborhood. This home uses its space wisely, with function in every corner. The master suite encompasses the entire left side of the home, giving homeowners the privacy of being the only residents on the main floor. The kitchen, breakfast area and family room blend together to create one common living space. Decorative columns accent the formal dining room, making a bold statement from the foyer. An optional bonus room is available on the second floor, offering homeowners endless possibilities for expansion to a playroom, exercise area, or home office.

This floor plan is found in our Traditional house plans section

Full Specs and Features

icon Total Living Area

  • Main floor: 1382
  • Upper floor: 436
  • Basement: 1382
  • Bonus: 298
  • Total Finished Sq. Ft.: 1818

icon Beds/Baths

  • Bedrooms: 3
  • Full Baths: 2
  • Half Baths: 1

icon Garage

  • Garage: 456
  • Garage Stalls: 2

icon Levels

  • 2 stories

Dimension

  • Width: 52' 4"
  • Depth: 45' 10"
  • Height: 29' 0"

Roof slope

  • 12:12 (primary)

Walls (exterior)

  • 2"x4"

Ceiling heights

  • 9' (Main)
    8' (Upper)

Foundation Options

  • Walk-out basement Standard With Plan
  • Crawlspace Standard With Plan
  • Slab Standard With Plan

How Much Will It Cost To Build?

Wondering what it will actually cost to bring this home to life? Get an instant, customized estimate based on your chosen plan and location.

GET MY COST TO BUILD ESTIMATE

Modify This Plan

"Need Content here about modifying your plan"

Customize This Plan

House Plan Features

Suited for a down-sloping lot
Main floor Master
Eating bar Nook / breakfast
Family room Main Floor laundry Formal dining room Unfinished/future space
Covered front porch
Vaulted/Volume/Dramatic ceilings Photos Available

Reviews

How Much Will It Cost To Build?

Wondering what it will actually cost to bring this home to life? Get an instant, customized estimate based on your chosen plan and location.

GET MY COST TO BUILD ESTIMATE

Modify This Plan

Need changes to the layout or features? Our team can modify any plan to match your vision.

Customize This Plan

House Plan Features

Suited for a down-sloping lot
Main floor Master
Eating bar Nook / breakfast
Family room Main Floor laundry Formal dining room Unfinished/future space
Covered front porch
Vaulted/Volume/Dramatic ceilings Photos Available

Need Some Quick Tips Or Advice?

We want to help you design the house of your dreams as best as we can. If you can't find the answers you're looking for here, get in touch with our licensed architect or a designer!