Traditional House Plans - 3 Bed, 2 Bath, 1845 Sq Ft | Plan 12-725 | Monster House Plans

New plans now available on

dreambook-head-logo See all available plans
  • MEMORIAL DAY SALE! - 15% OFF Most Plans

    Some exceptions apply. Prices as marked.

SHARE ON

All plans are copyrighted by the individual designer.

Photographs may reflect custom changes that were not included in the original design.

3 Bedroom, 2 Bath Traditional House Plan #12-725

Plan Purchase Options

Price: $0

Please uncheck first "Purchase MML without any plan package" under MONSTER MATERIAL LIST

Monster Material List
Optional Add-Ons
guaranted-label.png

Best Price Guarantee

*Payment Plans Now
Available Through

img See if you qualify

Floor Plans

What's included?
  • Main Floor

    Reverse

    Clicking the Reverse button does not mean you are ordering your plan reversed. It is for visualization purposes only. You may reverse the plan by ordering under “Optional Add-ons”.

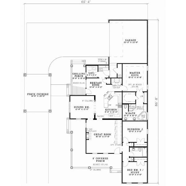
    Main Floor Plan: 12-725
  • Bonus Floor

    Reverse

    Clicking the Reverse button does not mean you are ordering your plan reversed. It is for visualization purposes only. You may reverse the plan by ordering under “Optional Add-ons”.

    Bonus Floor Plan: 12-725

House Plan Highlights

The heart of this home is a spacious kitchen and cozy breakfast room ? and a convenient computer center ? for easy monitoring. A formal dining room has a column-entry and view of the massive great room with fireplace. The master suite is just steps away and has a private bathroom fit for royalty and opposite two additional bedrooms. An optional bonus room upstairs will make the perfect home theatre ? financed into your monthly mortgage.

This floor plan is found in our Traditional house plans section

Full Specs and Features

icon Total Living Area

  • Main floor: 1845
  • Bonus: 1191
  • Porches: 554
  • Total Finished Sq. Ft.: 1845

icon Beds/Baths

  • Bedrooms: 3
  • Full Baths: 2

icon Garage

  • Garage: 808
  • Garage Stalls: 2

icon Levels

  • 1 story

Dimension

  • Width: 65' 4"
  • Depth: 86' 8"
  • Height: 29' 8"

Roof slope

  • 10:12 (primary)

Walls (exterior)

  • 2"x4"

Ceiling heights

  • 9' (Main)
    8' (Upper)

Foundation Options

  • Basement $299
  • Daylight basement $399
  • Crawlspace Standard With Plan
  • Slab Standard With Plan

How Much Will It Cost To Build?

Wondering what it will actually cost to bring this home to life? Get an instant, customized estimate based on your chosen plan and location.

GET MY COST TO BUILD ESTIMATE

Modify This Plan

"Need Content here about modifying your plan"

Customize This Plan

House Plan Features

Eating bar Nook / breakfast
Bonus room Great room Formal dining room Den / office / computer Unfinished/future space
Covered front porch Covered rear porch Wrap-around porch Porte Cochere Grilling porch/outdoor kitchen
Vaulted/Volume/Dramatic ceilings Photos Available
Rear garage Side-entry garage

Reviews

How Much Will It Cost To Build?

Wondering what it will actually cost to bring this home to life? Get an instant, customized estimate based on your chosen plan and location.

GET MY COST TO BUILD ESTIMATE

Modify This Plan

Need changes to the layout or features? Our team can modify any plan to match your vision.

Customize This Plan

House Plan Features

Eating bar Nook / breakfast
Bonus room Great room Formal dining room Den / office / computer Unfinished/future space
Covered front porch Covered rear porch Wrap-around porch Porte Cochere Grilling porch/outdoor kitchen
Vaulted/Volume/Dramatic ceilings Photos Available
Rear garage Side-entry garage

Need Some Quick Tips Or Advice?

We want to help you design the house of your dreams as best as we can. If you can't find the answers you're looking for here, get in touch with our licensed architect or a designer!