Traditional House Plans - 4 Bed, 2 Bath, 1865 Sq Ft | Plan 7-954 | Monster House Plans

New plans now available on

dreambook-head-logo See all available plans
SHARE ON

All plans are copyrighted by the individual designer.

Photographs may reflect custom changes that were not included in the original design.

4 Bedroom, 2 Bath Traditional House Plan #7-954

Plan Purchase Options

Price: $0

Please uncheck first "Purchase MML without any plan package" under MONSTER MATERIAL LIST

Monster Material List
Optional Add-Ons
guaranted-label.png

Best Price Guarantee

*Payment Plans Now
Available Through

img See if you qualify

Floor Plans

What's included?
  • Main Floor

    Reverse

    Clicking the Reverse button does not mean you are ordering your plan reversed. It is for visualization purposes only. You may reverse the plan by ordering under “Optional Add-ons”.

    Main Floor Plan: 7-954
  • Upper/Second Floor

    Reverse

    Clicking the Reverse button does not mean you are ordering your plan reversed. It is for visualization purposes only. You may reverse the plan by ordering under “Optional Add-ons”.

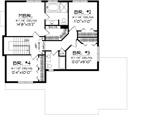
    Upper/Second Floor Plan: 7-954

Rear/Alternate Elevations

  • Rear Elevation

    Reverse

    Clicking the Reverse button does not mean you are ordering your plan reversed. It is for visualization purposes only. You may reverse the plan by ordering under “Optional Add-ons”.

    Rear Elevation Plan: 7-954

House Plan Highlights

A well-designed floor plan allows for maximum usage of every square foot of this two-story home. From the spacious porch to the rustic doors you'll love the style of this home. The open floor plan features a kitchen with central island formal dining room and a spacious great room complete with fireplace. All bedrooms are located on the second floor and include a master suite complete with walk-in closet and private bath with a whirlpool tub. Three additional bedrooms and a full bath makes this home large enough for a growing family. A three-stall garage with extra storage is sure to please dad while mom will love the main floor laundry and walk-in pantry.

This floor plan is found in our Traditional house plans section

Full Specs and Features

icon Total Living Area

  • Main floor: 884
  • Upper floor: 981
  • Total Finished Sq. Ft.: 1865

icon Beds/Baths

  • Bedrooms: 4
  • Full Baths: 2
  • Half Baths: 1

icon Garage

  • Garage: 668
  • Garage Stalls: 3

icon Levels

  • 2 stories

Dimension

  • Width: 49' 0"
  • Depth: 44' 0"
  • Height: 30' 2"

Roof slope

  • 8:12 (primary)
  • 6:12 (secondary)

Walls (exterior)

  • 2"x6"

Ceiling heights

  • 8' (Upper)

Foundation Options

  • Basement Standard With Plan
  • Crawlspace $415
  • Slab $415

How Much Will It Cost To Build?

Wondering what it will actually cost to bring this home to life? Get an instant, customized estimate based on your chosen plan and location.

GET MY COST TO BUILD ESTIMATE

Modify This Plan

"Need Content here about modifying your plan"

Customize This Plan

House Plan Features

Split bedrooms
Island Walk-in pantry Eating bar
Great room No formal living/dining
Covered front porch
Vaulted/Volume/Dramatic ceilings
Oversized garage (3+)

Reviews

How Much Will It Cost To Build?

Wondering what it will actually cost to bring this home to life? Get an instant, customized estimate based on your chosen plan and location.

GET MY COST TO BUILD ESTIMATE

Modify This Plan

Need changes to the layout or features? Our team can modify any plan to match your vision.

Customize This Plan

House Plan Features

Split bedrooms
Island Walk-in pantry Eating bar
Great room No formal living/dining
Covered front porch
Vaulted/Volume/Dramatic ceilings
Oversized garage (3+)

Need Some Quick Tips Or Advice?

We want to help you design the house of your dreams as best as we can. If you can't find the answers you're looking for here, get in touch with our licensed architect or a designer!