Traditional House Plans - 3 Bed, 2 Bath, 1912 Sq Ft | Plan 7-303 | Monster House Plans

New plans now available on

dreambook-head-logo See all available plans
SHARE ON

All plans are copyrighted by the individual designer.

Photographs may reflect custom changes that were not included in the original design.

3 Bedroom, 2 Bath Traditional House Plan #7-303

Plan Purchase Options

Price: $0

Please uncheck first "Purchase MML without any plan package" under MONSTER MATERIAL LIST

Monster Material List
Optional Add-Ons
guaranted-label.png

Best Price Guarantee

*Payment Plans Now
Available Through

img See if you qualify

Floor Plans

What's included?
  • Main Floor

    Reverse

    Clicking the Reverse button does not mean you are ordering your plan reversed. It is for visualization purposes only. You may reverse the plan by ordering under “Optional Add-ons”.

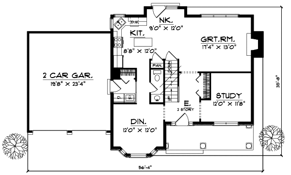
    Main Floor Plan: 7-303
  • Upper/Second Floor

    Reverse

    Clicking the Reverse button does not mean you are ordering your plan reversed. It is for visualization purposes only. You may reverse the plan by ordering under “Optional Add-ons”.

    Upper/Second Floor Plan: 7-303

Rear/Alternate Elevations

  • Rear Elevation

    Reverse

    Clicking the Reverse button does not mean you are ordering your plan reversed. It is for visualization purposes only. You may reverse the plan by ordering under “Optional Add-ons”.

    Rear Elevation Plan: 7-303

House Plan Highlights

This two-story three-bedroom home offers all the features you have been looking for. The great room invites friends and family to gather around the cozy fireplace. The open kitchen has a large pantry a center island and an adjacent breakfast nook. Alternatively special meals can be served in the formal dining room. The study will provide solitude while you work on after-hours tasks. Also on the main floor youll find a powder room and a laundry room through which the two-car garage is accessible. Upstairs the master bedroom has an extra-large walk-in closet welcoming window seat and a full bathroom. Two additional bedrooms both with spacious walk-in closets share a full bath that has a dual separated vanity which makes it easy to get everyone out of the house on time.

This floor plan is found in our Traditional house plans section

Full Specs and Features

icon Total Living Area

  • Main floor: 995
  • Upper floor: 917
  • Total Finished Sq. Ft.: 1912

icon Beds/Baths

  • Bedrooms: 3
  • Full Baths: 2
  • Half Baths: 1

icon Garage

  • Garage: 458
  • Garage Stalls: 2

icon Levels

  • 2 stories

Dimension

  • Width: 56' 4"
  • Depth: 35' 8"
  • Height: 30' 9"

Roof slope

  • 10:12 (primary)
  • 12:12 (secondary)

Walls (exterior)

  • 2"x6"

Ceiling heights

  • 8' (Main)
    8' (Upper)

Foundation Options

  • Basement Standard With Plan
  • Crawlspace $415
  • Slab $415

How Much Will It Cost To Build?

Wondering what it will actually cost to bring this home to life? Get an instant, customized estimate based on your chosen plan and location.

GET MY COST TO BUILD ESTIMATE

Modify This Plan

"Need Content here about modifying your plan"

Customize This Plan

House Plan Features

Suited for corner lots Suited for a back view
Island Nook / breakfast
Family room Open concept floor plan Formal dining room Formal living room Den / office / computer
Vaulted/Volume/Dramatic ceilings
Side-entry garage

Reviews

How Much Will It Cost To Build?

Wondering what it will actually cost to bring this home to life? Get an instant, customized estimate based on your chosen plan and location.

GET MY COST TO BUILD ESTIMATE

Modify This Plan

Need changes to the layout or features? Our team can modify any plan to match your vision.

Customize This Plan

House Plan Features

Suited for corner lots Suited for a back view
Island Nook / breakfast
Family room Open concept floor plan Formal dining room Formal living room Den / office / computer
Vaulted/Volume/Dramatic ceilings
Side-entry garage

Need Some Quick Tips Or Advice?

We want to help you design the house of your dreams as best as we can. If you can't find the answers you're looking for here, get in touch with our licensed architect or a designer!