Traditional House Plan - 3 Bedrooms, 2 Bath, 2010 Sq Ft Plan 12-393

New plans now available on

dreambook-head-logo See all available plans
SHARE ON

All plans are copyrighted by the individual designer.

Photographs may reflect custom changes that were not included in the original design.

3 Bedroom, 2 Bath Traditional House Plan #12-393

Plan Purchase Options

Price: $0

Please uncheck first "Purchase MML without any plan package" under MONSTER MATERIAL LIST

Monster Material List
Optional Add-Ons
guaranted-label.png

Best Price Guarantee

*Payment Plans Now
Available Through

img See if you qualify

Floor Plans

What's included?
  • Main Floor

    Reverse

    Clicking the Reverse button does not mean you are ordering your plan reversed. It is for visualization purposes only. You may reverse the plan by ordering under “Optional Add-ons”.

    Main Floor Plan: 12-393
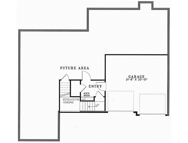
  • Lower Floor

    Reverse

    Clicking the Reverse button does not mean you are ordering your plan reversed. It is for visualization purposes only. You may reverse the plan by ordering under “Optional Add-ons”.

    Lower Floor Plan: 12-393

House Plan Highlights

This versatile offering is as comfortable in the city as it is in the country. The down home great room feels even larger with the vaulted ceiling and barrier-free entry into the kitchen and breakfast room. The urban, open design features an island that serves double duty as a snack bar. The breakfast room is bright and sunny with access to a significant grilling porch where guests can mingle and converse. The lower floor holds endless expansion possibilities as family needs evolve.

This floor plan is found in our Traditional house plans section

Full Specs and Features

icon Total Living Area

  • Main floor: 1935
  • Upper floor: 75
  • Basement: 1935
  • Porches: 304
  • Total Finished Sq. Ft.: 2010

icon Beds/Baths

  • Bedrooms: 3
  • Full Baths: 2

icon Garage

  • Garage: 468
  • Garage Stalls: 2

icon Levels

  • split entry

Dimension

  • Width: 53' 0"
  • Depth: 49' 4"
  • Height: 28' 2"

Roof slope

  • 10:12 (primary)
  • 10:12 (secondary)

Walls (exterior)

  • 2"x4"

Ceiling heights

  • 9' (Main)

Foundation Options

  • Basement $299
  • Daylight basement $299
  • Crawlspace Standard With Plan
  • Slab Standard With Plan

How Much Will It Cost To Build?

Wondering what it will actually cost to bring this home to life? Get an instant, customized estimate based on your chosen plan and location.

GET MY COST TO BUILD ESTIMATE

Modify This Plan

"Need Content here about modifying your plan"

Customize This Plan

House Plan Features

Suited for a back view Suited for a side-sloping lot Suited for an up-sloping lot
Island Eating bar Nook / breakfast
Great room Open concept floor plan No formal living/dining Unfinished/future space
Covered front porch Covered rear porch Grilling porch/outdoor kitchen
Vaulted/Volume/Dramatic ceilings
Garage under

Reviews

How Much Will It Cost To Build?

Wondering what it will actually cost to bring this home to life? Get an instant, customized estimate based on your chosen plan and location.

GET MY COST TO BUILD ESTIMATE

Modify This Plan

Need changes to the layout or features? Our team can modify any plan to match your vision.

Customize This Plan

House Plan Features

Suited for a back view Suited for a side-sloping lot Suited for an up-sloping lot
Island Eating bar Nook / breakfast
Great room Open concept floor plan No formal living/dining Unfinished/future space
Covered front porch Covered rear porch Grilling porch/outdoor kitchen
Vaulted/Volume/Dramatic ceilings
Garage under

Need Some Quick Tips Or Advice?

We want to help you design the house of your dreams as best as we can. If you can't find the answers you're looking for here, get in touch with our licensed architect or a designer!